Three-room apartment viale San Giovanni Bosco, Roma
€ 270.000trilocale in vendita con ampia terrazza
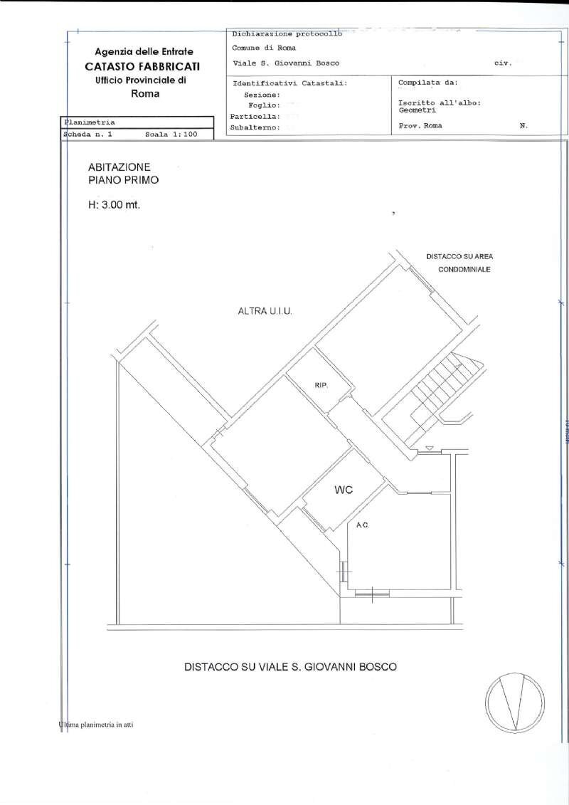
**Appartamento Trilocale in Vendita a Don Bosco** Scopri questo luminoso trilocale situato in una delle zone più ricercate di Roma, precisamente in Viale San Giovanni Bosco. A soli 200 metri dalla fermata della metro Lucio Sestio, questo appartamento al primo piano di una palazzina di nove piani offre una comoda accessibilità ai mezzi pubblici e ai servizi locali. Con una superficie di 70 m²interni , l’immobile si presenta in buono stato e pronto per essere abitato. L’appartamento è composto da ingresso un ampio soggiorno con cucina a vista, perfetto per accogliere amici e familiari. Due camere matrimoniali che offrono spazio e comfort, mentre il servizio è funzionale e ben posizionato. Non dimenticare la splendida terrazza di 44 mq a livello, ideale per godersi momenti di relax all'aria aperta. Inoltre, è presente un ripostiglio che aggiunge ulteriore praticità alla casa. Il servizio di portierato disponibile al mattino garantisce sicurezza e assistenza. Questo immobile, costruito nel 1960, è dotato di riscaldamento a gas naturale, assicurando un buon comfort durante tutto l'anno. Con un orientamento est, la luce naturale inonda gli spazi, creando un'atmosfera accogliente e calda. Non perdere l'opportunità di vivere in questo splendido appartamento, in vendita a € 285.000, 00. Contattaci per maggiori informazioni e per prenotare una visita allo 06.77208000!
Main data
| Reference | 5/7 |
| Ad date | 30/03/2026 |
| Contract | Sale |
| Typology | Apartment |
| Surface | 70 m2 |
| Locals | 3 (2 bedrooms, 1 other), 1 bathroom, kitchen on sight |
| Plan | 1 from 9 totals |
| Construction type | Civil |
| Number of terraces | 1 |
Costs
| Price | 270.000 € |
| Price per m2 | 3.857 €/m2 |
| Condominium fees | €90,00/month |
Energy efficiency
| Year built | 1960 |
| Status | Good |
| Heating | Centralized |
| Heating Power Type | Methane |
| Energy rating | G |
| Energy Performance Index (IPE) | 175 kWh/m2 year |
Floor plans
Address and map
viale San Giovanni Bosco, Roma
Mortgage calculation
Selling price:
Advance
20,00
Mortgage
80,00
Rate: -+
Payment: 772 per month
The results are an indicative estimate based on the data entered and do not constitute a financial offer.
Advertiser

Asso programma casa
via Corfinio n.9, Roma
Show Phone
Call
CONTACT

