Three-room apartment via delle Gondole, Roma (neighborhood Lido di Ostia)
€ 220.000Via delle Gondole, Ostia Lido (AFFITTATO)
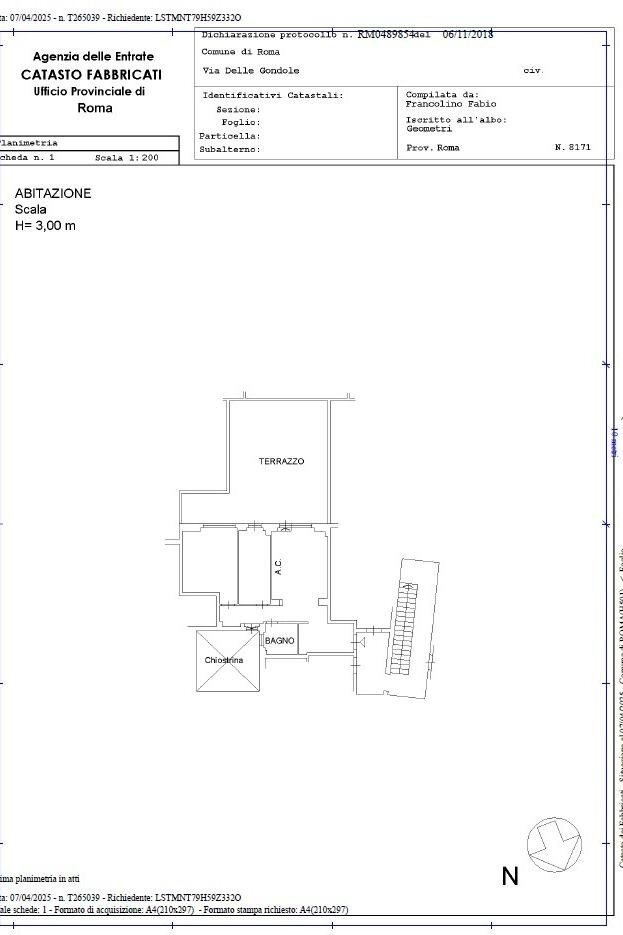
PER INFO: 3483959461 Via delle Gondole L'appartamento è attualmente AFFITTATO. Nel cuore vibrante di Ostia, in una traversa della rinomata Via delle Baleniere, proponiamo in vendita un raffinato appartamento, perfettamente inserito in uno dei contesti più dinamici e serviti del litorale romano. Una posizione invidiabile, dove ogni esigenza quotidiana si trova a portata di mano: negozi, supermercati, scuole, bar, ristoranti, e tutte le comodità che rendono la vita di quartiere vivace e confortevole. Collegamenti strategici: La zona gode di un’eccellente rete di collegamenti. A pochi minuti a piedi si trovano le stazioni della Metromare, mentre Via del Mare e Via Ostiense sono facilmente raggiungibili in auto, garantendo accesso diretto e rapido al centro di Roma. E per chi ama il mare, le spiagge di Ostia sono raggiungibili in meno di 10 minuti. L’appartamento: Situato al primo piano di una palazzina signorile di cinque piani, dotata di ascensore, l’immobile si distingue per l’equilibrio tra funzionalità, comfort e spazi esterni vivibili. Composizione interna: Ampio ingresso accogliente Luminoso salone con moderno angolo cottura, ideale per vivere momenti conviviali Spaziosa camera matrimoniale, perfetta per il relax Cameretta, ideale come studio, stanza per gli ospiti o camera per bambini Bagno finestrato completo di box doccia Meraviglioso terrazzo di 25 mq, un angolo all’aperto da vivere in ogni stagione: per pranzi, aperitivi o semplicemente per rilassarsi Dotazioni e finiture: L’appartamento è in ottimo stato manutentivo, pronto per essere abitato fin da subito. Tra le finiture e dotazioni troviamo: - Serrande elettriche in ogni ambiente - Condizionatori caldo/freddo in tutte le stanze - Porta blindata per la massima sicurezza - Infissi in PVC con doppio vetro, per un perfetto isolamento termico e acustico Rif. 2/500V Per ulteriori informazioni o per fissare un appuntamento, non esitare a contattarci: Al numero 3483959461 anche via Whatsapp, oppure via email all'indirizzo [email protected]
Main data
| Reference | 2/500 V |
| Ad date | 05/04/2025 |
| Contract | Sale |
| Typology | Apartment |
| Surface | 81 m2 |
| Locals | 3 (2 bedrooms, 1 other), 1 bathroom, kitchen kitchenette |
| Plan | 1 from 5 totals |
| Construction type | Signorile |
| Number of terraces | 1 |
| Garage | Absent |
| Furniture | Absent |
Costs
| Price | 220.000 € |
| Price per m2 | 2.716 €/m2 |
| Condominium fees | €90,00/month |
Energy efficiency
| Year built | 1973 |
| Status | Good |
| Heating | Centralized |
| Energy rating | G |
| Energy Performance Index (IPE) | 175 kWh/m2 year |
Floor plans
Address and map
via delle Gondole, Roma - neighborhood Lido di Ostia
Mortgage calculation
Selling price:
Advance
20,00
Mortgage
80,00
Rate: -+
Payment: 629 per month
The results are an indicative estimate based on the data entered and do not constitute a financial offer.
Advertiser

RES Immobiliare
VIA DIEGO SIMONETTI 78, Roma
Show Phone
Show Mobile
Call
CONTACT

