Negozio corso Dante Alighieri, Cuneo (zona Centro)
€ 230.000
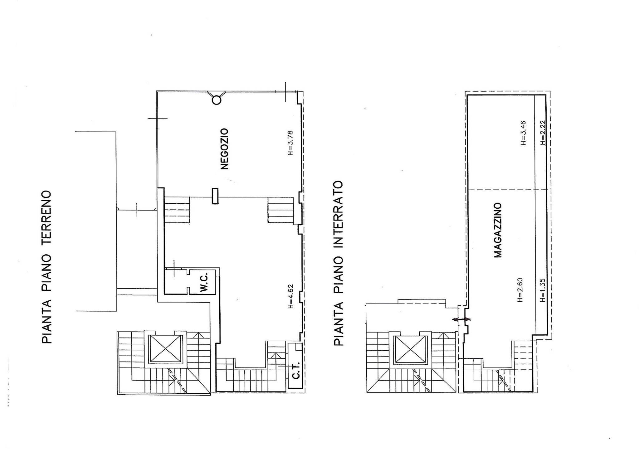
Nel centro della città abbiamo da vendere un negozio al piano terreno di 75 mq. con tre vetrine per una lunghezza di circa 11 metri. Il negozio è collegato con un magazzino sottostante di 45 mq. grazie ad una scala interna e tramite la scala condominiale. L'immobile è dotato di un bagno al piano terreno e d'impianto di riscaldamento autonomo a metano. Attualmente è affittato con contratto scadente il 31 Marzo 2032 al canone annuale di 10.560 euro. Interessante per chi volesse fare un investimento!
Dati principali
| Riferimento | ID2939559 |
| Data annuncio | 30/05/2025 |
| Contratto | Vendita |
| Tipologia | Negozio |
| Superficie | 98 m2 |
| Piano | 2 totali |
| Uso immobile | Commerciale |
Costi
| Prezzo | 230.000 € |
| Prezzo al m2 | 2.347 €/m2 |
| Spese condominiali | € 100,00/mese |
Efficienza energetica
| Riscaldamento | Autonomo |
| Classe energetica | C |
| Indice di prestazione energetica (IPE) | 45.66 kWh/m2 anno |
Planimetrie
Indirizzo e mappa
corso Dante Alighieri, Cuneo - quartiere Centro
Annuncio senza mappa,
prova a chiedere la posizione all'inserzionista
prova a chiedere la posizione all'inserzionista
Calcolo mutuo
Prezzo di vendita:
Anticipo
20,00
Mutuo
80,00
Tasso: -+
Rata: 658 al mese
I risultati sono una stima indicativa basata sui dati inseriti e non costituiscono un’offerta finanziaria.
Inserzionista

Studio Immobiliare Combale
Via XX Settembre 47/c, Cuneo
Mostra Cellulare
Chiama
CONTATTA

