€ 590.000
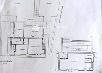
5+ locali218 m23 bagni
218 m2
€ 280.000
5+ locali168 m22 bagni
ATTENZIONE: per salvare la ricerca seleziona un comune. Le ricerche su tutta la provincia non possono essere salvate.