Ricevi copia del giornale via mail
1 risultato per
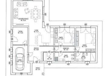
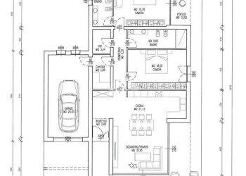
terreni edificabili in vendita a Budrio
Annunci immobiliari a Budrio:
Terreni edificabili in affitto a Budrio
Agenzie immobiliari a Budrio





















