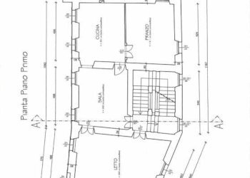
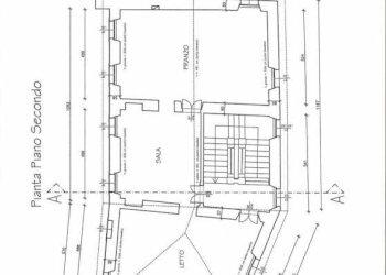
€ 79.000
407 m21 bath
ATTENTION: to save your search select a city. Province-wide searches cannot be saved.