Two-room apartment Via Colombaro, Mappano
€ 79.000Bilocale in vendita
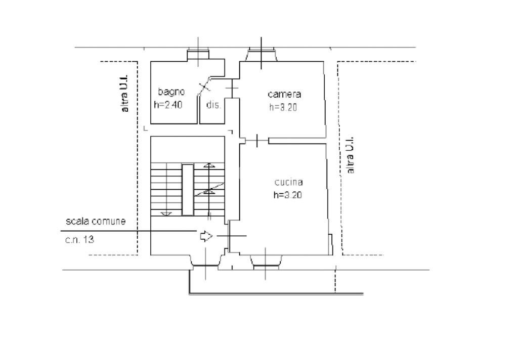
In posizione comoda ai negozi e ai servizi ma all'interno rispetto alla statale. L'appartamento si trova al primo piano di quella che era Cascina Colombaro. Le spese condominiali sono basse e l'alloggio è stato completamente ristrutturato internamente due anni fa. Il riscaldamento è autonomo tramite condizionatori. Internamente si sviluppa su una comoda zona giorno con l'angolo cottura su una parete. Nella zona notte troviamo la camera e il bagno con un comodo box doccia. Viene venduto arredato.
Punti di forza sono le basse spese condominiali, i condizionatori appena sostituiti e la comodità per la fermata dell'autobus.
Ideale anche come investimento.
Punti di forza sono le basse spese condominiali, i condizionatori appena sostituiti e la comodità per la fermata dell'autobus.
Ideale anche come investimento.
Main data
| Reference | 61206042 |
| Ad date | 14/04/2026 |
| Contract | Sale |
| Typology | Apartment |
| Surface | 45 m2 |
| Locals | 2 (2 other), 1 bathroom |
Costs
| Price | 79.000 € |
| Price per m2 | 1.756 €/m2 |
| Condominium fees | €50,00/month |
Energy efficiency
| Year built | 1900 |
| Heating | Autonomous |
| Heating Power Type | Other |
| Energy rating | E |
| Energy performance index (EP GL, REN ) | 97.04 kWh/m3 year |
| Energy performance index (EP GL, NREN ) | 140.62 kWh/m3 year |
Floor plans
Address and map
Via Colombaro, Mappano
Mortgage calculation
Selling price:
Advance
20,00
Mortgage
80,00
Rate: -+
Payment: 226 per month
The results are an indicative estimate based on the data entered and do not constitute a financial offer.
Advertiser
Call
CONTACT

