Commercial Premises Via Camillo Rosalba 18/A, Bari
€ 110.000
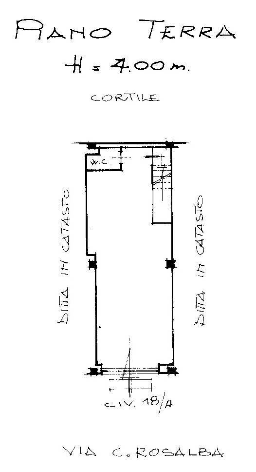
Proponiamo in vendita a Bari, nel quartiere Poggiofranco, un locale commerciale disposto su due livelli, situato in posizione strategica nelle immediate vicinanze del nuovo supermercato Famila, elemento che ha ulteriormente rafforzato i flussi pedonali e veicolari dellarea e la vocazione commerciale della zona. Limmobile si compone al piano terra di uno spazio commerciale di circa 50 mq con servizio, collegato internamente a un deposito al piano interrato di circa 66 mq. Il locale si presenta in buono stato di conservazione ed è dotato di infissi esterni recenti, serranda elettrica e impianto di videosorveglianza. Lunità è attualmente condotta in locazione con contratto commerciale ben consolidato ed in essere dal 2012. Linvestimento esprime una rendita annua del 5% circa, configurandosi come soluzione equilibrata per chi ricerca una redditività stabile in un contesto urbano ad elevata tenuta commerciale. Elemento distintivo è la presenza di un ampio spazio pedonale antistante di proprietà condominiale che, oltre a garantire visibilità e adeguato distacco dalla sede stradale, rappresenta un potenziale valore aggiunto: la profondità dellarea consente infatti di valutare, previa autorizzazione, linstallazione di arredi esterni, ampliando le potenzialità duso dellimmobile nel medio periodo. La proposta è rivolta in particolare a investitori interessati a un immobile con storico locativo pluriennale, rendita già in essere e collocazione commerciale stabile in uno dei quartieri più richiesti della città. Per informazioni e visite contattaci ai numeri : 080.502.70.68 392.946.79.74 Classe energetica: in fase di valutazione · Superficie piano terra: mq 50 c.a. · Superficie piano S1: mq 66 c.a. · Superficie commerciale: mq 72 c.a.
Main data
| Reference | ROSALBA |
| Ad date | 27/02/2026 |
| Contract | Sale |
| Typology | Commercial Premises |
| Surface | 116 m2 |
| Locals | 2 (2 other), 1 bathroom |
| Plan | On several levels, 6 totals |
| Occupied | Owner Occupied |
| Furniture | Absent |
Costs
| Price | 110.000 € |
| Price per m2 | 948 €/m2 |
Energy efficiency
| Status | Excellent |
| Heating | Autonomous |
| Heating System Type | by air |
| Heating Power Type | Electric |
| Energy rating | Property exempt from energy certification |
Floor plans
Video
Address and map
Via Camillo Rosalba
18/A, Bari
Ad without map,
try asking the advertiser for the position
try asking the advertiser for the position
Mortgage calculation
Selling price:
Advance
20,00
Mortgage
80,00
Rate: -+
Payment: 315 per month
The results are an indicative estimate based on the data entered and do not constitute a financial offer.
Advertiser

Planifim S.r.l.
Via Giuseppe Fanelli 217/d, Bari
Show Phone
Show Mobile
Call
CONTACT

