Four-room apartment Corso C. G. Allamano, Torino (neighborhood Santa Rita)
€ 189.000Quadrilocale in vendita
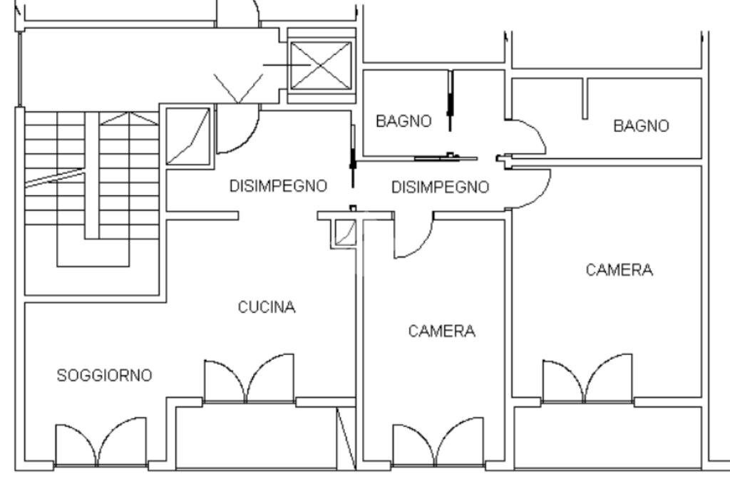
Quadrilocale ristrutturato con doppi servizi – ottavo piano
In stabile dotato di ascensore e giardino condominiale, a due passi dal Parco Palatucci e dal Centro Commerciale Le Gru, proponiamo in vendita un elegante quadrilocale completamente ristrutturato e pronto da abitare.
L’appartamento, situato all’ottavo piano, è composto da ingresso con armadio a muro che si apre su una cucina con angolo cottura e balcone, collegata al soggiorno. Un corridoio separa la zona notte, dove troviamo due camere da letto di cui una ampia matrimoniale con balcone.
Un ulteriore disimpegno conduce ai due bagni, entrambi con aerazione forzata: il primo con doppio lavabo ed un ampia doccia dotata di luci per cromoterapia, il secondo adibito a lavanderia. Completa la proprietà una cantina al piano interrato.
L’immobile è stato ristrutturato in stile moderno e giovanile ed è dotato di aria condizionata, portoncino blindato, infissi interni ed esterni nuovi e balconi rivestiti e piastrellati. Soluzione ideale per chi cerca comfort, design e una posizione strategica.
Contattaci oggi stesso per maggiori informazioni o per prenotare una visita!
Telefono: 011 32.98.200
WhatsApp: 339 34.94.000
Email: tocb1
Seguici sui social per restare sempre aggiornato!
Siamo su Facebook e Instagram come @tecnocasa_viabarletta, dove potrai conoscerci meglio e scoprire tutte le nostre novità e proposte immobiliari.
Offriamo anche valutazioni gratuite del tuo immobile e consulenze finanziarie personalizzate per aiutarti a realizzare i tuoi progetti. Non esitare a contattarci!
Main data
| Reference | 61173197 |
| Ad date | 05/02/2026 |
| Contract | Sale |
| Typology | Apartment |
| Surface | 98 m2 |
| Locals | 4 (4 other), 2 bathrooms |
| Plan | 8 from 10 totals |
Costs
| Price | 189.000 € |
| Price per m2 | 1.929 €/m2 |
| Condominium fees | €108,00/month |
Energy efficiency
| Year built | 1980 |
| Heating | Centralized |
| Heating Power Type | Methane |
| Energy rating | D |
| Energy performance index (EP GL, REN ) | 0.14 kWh/m3 year |
| Energy performance index (EP GL, NREN ) | 75.56 kWh/m3 year |
Floor plans
Video
Address and map
Corso C. G. Allamano, Torino - neighborhood Santa Rita
Mortgage calculation
Selling price:
Advance
20,00
Mortgage
80,00
Rate: -+
Payment: 541 per month
The results are an indicative estimate based on the data entered and do not constitute a financial offer.
Advertiser
Call
CONTACT

