Four-room apartment via Parma, 52, Torino (neighborhood Aurora)
€ 350.000In nuovo edificio, loft di mq 97 con ampia zona privata esterna
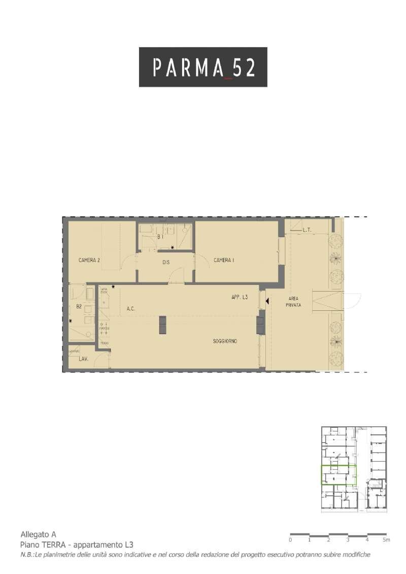
PER MAGGIORI INFORMAZIONI CONTATTARE L'AGENZIA 3D - Arch. Francesca Penna tel. 347.7587769 - 011.2423841 - [email protected] Appartamento L3, loft di mq 97 con ampia zona privata esterna, composto da ingresso su ampio soggiorno con cucina a vista, disimpegno notte con due camere da letto, due bagni e lavanderia. Cantina e volendo box. Classe energetica A3 Consegnato ENTRO IL 30/6/2026 completamente finito con materiali di alta qualità. I pavimenti saranno in parquet a doghe in legno di rovere nel soggiorno e nelle camere; i bagni con sanitari filo parete, rubinetteria di design, mobile lavabo con specchio illuminato, box doccia in cristallo e rivestimenti in gres porcellanato. L’appartamento fa parte di un nuovo intervento residenziale suddiviso in undici unità abitative le cui varie tipologie di appartamenti sono visibili sul sito WWW.INCANTIERE.ME In un contesto urbano in piena trasformazione, dove le ex fabbriche hanno lasciato spazio a residenze moderne sorge questa nuova opportunità abitativa composta da due edifici: un elegante casa d'epoca su tre livelli e un edificio moderno che ospita cinque loft contemporanei, caratterizzati da ampi spazi privati esterni. Ogni appartamento è dotato di impianto di riscaldamento autonomo, impianto videocitofonico, impianto TV digitale terrestre e satellitare centralizzato. Le unità sono predisposte per l’installazione di un impianto di raffrescamento con split e di un sistema antifurto. Completano la proprietà le cantine, situate al piano interrato della casa d’epoca e sei box auto. No provvigioni all'acquirente
Main data
| Reference | 3DI - Parma 52 |
| Ad date | 12/01/2026 |
| Contract | Sale |
| Typology | Apartment |
| Surface | 97 m2 |
| Locals | 4 (2 bedrooms, 2 other), 2 bathrooms, kitchen on sight |
| Plan | 1 from 1 totals |
| Construction type | Signorile |
| Garage | Single |
| Furniture | Absent |
Costs
| Price | 350.000 € |
| Price per m2 | 3.608 €/m2 |
Energy efficiency
| Year built | 2025 |
| Status | New |
| Heating | Autonomous |
| Energy rating | A3 |
Floor plans
Address and map
via Parma, 52, Torino - neighborhood Aurora
Mortgage calculation
Selling price:
Advance
20,00
Mortgage
80,00
Rate: -+
Payment: 1.001 per month
The results are an indicative estimate based on the data entered and do not constitute a financial offer.
Advertiser

EVENTA
Via dei MIlle 42, Torino
Show Phone
Call
CONTACT

