Three-room apartment Via S. Giuseppe Benedetto Cottolengo, Torino (neighborhood Valdocco)
€ 74.000Trilocale in vendita
VIA COTTOLENGO
Nella storica località di Rondo della Forca, è disponibile un appartamento di 74 mq, situato al secondo piano di un edificio d'epoca.
Questa proprietà offre un'opportunità unica per chi cerca un'abitazione comoda a tutti i servizi, grazie alla posizione strategica; a pochi passi da Borgo Dora e Porta Palazzo, due delle aree più vivaci e caratteristiche di Torino.
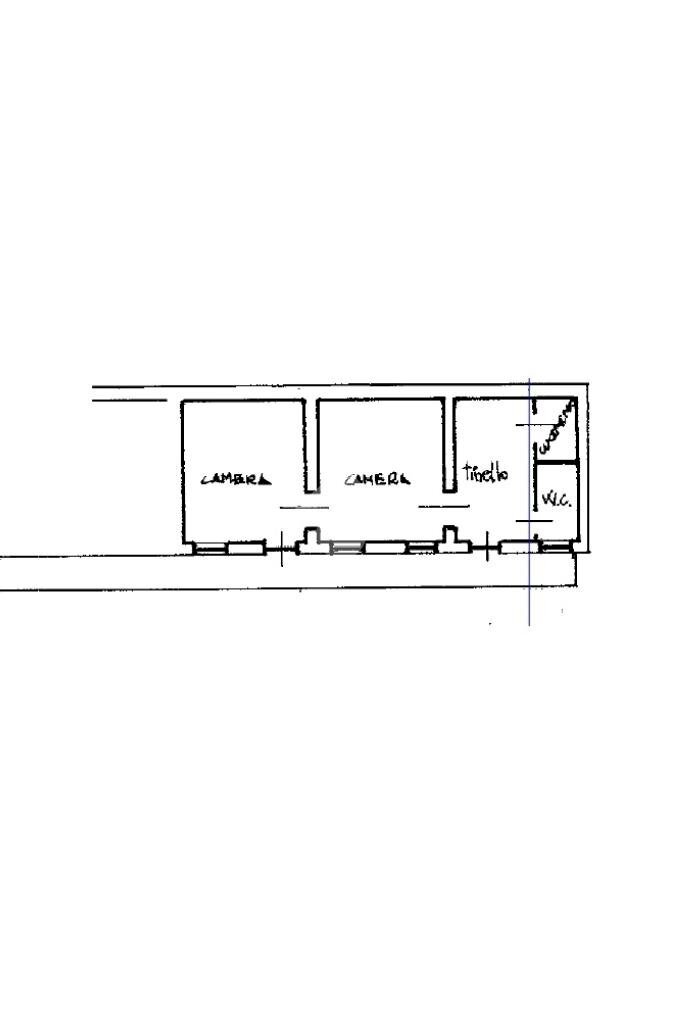
L'appartamento è composto da tre locali, tra cui, due camere da letto, un bagno e una zona giorno composta da tinello e cucinino.
Il balcone presente, regala spazio esterno privato, ideale per momenti di relax.
Il riscaldamento autonomo garantisce comfort e controllo dei consumi.
Questa soluzione è perfetta per chi desidera vivere o investire in questa zona.
Attualmente affittato, libero al rogito.
A concludere la proprietà, cantina di pertinenza.
Per fissare un appuntamento contattateci al numero 011 19483515 o tramite l'indirizzo mail .
Oppure veniteci a trovare in Corso Principe Eugenio 3.
Nella storica località di Rondo della Forca, è disponibile un appartamento di 74 mq, situato al secondo piano di un edificio d'epoca.
Questa proprietà offre un'opportunità unica per chi cerca un'abitazione comoda a tutti i servizi, grazie alla posizione strategica; a pochi passi da Borgo Dora e Porta Palazzo, due delle aree più vivaci e caratteristiche di Torino.
L'appartamento è composto da tre locali, tra cui, due camere da letto, un bagno e una zona giorno composta da tinello e cucinino.
Il balcone presente, regala spazio esterno privato, ideale per momenti di relax.
Il riscaldamento autonomo garantisce comfort e controllo dei consumi.
Questa soluzione è perfetta per chi desidera vivere o investire in questa zona.
Attualmente affittato, libero al rogito.
A concludere la proprietà, cantina di pertinenza.
Per fissare un appuntamento contattateci al numero 011 19483515 o tramite l'indirizzo mail .
Oppure veniteci a trovare in Corso Principe Eugenio 3.
Main data
| Reference | 61144094 |
| Ad date | 19/11/2025 |
| Contract | Sale |
| Typology | Apartment |
| Surface | 74 m2 |
| Locals | 3 (3 other), 1 bathroom |
| Plan | 2 from 4 totals |
Costs
| Price | 74.000 € |
| Price per m2 | 1.000 €/m2 |
| Condominium fees | €67,00/month |
Energy efficiency
| Year built | 1900 |
| Heating | Autonomous |
| Energy rating | Property exempt from energy certification |
Floor plans
Address and map
Via S. Giuseppe Benedetto Cottolengo, Torino - neighborhood Valdocco
Mortgage calculation
Selling price:
Advance
20,00
Mortgage
80,00
Rate: -+
Payment: 212 per month
The results are an indicative estimate based on the data entered and do not constitute a financial offer.
Advertiser
Call
CONTACT

