Four-room apartment Via pasubio, Rivoli
€ 187.000Quadrilocale in vendita
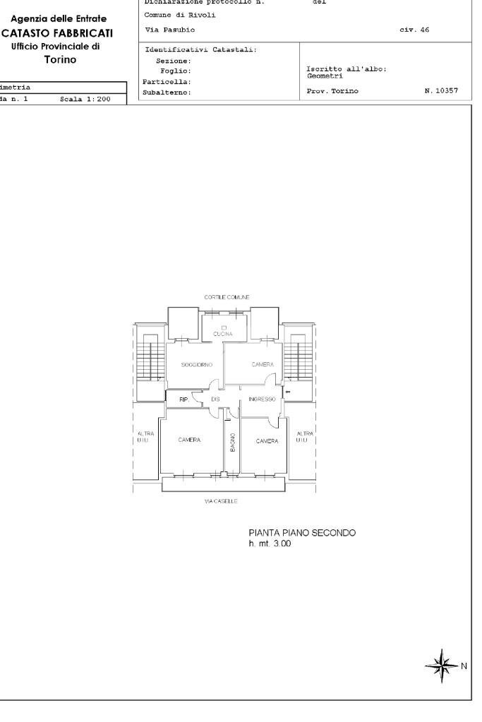
Nel comune di Rivoli, proponiamo un appartamento di circa 125 mq situato all'ultimo piano di una palazzina rivestita in paramano. L'immobile offre una doppia esposizione che garantisce luminosità e una piacevole ventilazione naturale oltre quella canalizzata già presente all'interno dell'immobile. La zona è tranquilla, ideale per chi cerca serenità senza rinunciare alla comodità dei servizi cittadini. Gli spazi interni sono ampi e ben distribuiti: due camere matrimoniali offrono comfort e privacy, mentre la sala da pranzo e il salone rappresentano il cuore della casa, perfetti per momenti di convivialità. Il cucinino doppio è funzionale e pratico, mentre la lavanderia aggiunge un tocco di comodità alla vita quotidiana. Il bagno è dotato di una moderna doccia. Completa la proprietà una cantina, utile per lo stoccaggio.
Main data
| Reference | 61141724 |
| Ad date | 19/11/2025 |
| Contract | Sale |
| Typology | Apartment |
| Surface | 125 m2 |
| Locals | 4 (4 other), 1 bathroom |
| Plan | 2 from 2 totals |
Costs
| Price | 187.000 € |
| Price per m2 | 1.496 €/m2 |
Energy efficiency
| Year built | 1970 |
| Heating | Centralized |
| Heating Power Type | Methane |
| Energy rating | D |
| Energy performance index (EP GL, REN ) | 177.83 kWh/m3 year |
| Energy performance index (EP GL, NREN ) | 177.83 kWh/m3 year |
Floor plans
Video
Address and map
Via pasubio, Rivoli
Mortgage calculation
Selling price:
Advance
20,00
Mortgage
80,00
Rate: -+
Payment: 535 per month
The results are an indicative estimate based on the data entered and do not constitute a financial offer.
Advertiser
Call
CONTACT

