Attic Via C. Colombo, Soliera
€ 239.000Attico in vendita
Sozzigalli – Attico con terrazzo
In quartiere residenziale chiuso al traffico, proponiamo attico al secondo ed ultimo piano (senza ascensore) in elegante palazzina faccia vista composta da sole 4 unità.
La soluzione, che occupa l’intero piano, è caratterizzata da un ampio terrazzo di 30 mq esposto a est, accessibile direttamente dalla zona giorno.
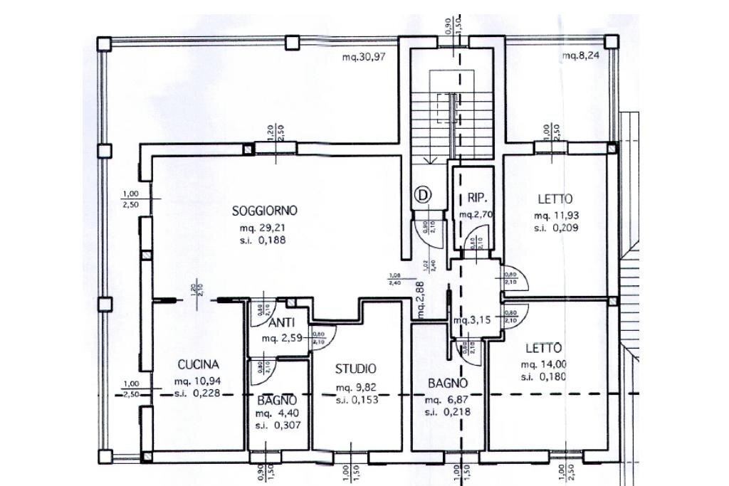
L’appartamento è così disposto: ingresso, soggiorno e cucina abitabile, 3 camere da letto (una con terrazzo privato di 9 mq), 2 bagni finestrati, vano tecnico e solaio raggiungibile da scala retrattile.
Finiture di pregio: pavimenti in gres porcellanato nella zona giorno e parquet nella zona notte, soffitti alti con travi a vista in legno.
Dotazioni tecniche: impianto fotovoltaico da 3 kW (con ancora 5 anni di recupero fiscale), caldaia smart a condensazione, riscaldamento a pavimento, climatizzatore con 4 split, decalcificatore elettronico, luci di emergenza, predisposizione per impianto audio multi-room e sistema d’allarme.
Completano la proprietà: garage singolo al piano terra, posto auto privato all’interno dell’area cortiliva condominiale.
Zona silenziosa e riservata, ma comoda alle principali vie di collegamento per Modena, Carpi e località limitrofe.
Per informazioni e visite contattaci allo 059.850446 (anche WhatsApp).
In quartiere residenziale chiuso al traffico, proponiamo attico al secondo ed ultimo piano (senza ascensore) in elegante palazzina faccia vista composta da sole 4 unità.
La soluzione, che occupa l’intero piano, è caratterizzata da un ampio terrazzo di 30 mq esposto a est, accessibile direttamente dalla zona giorno.
L’appartamento è così disposto: ingresso, soggiorno e cucina abitabile, 3 camere da letto (una con terrazzo privato di 9 mq), 2 bagni finestrati, vano tecnico e solaio raggiungibile da scala retrattile.
Finiture di pregio: pavimenti in gres porcellanato nella zona giorno e parquet nella zona notte, soffitti alti con travi a vista in legno.
Dotazioni tecniche: impianto fotovoltaico da 3 kW (con ancora 5 anni di recupero fiscale), caldaia smart a condensazione, riscaldamento a pavimento, climatizzatore con 4 split, decalcificatore elettronico, luci di emergenza, predisposizione per impianto audio multi-room e sistema d’allarme.
Completano la proprietà: garage singolo al piano terra, posto auto privato all’interno dell’area cortiliva condominiale.
Zona silenziosa e riservata, ma comoda alle principali vie di collegamento per Modena, Carpi e località limitrofe.
Per informazioni e visite contattaci allo 059.850446 (anche WhatsApp).
Main data
| Reference | 61077781 |
| Ad date | 20/06/2025 |
| Contract | Sale |
| Typology | Attic |
| Surface | 157 m2 |
| Locals | 5 (5 other), 2 bathrooms |
| Plan | 2 from 2 totals |
Costs
| Price | 239.000 € |
| Price per m2 | 1.522 €/m2 |
| Condominium fees | €17,00/month |
Energy efficiency
| Year built | 2004 |
| Heating | Autonomous |
| Heating Power Type | Methane |
| Energy rating | D |
| Energy performance index (EP GL, REN ) | 149.29 kWh/m3 year |
| Energy performance index (EP GL, NREN ) | 149.29 kWh/m3 year |
Floor plans
Video
Address and map
Via C. Colombo, Soliera
Mortgage calculation
Selling price:
Advance
20,00
Mortgage
80,00
Rate: -+
Payment: 684 per month
The results are an indicative estimate based on the data entered and do not constitute a financial offer.
Advertiser
Call
CONTACT

