Apartment Viale XXV Aprile, Torino
€ 449.000
A Cavoretto, a pochi minuti da piazza Zara, nel verde della precollina torinese, luminoso appartamento bilivello con ampio terrazzo e vista panoramica sulla città.
L'immobile, in ottime condizioni, si trova in una graziosa palazzina costantemente manutenuta, con giardino e ampi spazi comuni.
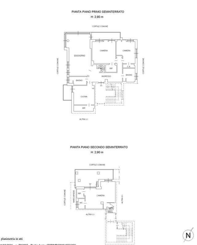
Si accede all'appartamento tramite ingresso su un ampio e luminoso salone (tripla esposizione) con grandi vetrate affacciate sulla città e sullarco alpino, con accesso diretto al primo ampio balcone.
La cucina è abitabile e tramite una porta finestra si accede ad un secondo balcone. Dietro la cucina è presente la lavanderia.
Proseguendo troviamo il primo bagno di servizio (completo di box doccia), finestrato, prima del corridoio che ci accompagna alla zona notte ed alle due camere da letto ed al grande bagno con vasca idromassaggio, anche questo finestrato.
La prima camera da letto, padronale, è dotata anche di cabina armadio e ha una porta finestra che ci collega al primo balcone lato salone. La seconda camera da letto, angolare e con doppia esposizione è dotata di un comodo ed ampio armadio a muro.
Tramite una scala interna scendiamo al secondo livello, composto da una grande e luminosa camera (eventualmente frazionabile in due), spazioso ripostiglio e bagno finestrato.
Dalla camera, tramite ampia porta finestra con doppia anta, si può accedere direttamente al meraviglioso terrazzo panoramico.
L'immobile è dotato di impianto di condizionamento (split in salone e camera da letto), riscaldamento autonomo con caldaia sostituita tre anni fa, porta blindata ed inferriate.
Completano la proprietà un ampio posto auto nel garage condominiale e una cantina privata.
L'immobile, in ottime condizioni, si trova in una graziosa palazzina costantemente manutenuta, con giardino e ampi spazi comuni.
Si accede all'appartamento tramite ingresso su un ampio e luminoso salone (tripla esposizione) con grandi vetrate affacciate sulla città e sullarco alpino, con accesso diretto al primo ampio balcone.
La cucina è abitabile e tramite una porta finestra si accede ad un secondo balcone. Dietro la cucina è presente la lavanderia.
Proseguendo troviamo il primo bagno di servizio (completo di box doccia), finestrato, prima del corridoio che ci accompagna alla zona notte ed alle due camere da letto ed al grande bagno con vasca idromassaggio, anche questo finestrato.
La prima camera da letto, padronale, è dotata anche di cabina armadio e ha una porta finestra che ci collega al primo balcone lato salone. La seconda camera da letto, angolare e con doppia esposizione è dotata di un comodo ed ampio armadio a muro.
Tramite una scala interna scendiamo al secondo livello, composto da una grande e luminosa camera (eventualmente frazionabile in due), spazioso ripostiglio e bagno finestrato.
Dalla camera, tramite ampia porta finestra con doppia anta, si può accedere direttamente al meraviglioso terrazzo panoramico.
L'immobile è dotato di impianto di condizionamento (split in salone e camera da letto), riscaldamento autonomo con caldaia sostituita tre anni fa, porta blindata ed inferriate.
Completano la proprietà un ampio posto auto nel garage condominiale e una cantina privata.
Main data
| Reference | 12695 |
| Ad date | 13/05/2025 |
| Contract | Sale |
| Typology | Apartment |
| Surface | 187 m2 |
| Locals | 5 (3 bedrooms, 2 other), 3 bathrooms, kitchen habitable |
| Plan | 1 |
| Construction type | Signorile |
| Occupied | Free |
| Garage | Single |
Costs
| Price | 449.000 € |
| Price per m2 | 2.401 €/m2 |
| Heating Expenses | €125,00/year |
Energy efficiency
| Status | Good |
| Heating | Autonomous |
| Energy rating | D |
| Energy Performance Index (IPE) | 189 kWh/m2 year |
Floor plans
Address and map
Viale XXV Aprile, Torino
Ad without map,
try asking the advertiser for the position
try asking the advertiser for the position
Mortgage calculation
Selling price:
Advance
20,00
Mortgage
80,00
Rate: -+
Payment: 1.284 per month
The results are an indicative estimate based on the data entered and do not constitute a financial offer.
Advertiser
Call
CONTACT


