Three-room apartment Piazza Marconi, 6, Perosa Argentina
€ 39.000Trilocale in centro con ascensore
Nel centro di Perosa Argentina, comodo ai principali servizi che offre il paese, la Chisone Immobiliare è lieta di proporvi trilocale sito al quinto ed ultimo piano con ascensore.
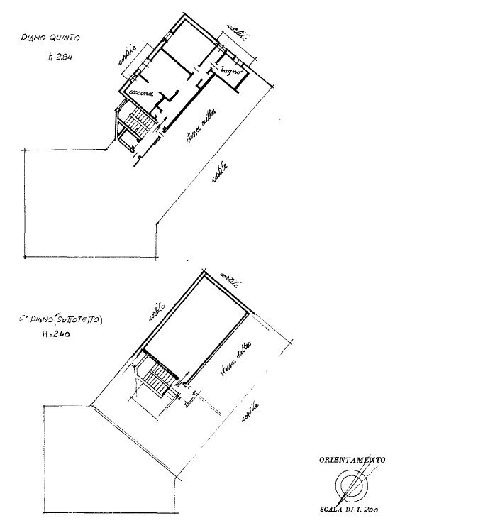
L’appartamento si compone di ingresso su ampio disimpegno, soggiorno, cucinino, camera da letto, bagno finestrato con box doccia e due comodi ripostigli.
A completare l’immobile un sottotetto sito al sesto piano e due balconi con vista panoramica sulle montagne e sul paese.
L’appartamento si compone di ingresso su ampio disimpegno, soggiorno, cucinino, camera da letto, bagno finestrato con box doccia e due comodi ripostigli.
A completare l’immobile un sottotetto sito al sesto piano e due balconi con vista panoramica sulle montagne e sul paese.
Main data
| Reference | pa-51 |
| Ad date | 05/03/2025 |
| Contract | Sale |
| Typology | Apartment |
| Surface | 66 m2 |
| Locals | 3 (1 bedroom, 2 other), 1 bathroom, kitchen small kitchen |
| Plan | 5 (Top floor) from 6 totals |
| Construction type | Civil |
| Occupied | Owner Occupied |
| Number of balconies | 2 |
| Garage | Absent |
| Furniture | Partial |
| Lati liberi | Due, ad angolo |
Costs
| Price | 39.000 € |
| Price per m2 | 591 €/m2 |
| Heating Expenses | €210,00/year |
| Condominium fees | €45,00/month |
Energy efficiency
| Year built | 1960 |
| Status | Excellent |
| Heating | Centralized |
| Heating System Type | to radiators |
| Heating Power Type | Methane |
| External frames | Double Glass / Metal |
| Energy rating | F |
| Energy performance index (EP GL, REN ) | 12.05 kWh/m2 year |
| Energy performance index (EP GL, NREN ) | 299.29 kWh/m2 year |
| Energy performance of winter building | ![]() |
| Energy performance of summer building | ![]() |
Floor plans
Video
Address and map
Piazza Marconi, 6, Perosa Argentina
Mortgage calculation
Selling price:
Advance
20,00
Mortgage
80,00
Rate: -+
Payment: 112 per month
The results are an indicative estimate based on the data entered and do not constitute a financial offer.
Advertiser
Call
CONTACT




