Four-room apartment Via Cumiana, Piossasco
€ 174.000Quadrilocale in vendita
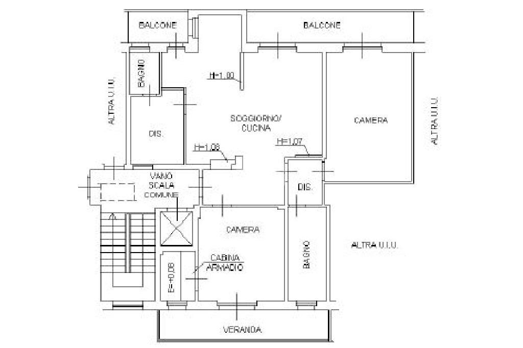
Appartamento al terzo ed ultimo piano con ascensore in uno stabile con finiture in paramano.
Se stai cercando un appartamento che unisca comfort e stile, questo è il posto che fa per te. Ti presentiamo un luminoso appartamento con ingresso su una zona giorno living, perfetta per vivere al meglio ogni momento della giornata.
L’ampia zona giorno è suddivisa in una zona relax, una zona pranzo e un angolo cottura, creando un ambiente conviviale e funzionale.
Da qui, potrai accedere a un balcone con una vista incantevole sul San Giorgio, ideale per goderti momenti di tranquillità all’aperto.
L’appartamento dispone di uno studio con un bagnetto privato finestrato, perfetto per chi lavora da casa o desidera uno spazio riservato per la lettura e la concentrazione.
L’ampia camera da letto matrimoniale offre accesso diretto al balcone, permettendoti di svegliarti con una vista splendida ogni mattina.
La seconda camera da letto è di generose dimensioni e ha accesso a un secondo balcone verandato con vista aperta. Adiacente alla camera troverai uno spazio funzionale che può essere trasformato in una comoda cabina armadi o, se preferisci, puoi ricavare un terzo bagno finestrato, poiché gli attacchi sono già presenti.
Il bagno principale è dotato di una vasca, offrendo un angolo di relax dopo una lunga giornata.
L'immobile è stato di recente oggetto di intervento, che ha permesso una più funzionale e moderna riorganizzazione degli spazi, tutto l'impianto elettrico, ed anche l'impianto idraulico e del gas in cucina, sono stati completamente rifatti. Il bagno dello studio è nuovo, sono state sostutite tutte le termovalvole dei termosifoni, il pavimento della camera da letto matrimoniale è stato sostituito come anche i sanitari e la vasca del bagno principale.
Situato in una zona tranquilla e ben servita, questo appartamento è perfetto per famiglie, professionisti o chiunque desideri uno spazio versatile e accogliente.
La doppia cantina completa la soluzione.
Se stai cercando un appartamento che unisca comfort e stile, questo è il posto che fa per te. Ti presentiamo un luminoso appartamento con ingresso su una zona giorno living, perfetta per vivere al meglio ogni momento della giornata.
L’ampia zona giorno è suddivisa in una zona relax, una zona pranzo e un angolo cottura, creando un ambiente conviviale e funzionale.
Da qui, potrai accedere a un balcone con una vista incantevole sul San Giorgio, ideale per goderti momenti di tranquillità all’aperto.
L’appartamento dispone di uno studio con un bagnetto privato finestrato, perfetto per chi lavora da casa o desidera uno spazio riservato per la lettura e la concentrazione.
L’ampia camera da letto matrimoniale offre accesso diretto al balcone, permettendoti di svegliarti con una vista splendida ogni mattina.
La seconda camera da letto è di generose dimensioni e ha accesso a un secondo balcone verandato con vista aperta. Adiacente alla camera troverai uno spazio funzionale che può essere trasformato in una comoda cabina armadi o, se preferisci, puoi ricavare un terzo bagno finestrato, poiché gli attacchi sono già presenti.
Il bagno principale è dotato di una vasca, offrendo un angolo di relax dopo una lunga giornata.
L'immobile è stato di recente oggetto di intervento, che ha permesso una più funzionale e moderna riorganizzazione degli spazi, tutto l'impianto elettrico, ed anche l'impianto idraulico e del gas in cucina, sono stati completamente rifatti. Il bagno dello studio è nuovo, sono state sostutite tutte le termovalvole dei termosifoni, il pavimento della camera da letto matrimoniale è stato sostituito come anche i sanitari e la vasca del bagno principale.
Situato in una zona tranquilla e ben servita, questo appartamento è perfetto per famiglie, professionisti o chiunque desideri uno spazio versatile e accogliente.
La doppia cantina completa la soluzione.
Main data
| Reference | 60996771 |
| Ad date | 27/12/2024 |
| Contract | Sale |
| Typology | Apartment |
| Surface | 129 m2 |
| Locals | 4 (4 other), 2 bathrooms |
| Plan | 3 from 3 totals |
Costs
| Price | 174.000 € |
| Price per m2 | 1.349 €/m2 |
| Condominium fees | €125,00/month |
Energy efficiency
| Year built | 1967 |
| Heating | Centralized |
| Heating Power Type | Methane |
| Energy rating | F |
| Energy performance index (EP GL, REN ) | 9.88 kWh/m3 year |
| Energy performance index (EP GL, NREN ) | 182.08 kWh/m3 year |
Floor plans
Video
Address and map
Via Cumiana, Piossasco
Mortgage calculation
Selling price:
Advance
20,00
Mortgage
80,00
Rate: -+
Payment: 498 per month
The results are an indicative estimate based on the data entered and do not constitute a financial offer.
Advertiser
Call
CONTACT

