Three-room apartment Via XXIV Maggio, Volvera
€ 69.000Trilocale in vendita
IMMOBILE ATTUALMENTE IN TRATTATIVA
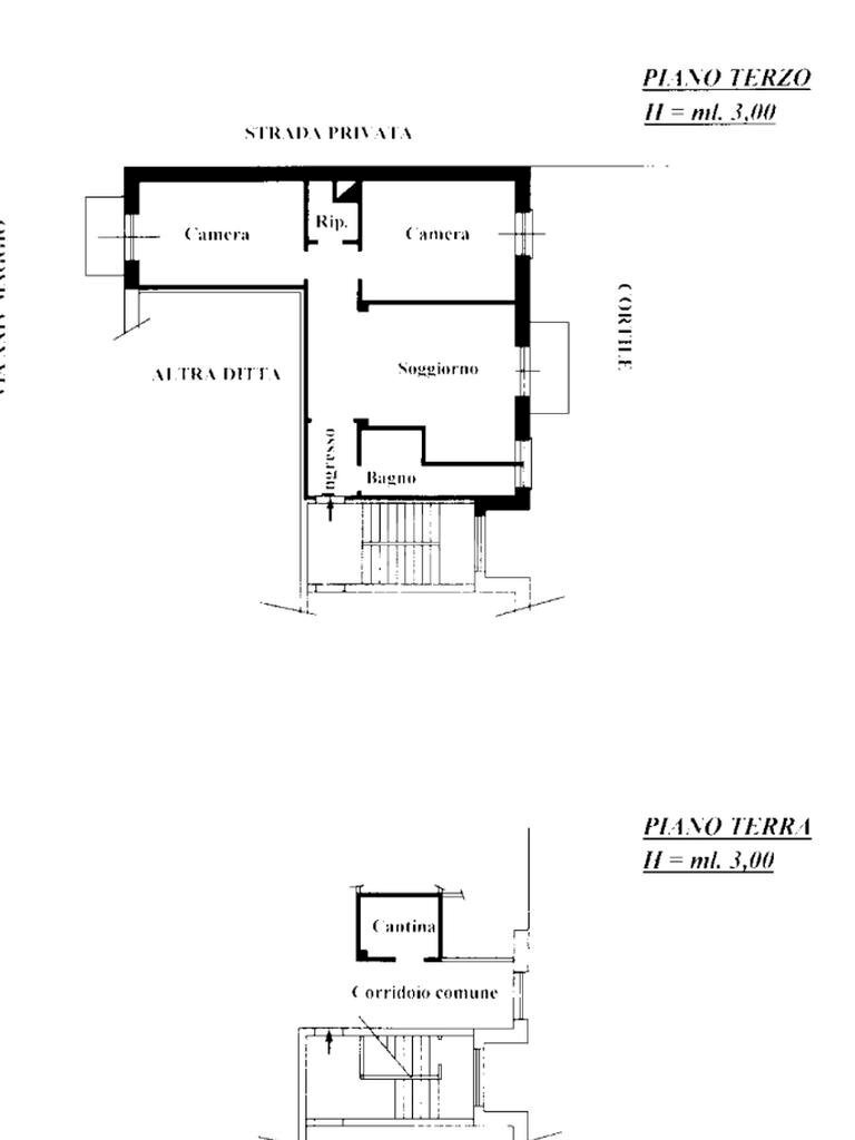
In zona centrale e comodo a tutti i servizi di prima necessità, l’appartamento si trova al terzo piano di una palazzina in paramano misto intonaco.
Dalla porta blindata si accede direttamente alla zona giorno living e luminosa con cucina a vista. La zona notte è composta dalle due camere da letto, il bagno è dotato di doccia. E’ inoltre presente il ripostiglio.
Gli infissi, recentemente sostituiti, sono in PVC con doppio vetro e l’immobile, grazie alla doppia esposizione, gode di un’ottimale luminosità.
Pertinenza della proprietà la cantina.
In zona centrale e comodo a tutti i servizi di prima necessità, l’appartamento si trova al terzo piano di una palazzina in paramano misto intonaco.
Dalla porta blindata si accede direttamente alla zona giorno living e luminosa con cucina a vista. La zona notte è composta dalle due camere da letto, il bagno è dotato di doccia. E’ inoltre presente il ripostiglio.
Gli infissi, recentemente sostituiti, sono in PVC con doppio vetro e l’immobile, grazie alla doppia esposizione, gode di un’ottimale luminosità.
Pertinenza della proprietà la cantina.
Main data
| Reference | 60962769 |
| Ad date | 08/10/2024 |
| Contract | Sale |
| Typology | Apartment |
| Surface | 75 m2 |
| Locals | 3 (3 other), 1 bathroom |
| Plan | 3 from 3 totals |
Costs
| Price | 69.000 € |
| Price per m2 | 920 €/m2 |
| Condominium fees | €150,00/month |
Energy efficiency
| Year built | 1970 |
| Heating | Centralized |
| Heating Power Type | Methane |
| Energy rating | E |
| Energy performance index (EP GL, REN ) | 9455 kWh/m3 year |
| Energy performance index (EP GL, NREN ) | 19643 kWh/m3 year |
Floor plans
Video
Address and map
Via XXIV Maggio, Volvera
Mortgage calculation
Selling price:
Advance
20,00
Mortgage
80,00
Rate: -+
Payment: 197 per month
The results are an indicative estimate based on the data entered and do not constitute a financial offer.
Advertiser
Call
CONTACT

