Four-room apartment via Spanzotti, 20, Carmagnola
€ 345.000Appartamento in prestigioso complesso nuova costruzione
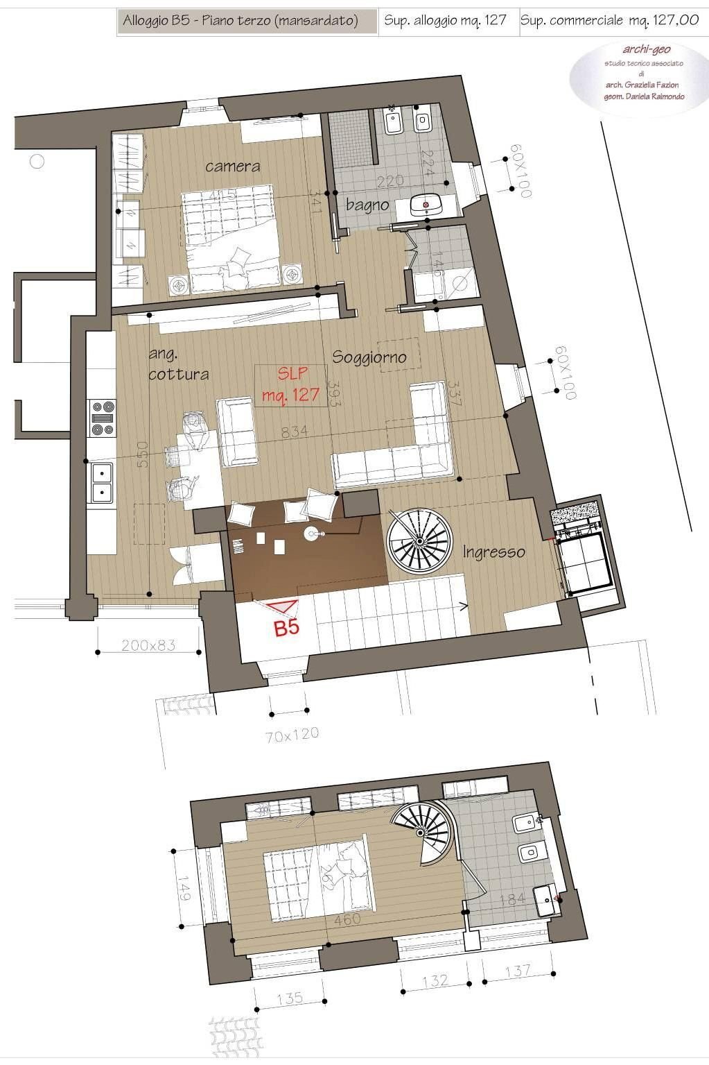
Il complesso residenziale seicentesco, ubicato nel centro storico Carmagnolese, verrà ristrutturato completamente ed adibito a residenza dal piano primo al piano terzo, mentre il piano terra sarà destinato a garage, cantine e locali tecnici. Gli appartamenti dei piani primo e secondo si affacceranno a Sud, sul loggiato a volte che fungerà da terrazzo esterno esclusivo alle abitazioni, mentre l’ultimo piano sarà caratterizzato dal tetto a vista. La proprietà verrà completata da un cortile interno. L’efficienza energetica sarà di Classe A o superiore. Gli impianti delle unità residenziali in vendita saranno di ultimissima generazione con pannelli radianti a pavimento e aria condizionata canalizzata. L’immobile sarà dotato di due impianti ascensore e di area raccolta rifiuti dedicata. Lo studio tipologico, compatibilmente con i vincoli dettati dalle norme vigenti e dai regolamenti comunali, è stato affrontato alla luce delle necessità di soddisfare le esigenze abitative in tutte le possibili articolazioni, cercando di conferire altresì alla struttura la massima regolarità e semplicità, assicurando una finitura per abitazioni di alto livello e proponendo elementi architettonici ispirati alle nuove tecnologie. Particolare attenzione è stata posta nella scelta dei materiali, in special modo per quanto riguarda gli isolamenti termico/acustici, i rivestimenti interni, le pavimentazioni, gli accessori bagno, i serramenti esterni ed interni, oltre naturalmente alla scelta accurata degli impianti termico, idraulico, elettrico. L' appartamento sarà ubicato al terzo piano, libero tre arie e disposto su due livelli. Il prestigioso immobile godrà di ingresso riservato con ascensore direttamente nella vasta zona giorno, luminosa grazie alle aperture meccanizzate sul soffitto e l'ampia vetrata con affaccio sull' elegante cortile interno, la cucina sarà a vista; il disimpegno consentirà l' accesso alla camera da letto, antibagno con lavanderia servizio. Attraverso la scala interna si accederà alla 'torretta' dell' intera struttura dove sarà collocata la seconda camera da letto, luminosa ed esclusiva con il suo bagno. Completerà la proprietà la cantina al piano terreno e la possibilità del garage sia su via Spanzotti che interno cortile. Nessuna provvigione di agenzia. Consegna prevista settembre 2026. Per avere ulteriori informazioni o per fissare la visita in cantiere potete chiamarci ai numeri 0119723929 oppure 3492863712 o passare a trovarci in Piazza Mazzini n. 2. Inoltre, potete anche contattarci al nostro indirizzo email [email protected] Qualora foste interessati ad una valutazione GRATUITA e SENZA IMPEGNO del Vostro immobile siamo a completa disposizione! Potete trovare questa e molte altre proposte sul nostro sito internet www.agenziaimmobiliaremazzini.co
Main data
| Reference | ID2295986 |
| Ad date | 08/08/2024 |
| Contract | Sale |
| Typology | Apartment |
| Surface | 127 m2 |
| Locals | 4 (2 bedrooms, 2 other), 2 bathrooms, kitchen on sight |
| Plan | 3 totals |
| Construction type | Signorile |
| Number of terraces | 1 |
| Number of balconies | 1 |
| Furniture | Absent |
Costs
| Price | 345.000 € |
| Price per m2 | 2.717 €/m2 |
| Condominium fees | €100,00/month |
Energy efficiency
| Year built | 2026 |
| Status | New |
| Heating | Autonomous |
| Energy rating | A4 |
Floor plans
Address and map
via Spanzotti, 20, Carmagnola
Mortgage calculation
Selling price:
Advance
20,00
Mortgage
80,00
Rate: -+
Payment: 987 per month
The results are an indicative estimate based on the data entered and do not constitute a financial offer.
Advertiser
Call
CONTACT


