Portion of a house Strada Del Mondino, Castiglione Torinese
€ 359.000Porzione di bifamiliare in vendita
PORZIONE DI VILLA BIFAMILIARE COMPLETAMENTE INDIPENDENTE - CLASSE ENERGETICA A4
La soluzione sarà realizzata con cappotto termico in Neopor da 14 cm, integrato da soluzioni di isolamento acustico e da infissi ad alto rendimento energetico, le tecniche costruttive adottate sono studiate per ridurre al minimo le dispersioni di calore. In copertura è previsto uno strato isolante in lana di vetro Superbac, abbinato a un sistema di microventilazione e a una barriera al vapore. Il progetto è stato sviluppato con la massima attenzione all’efficienza energetica: i muri perimetrali e portanti saranno isolati, verrà installato l'imianto fotovootaico e la caldaia a pompa di calore.
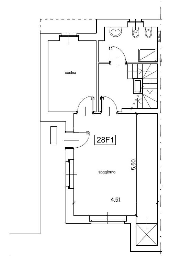
L’immobile è disposto su due livelli, l’ingresso si apre direttamente sul soggiorno di circa 25 mq, affiancato da una cucina abitabile. I due ambienti possono essere unificati, consentendo di realizzare un’ampia zona giorno di quasi 40 mq.
Il piano sottotetto si distingue per le altezze generose e per l’ottima luminosità, garantita dalla presenza di velux e finestre; qui è possibile realizzare fino a tre camere da letto e un secondo servizio igienico.
L'abitazione ha un porticato e un giardino privato con la possibilità di installare una piscina che invitano a godere della bellezza del paesaggio circostante. L'autorimessa ha una metratura di circa 40 mq.
Immergiti nell'eleganza e nella tranquillità di questa splendida porzione di villa bifamiliare, un'oasi di comfort e modernità situata nella suggestiva cornice delle colline di Castiglione Torinese.
Grazie all’utilizzo di materiali e impianti di ultima generazione, l’immobile raggiungerà la classe energetica A4, assicurando comfort interno, consumi ridotti e bassi costi di gestione, con un minore impatto ambientale.
Il progetto è pensato per chi cerca una soluzione funzionale, efficiente e inserita in un contesto tranquillo e panoramico.
Se doveste VENDERE o LOCARE un immobile potete rivolgetevi a Noi, possiamo offrire una valutazione gratuita e senza impegno, per soddisfare le numerose richieste della nostra selezionata clientela. Cerchiamo ville, appartamenti, rustici, case indipendenti e terreni.
La soluzione sarà realizzata con cappotto termico in Neopor da 14 cm, integrato da soluzioni di isolamento acustico e da infissi ad alto rendimento energetico, le tecniche costruttive adottate sono studiate per ridurre al minimo le dispersioni di calore. In copertura è previsto uno strato isolante in lana di vetro Superbac, abbinato a un sistema di microventilazione e a una barriera al vapore. Il progetto è stato sviluppato con la massima attenzione all’efficienza energetica: i muri perimetrali e portanti saranno isolati, verrà installato l'imianto fotovootaico e la caldaia a pompa di calore.
L’immobile è disposto su due livelli, l’ingresso si apre direttamente sul soggiorno di circa 25 mq, affiancato da una cucina abitabile. I due ambienti possono essere unificati, consentendo di realizzare un’ampia zona giorno di quasi 40 mq.
Il piano sottotetto si distingue per le altezze generose e per l’ottima luminosità, garantita dalla presenza di velux e finestre; qui è possibile realizzare fino a tre camere da letto e un secondo servizio igienico.
L'abitazione ha un porticato e un giardino privato con la possibilità di installare una piscina che invitano a godere della bellezza del paesaggio circostante. L'autorimessa ha una metratura di circa 40 mq.
Immergiti nell'eleganza e nella tranquillità di questa splendida porzione di villa bifamiliare, un'oasi di comfort e modernità situata nella suggestiva cornice delle colline di Castiglione Torinese.
Grazie all’utilizzo di materiali e impianti di ultima generazione, l’immobile raggiungerà la classe energetica A4, assicurando comfort interno, consumi ridotti e bassi costi di gestione, con un minore impatto ambientale.
Il progetto è pensato per chi cerca una soluzione funzionale, efficiente e inserita in un contesto tranquillo e panoramico.
Se doveste VENDERE o LOCARE un immobile potete rivolgetevi a Noi, possiamo offrire una valutazione gratuita e senza impegno, per soddisfare le numerose richieste della nostra selezionata clientela. Cerchiamo ville, appartamenti, rustici, case indipendenti e terreni.
Main data
| Reference | 60717920 |
| Ad date | 23/03/2023 |
| Contract | Sale |
| Typology | Portion of a house |
| Surface | 185 m2 |
| Locals | 5 (5 other), 2 bathrooms |
| Plan | 2 totals |
| Number of parking spaces | 2 |
Costs
| Price | 359.000 € |
| Price per m2 | 1.941 €/m2 |
Energy efficiency
| Year built | 2025 |
| Heating | Autonomous |
| Energy rating | A3 |
| Energy performance index (EP GL, REN ) | 0.4 kWh/m3 year |
| Energy performance index (EP GL, NREN ) | 0.6 kWh/m3 year |
Floor plans
Video
Address and map
Strada Del Mondino, Castiglione Torinese
Mortgage calculation
Selling price:
Advance
20,00
Mortgage
80,00
Rate: -+
Payment: 1.027 per month
The results are an indicative estimate based on the data entered and do not constitute a financial offer.
Advertiser
Call
CONTACT

