Two-room apartment Corso Alcide De Gasperi, Cuneo (neighborhood Donatello)
€ 165.000Bilocale corso Alcide De Gasperi 37, Donatello, Cuneo
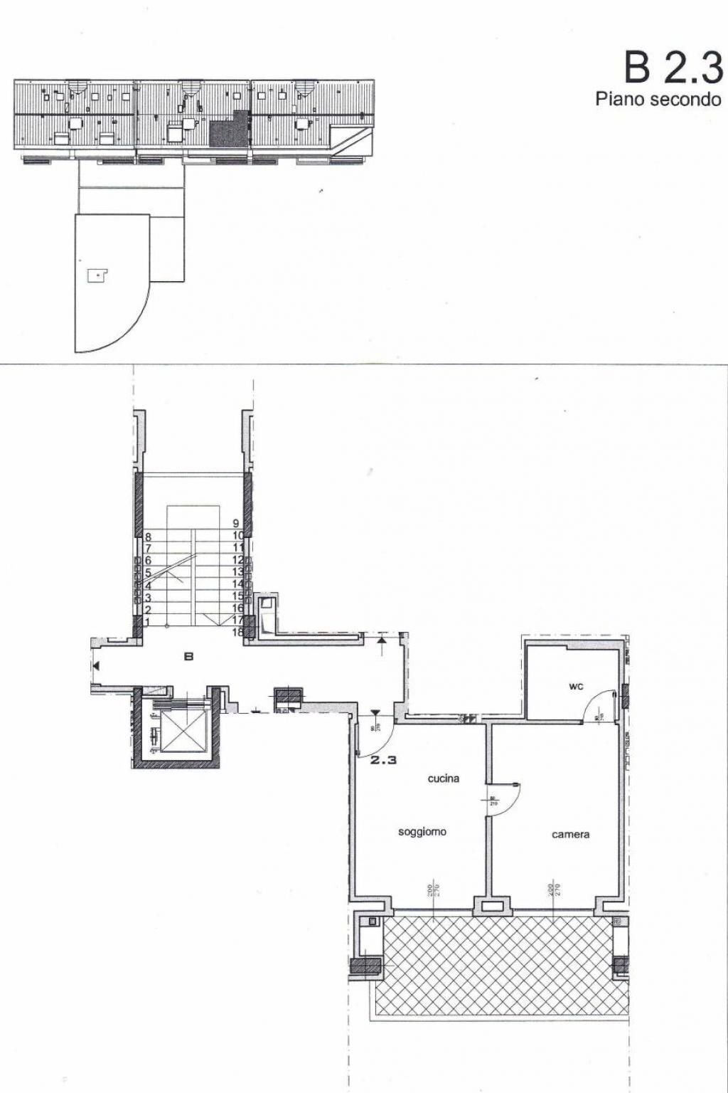
Stai cercando un appartamento nuovo da investimento, o come prima casa? L’appartamento A2/3 è al secondo piano con esposizione completamente a sud. Il Terrazzo di c.a 10 mq è molto ampio su cui si può mettere un tavolo per mangiare fuori. L’appartamento si compone di: ingresso living su soggiorno con angolo cucina, una camera, un bagno, terrazzo e la cantina. Il soggiorno e la camera sono molto luminoso grazie alle grandi vetrate che si affacciano sul terrazzo. Nel soggiorno è presente l’angolo cucina. Nel bagno troviamo la zona lavanderia e un termo arredo autonomo da accendere a proprio piacimento ed esigenza. Il riscaldamento è a pavimento anche nel bagno, per dare un confort maggiore e un taglio ai consumi, potendo avere un riscaldamento più omogeneo e meglio distribuito. I serramenti sono in pvc con triplo camera per mantenere il calore e ridurre al minimo i rumori esterni; sono con apertura tradizionale e con apertura a vasistas. Gli avvolgibili sono con apertura e chiusura elettrica. All’interno dell’appartamento, essendo in classe A è presente la ventilazione meccanica, con bocchette e macchina compresi nel prezzo. Completa la proprietà la cantina al piano interrato servita da ascensore. Sono disponibili garage di diversi dimensioni non compresi nel prezzo. Possiamo darti anche con un aggiunta nel prezzo, l'appartamento completamente tinteggiato ed arredato, cosi non avrai pensieri e sarà subito pronto.
Main data
| Reference | ID1553567 |
| Ad date | 31/01/2023 |
| Contract | Sale |
| Typology | Apartment |
| Surface | 62 m2 |
| Locals | 2 (1 bedroom, 1 other), 1 bathroom |
| Plan | 2 from 2 totals |
Costs
| Price | 165.000 € |
| Price per m2 | 2.661 €/m2 |
| Condominium fees | €25,00/month |
Energy efficiency
| Heating | Centralized |
| Heating System Type | on the floor |
| Heating Power Type | District heating |
| Energy rating | A3 |
Floor plans
Address and map
Corso Alcide De Gasperi, Cuneo - neighborhood Donatello
Mortgage calculation
Selling price:
Advance
20,00
Mortgage
80,00
Rate: -+
Payment: 472 per month
The results are an indicative estimate based on the data entered and do not constitute a financial offer.
Advertiser

Porta Del Sole
Corso Alcide de Gasperi 39, Cuneo
Show Mobile
Call
CONTACT

