Villa Unifamiliare Via Cavaioni, Bologna (zona Colli)
€ 980.000ZONA COLLI CAVAIONI
in splendido contesto collinare, riservato ma non isolato, villa unifamiliare indipendente con piscina e giardino privato di circa 600 mq.
la proprietà, costruita nel 2006 su progetto moderno, si sviluppa su una superficie di circa 250 mq ed è circondata da un curato giardino privato impreziosito da una bellissima piscina e vasca idromassaggio nella parte frontale.
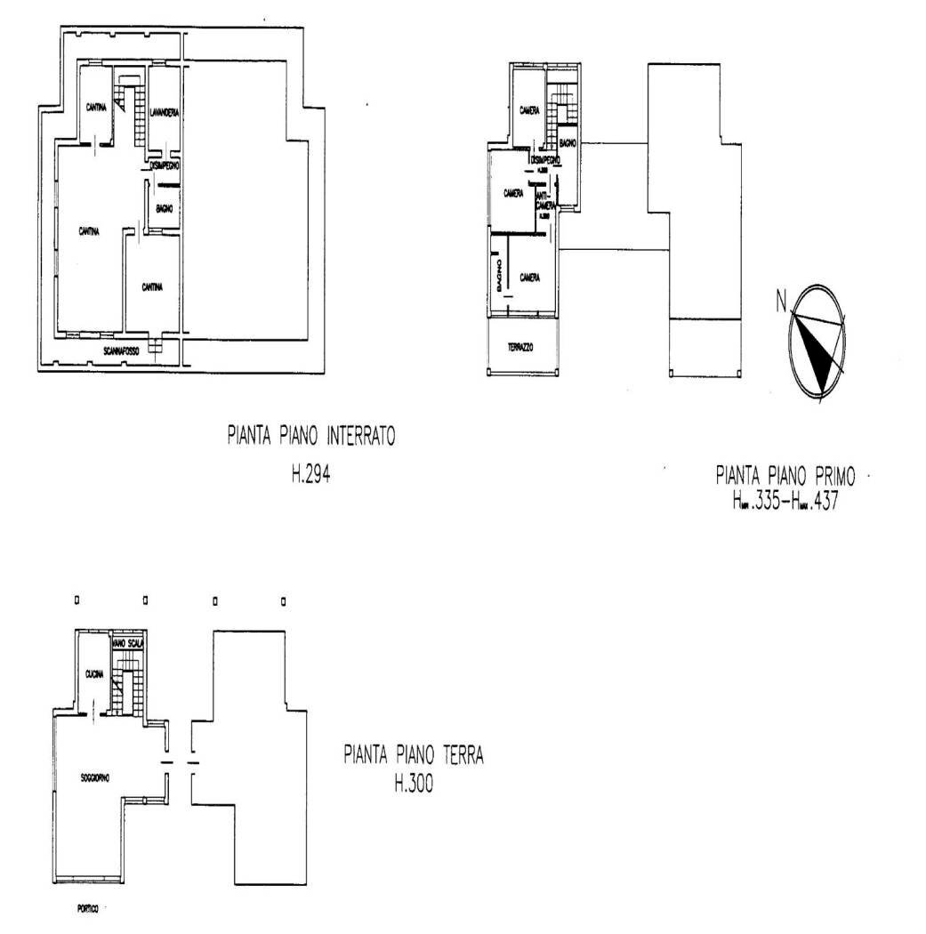
piano terra:
ampio e scenografico soggiorno con grandi vetrate che affacciano sul porticato e sulla piscina, creando una perfetta continuità tra interno ed esterno.
cucina abitabile, volendo completa di recente arredo su misura, con accesso diretto al giardino sul retro.
piano primo:
una elegante scala interna conduce alla zona notte composta da tre camere da letto e due bagni. gli ambienti, caratterizzati da soffitti con travi a vista, risultano particolarmente luminosi e di grande fascino.
splendide vetrate si aprono su una terrazza abitabile con vista aperta sulle colline bolognesi e sul giardino di proprietà.
piano seminterrato:
ampissima taverna, lavanderia, bagno e due ulteriori stanze pluriuso.
completano la proprietà:
autorimessa all’ingresso per due auto affiancate.
la villa è inserita in un contesto residenziale esclusivo, composto da altre abitazioni indipendenti, ideale per chi desidera vivere immerso nel verde e nella tranquillità senza rinunciare alla comodità dei servizi.
dotazioni e finiture:
finiture di ottimo livello
riscaldamento autonomo
aria condizionata
cappotto termico esterno
€ 980.000
la proprietà, costruita nel 2006 su progetto moderno, si sviluppa su una superficie di circa 250 mq ed è circondata da un curato giardino privato impreziosito da una bellissima piscina e vasca idromassaggio nella parte frontale.
piano terra:
ampio e scenografico soggiorno con grandi vetrate che affacciano sul porticato e sulla piscina, creando una perfetta continuità tra interno ed esterno.
cucina abitabile, volendo completa di recente arredo su misura, con accesso diretto al giardino sul retro.
piano primo:
una elegante scala interna conduce alla zona notte composta da tre camere da letto e due bagni. gli ambienti, caratterizzati da soffitti con travi a vista, risultano particolarmente luminosi e di grande fascino.
splendide vetrate si aprono su una terrazza abitabile con vista aperta sulle colline bolognesi e sul giardino di proprietà.
piano seminterrato:
ampissima taverna, lavanderia, bagno e due ulteriori stanze pluriuso.
completano la proprietà:
autorimessa all’ingresso per due auto affiancate.
la villa è inserita in un contesto residenziale esclusivo, composto da altre abitazioni indipendenti, ideale per chi desidera vivere immerso nel verde e nella tranquillità senza rinunciare alla comodità dei servizi.
dotazioni e finiture:
finiture di ottimo livello
riscaldamento autonomo
aria condizionata
cappotto termico esterno
€ 980.000
Dati principali
| Riferimento | ID3036412 |
| Data annuncio | 29/04/2026 |
| Contratto | Vendita |
| Tipologia | Villa Unifamiliare |
| Superficie | 250 m2 |
| Locali | più di 5 (3 camere da letto, 5 altro), 3 bagni, cucina abitabile |
| Piano | Terra, 2 totali |
| Numero box | 2 |
Caratteristiche
Costi
| Prezzo | 980.000 € |
| Prezzo al m2 | 3.920 €/m2 |
Efficienza energetica
| Anno costruzione | 2006 |
| Stato | Ristrutturato |
| Riscaldamento | Autonomo |
| Tipo Impianto Di Riscaldamento | a radiatori |
| Tipo Alimentazione Riscaldamento | Metano |
| Classe energetica | Immobile esente da certificazione energetica |
Planimetrie
Video
Indirizzo e mappa
Via Cavaioni, Bologna - quartiere Colli
Calcolo mutuo
Prezzo di vendita:
Anticipo
20,00
Mutuo
80,00
Tasso: -+
Rata: 2.803 al mese
I risultati sono una stima indicativa basata sui dati inseriti e non costituiscono un’offerta finanziaria.
Inserzionista

Immobiliare Margherita Marini
Via D'Azeglio 46, Bologna
Mostra Telefono
Chiama
CONTATTA

