Appartamento Piazza Giosuè Carducci 4, Bologna (zona Santo Stefano)
€ 765.000CUORE DEL CENTRO STORICO - SANTO STEFANO - P.ZZA CARDUCCI
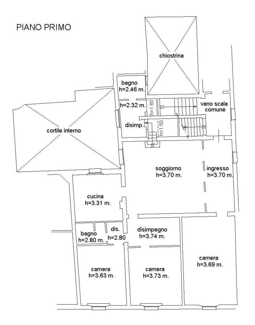
in uno degli angoli più affascinanti e autentici di bologna, adiacente al museo morandi, in vendita affascinante appartamento di circa 200 mq situato al primo piano di un edificio vincolato dalle belle arti, ricco di storia e charme.
una residenza di grande fascino, immersa nel silenzio e nella bellezza storica del centro di bologna.
la proprietà si distingue per l’atmosfera d’altri tempi e la disposizione razionale e armoniosa degli spazi. gli ambienti sono ampi, luminosi e silenziosi, con soffitti alti che conferiscono un senso di grande respiro e prestigio.
l’ingresso si apre su una zona giorno elegante, perfetta per ricevere e vivere momenti conviviali. dal soggiorno si accede alla grande cucina abitabile, nella zona notte con disimpegno con spazi adibiti ad armadiature, tre camere molto grandi, due bagni e ripostiglio/lavanderia. le stanze susseguono in modo funzionale e ben distribuito, garantendo comfort.
dotato di riscaldamento autonomo, aria condizionata e spese condominiali molto contenute.
completa la proprietà un’ampia cantina al piano interrato.
volendo disponibile in locazione un ampio garage a €300 mensili, elemento raro e prezioso per la zona.
€ 765.000,00
una residenza di grande fascino, immersa nel silenzio e nella bellezza storica del centro di bologna.
la proprietà si distingue per l’atmosfera d’altri tempi e la disposizione razionale e armoniosa degli spazi. gli ambienti sono ampi, luminosi e silenziosi, con soffitti alti che conferiscono un senso di grande respiro e prestigio.
l’ingresso si apre su una zona giorno elegante, perfetta per ricevere e vivere momenti conviviali. dal soggiorno si accede alla grande cucina abitabile, nella zona notte con disimpegno con spazi adibiti ad armadiature, tre camere molto grandi, due bagni e ripostiglio/lavanderia. le stanze susseguono in modo funzionale e ben distribuito, garantendo comfort.
dotato di riscaldamento autonomo, aria condizionata e spese condominiali molto contenute.
completa la proprietà un’ampia cantina al piano interrato.
volendo disponibile in locazione un ampio garage a €300 mensili, elemento raro e prezioso per la zona.
€ 765.000,00
Dati principali
| Riferimento | ID3036400 |
| Data annuncio | 29/04/2026 |
| Contratto | Vendita |
| Tipologia | Appartamento |
| Superficie | 209 m2 |
| Locali | più di 5 (3 camere da letto, 3 altro), 2 bagni, cucina abitabile |
| Piano | 1 di 2 totali |
| Impianto TV | Centralizzato |
Caratteristiche
Costi
| Prezzo | 765.000 € |
| Prezzo al m2 | 3.660 €/m2 |
Efficienza energetica
| Anno costruzione | 1800 |
| Riscaldamento | Autonomo |
| Tipo Impianto Di Riscaldamento | a radiatori |
| Tipo Alimentazione Riscaldamento | Metano |
| Infissi esterni | Doppio vetro / Legno |
| Classe energetica | E |
| Indice di prestazione energetica (IPE) | 175 kWh/m2 anno |
Planimetrie
Virtual tour
Video
Indirizzo e mappa
Piazza Giosuè Carducci 4, Bologna - quartiere Santo Stefano
Calcolo mutuo
Prezzo di vendita:
Anticipo
20,00
Mutuo
80,00
Tasso: -+
Rata: 2.188 al mese
I risultati sono una stima indicativa basata sui dati inseriti e non costituiscono un’offerta finanziaria.
Inserzionista

Immobiliare Margherita Marini
Via D'Azeglio 46, Bologna
Mostra Telefono
Chiama
CONTATTA

