Villa Trifamiliare Via dell'Angelo Custode 2, Bologna (zona San Ruffillo)
€ 810.000VIA TOSCANA - ANGELO CUSTODE
TOSCANA PEDECOLLINARE Importante VILLA TRIFAMIGLIARE da ristrutturare od eventuale possibilita' di demolizione con ricostruzione, per creare piu' unita' abitative o indipendente.
In posizione comoda ai servizi.
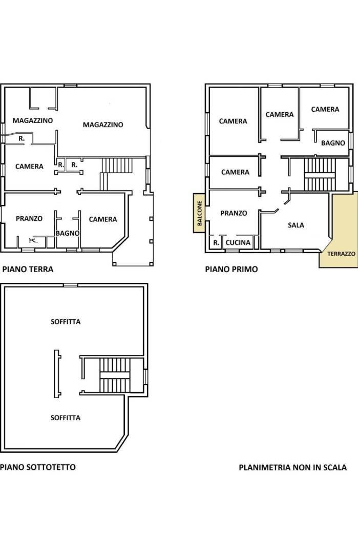
Attualmente su un lotto di mq. 810 circa, composta da due unita' abitative su due livelli piu' soffitta, grande deposito/ garage per un totale di mq. 470 più seminterrato locale multiuso di mq. 99.
Terrazzamento con giardino e passo carraio regolamentare.
TERRAZZAMENTO CON GIARDINO E PASSO CARRAIO REGOLAMENTARE.
€. 810.000,00
In posizione comoda ai servizi.
Attualmente su un lotto di mq. 810 circa, composta da due unita' abitative su due livelli piu' soffitta, grande deposito/ garage per un totale di mq. 470 più seminterrato locale multiuso di mq. 99.
Terrazzamento con giardino e passo carraio regolamentare.
TERRAZZAMENTO CON GIARDINO E PASSO CARRAIO REGOLAMENTARE.
€. 810.000,00
Dati principali
| Riferimento | ID3036391 |
| Data annuncio | 29/04/2026 |
| Contratto | Vendita |
| Tipologia | Villa Trifamiliare |
| Superficie | 470 m2 |
| Locali | più di 5 (6 camere da letto, 5 altro), 3 bagni, cucina abitabile |
| Piano | Interrato, 2 totali |
| Numero box | 2 |
| Impianto TV | Centralizzato |
Caratteristiche
Costi
| Prezzo | 810.000 € |
| Prezzo al m2 | 1.723 €/m2 |
| Spese Riscaldamento | € 1000,00/anno |
Efficienza energetica
| Anno costruzione | 1950 |
| Riscaldamento | Autonomo |
| Tipo Impianto Di Riscaldamento | a radiatori |
| Tipo Alimentazione Riscaldamento | Metano |
| Classe energetica | G |
| Indice di prestazione energetica (IPE) | 175 kWh/m2 anno |
Planimetrie
Virtual tour
Indirizzo e mappa
Via dell'Angelo Custode 2, Bologna - quartiere San Ruffillo
Calcolo mutuo
Prezzo di vendita:
Anticipo
20,00
Mutuo
80,00
Tasso: -+
Rata: 2.317 al mese
I risultati sono una stima indicativa basata sui dati inseriti e non costituiscono un’offerta finanziaria.
Inserzionista

Immobiliare Margherita Marini
Via D'Azeglio 46, Bologna
Mostra Telefono
Chiama
CONTATTA

