Villa Via degli Stradelli Guelfi, Bologna
€ 470.000Villa singola in vendita
VILLA SINGOLA - STRADELLI GUELFI
Villa singola di 210 mq inserita in un contesto di assoluta tranquillità e riservatezza dove il verde e il silenzio diventano protagonisti della vita quotidiana pur rimanendo a pochi minuti dai principali servizi e dal centro urbano una soluzione perfetta per chi desidera qualità abitativa e comfort senza rinunciare alla comodità della città.
La proprietà si distingue per un ampio giardino privato di circa 600 mq uno spazio generoso e curato che avvolge l'abitazione regalando privacy totale ideale per momenti di relax all aperto per famiglie con bambini o per chi desidera vivere la casa anche nei suoi spazi esterni inoltre è presente un secondo accesso alle unità abitative da via Due Madonne che garantisce ulteriore praticità e indipendenza.
L'immobile sviluppa una superficie di 210 mq ed è già suddiviso in due unità abitative indipendenti caratteristica che lo rende estremamente versatile e adatto sia a nuclei familiari numerosi sia a chi desidera condividere la vicinanza con i propri cari mantenendo al tempo stesso la propria autonomia.
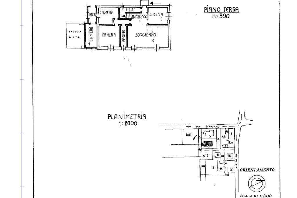
Al piano terra troviamo il primo appartamento di 130 mq con ambienti ampi e ben distribuiti con sala accogliente cucina funzionale due camere da letto studio bagno ripostiglio sottoscala e accesso diretto al giardino creando un collegamento naturale tra interno ed esterno oltre a comodo box auto di 16 mq.
Al piano primo troviamo il secondo appartamento di 80 mq che offre un atmosfera altrettanto confortevole composto da tinello cucinotto sala due camere da letto bagno e balcone lungo che percorre l 'intera facciata garantendo luminosità e sfogo esterno continuo uno spazio ben organizzato ideale come seconda unità abitativa autonoma.
La generosa metratura offre inoltre interessanti prospettive di valorizzazione grazie alla possibilità di un ulteriore frazionamento in più unità abitative aumentando il potenziale rendimento e rendendo l immobile una valida opportunità anche per investimento.
Il tetto di proprietà permette la possibilità di installazione di impianto fotovoltaico soluzione ideale per migliorare l efficienza energetica e ottimizzare i costi di gestione nel tempo.
Il vero valore aggiunto è la posizione un equilibrio raro tra quiete e praticità circondato dal verde e lontano dal traffico ma con tutti i servizi facilmente raggiungibili una casa che unisce spazio indipendenza e qualità della vita nonostante la presenza limitrofa della tangenziale la presenza di barriere protettive garantisce un eccellente isolamento acustico offrendo un contesto silenzioso e riservato.
Per maggiori informazioni o per fissare una visita, non esitate a contattarci allo 051-4071883.
Villa singola di 210 mq inserita in un contesto di assoluta tranquillità e riservatezza dove il verde e il silenzio diventano protagonisti della vita quotidiana pur rimanendo a pochi minuti dai principali servizi e dal centro urbano una soluzione perfetta per chi desidera qualità abitativa e comfort senza rinunciare alla comodità della città.
La proprietà si distingue per un ampio giardino privato di circa 600 mq uno spazio generoso e curato che avvolge l'abitazione regalando privacy totale ideale per momenti di relax all aperto per famiglie con bambini o per chi desidera vivere la casa anche nei suoi spazi esterni inoltre è presente un secondo accesso alle unità abitative da via Due Madonne che garantisce ulteriore praticità e indipendenza.
L'immobile sviluppa una superficie di 210 mq ed è già suddiviso in due unità abitative indipendenti caratteristica che lo rende estremamente versatile e adatto sia a nuclei familiari numerosi sia a chi desidera condividere la vicinanza con i propri cari mantenendo al tempo stesso la propria autonomia.
Al piano terra troviamo il primo appartamento di 130 mq con ambienti ampi e ben distribuiti con sala accogliente cucina funzionale due camere da letto studio bagno ripostiglio sottoscala e accesso diretto al giardino creando un collegamento naturale tra interno ed esterno oltre a comodo box auto di 16 mq.
Al piano primo troviamo il secondo appartamento di 80 mq che offre un atmosfera altrettanto confortevole composto da tinello cucinotto sala due camere da letto bagno e balcone lungo che percorre l 'intera facciata garantendo luminosità e sfogo esterno continuo uno spazio ben organizzato ideale come seconda unità abitativa autonoma.
La generosa metratura offre inoltre interessanti prospettive di valorizzazione grazie alla possibilità di un ulteriore frazionamento in più unità abitative aumentando il potenziale rendimento e rendendo l immobile una valida opportunità anche per investimento.
Il tetto di proprietà permette la possibilità di installazione di impianto fotovoltaico soluzione ideale per migliorare l efficienza energetica e ottimizzare i costi di gestione nel tempo.
Il vero valore aggiunto è la posizione un equilibrio raro tra quiete e praticità circondato dal verde e lontano dal traffico ma con tutti i servizi facilmente raggiungibili una casa che unisce spazio indipendenza e qualità della vita nonostante la presenza limitrofa della tangenziale la presenza di barriere protettive garantisce un eccellente isolamento acustico offrendo un contesto silenzioso e riservato.
Per maggiori informazioni o per fissare una visita, non esitate a contattarci allo 051-4071883.
Dati principali
| Riferimento | 61208593 |
| Data annuncio | 18/04/2026 |
| Contratto | Vendita |
| Tipologia | Villa |
| Superficie | 240 m2 |
| Locali | più di 5 (10 altro), 2 bagni |
| Piano | 1 di 2 totali |
| Numero posti auto | 1 |
Costi
| Prezzo | 470.000 € |
| Prezzo al m2 | 1.958 €/m2 |
Efficienza energetica
| Anno costruzione | 1953 |
| Riscaldamento | Autonomo |
| Tipo Alimentazione Riscaldamento | Metano |
| Classe energetica | G |
| Indice di prestazione energetica (EP GL, REN) | 194.39 kWh/m3 anno |
| Indice di prestazione energetica (EP GL, NREN) | 194.39 kWh/m3 anno |
Planimetrie
Indirizzo e mappa
Via degli Stradelli Guelfi, Bologna
Calcolo mutuo
Prezzo di vendita:
Anticipo
20,00
Mutuo
80,00
Tasso: -+
Rata: 1.344 al mese
I risultati sono una stima indicativa basata sui dati inseriti e non costituiscono un’offerta finanziaria.
Inserzionista
Chiama
CONTATTA

