Appartamento Via Saragozza, Bologna (zona Saragozza)
Trattativa riservataCENTRO STORICO/VIA SARAGOZZA
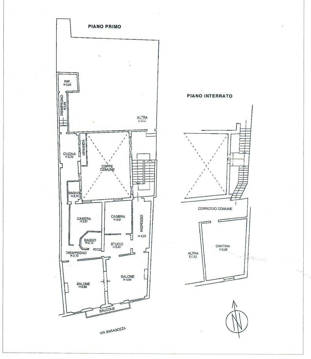
All'interno di palazzo storico in ottimo stato, ESCLUSIVO E SIGNORILE APPARTAMENTO, posto al piano nobile con soffitti decorati di h. 3,80/4, in zona ben servita del centro storico. L'appartamento è posto al primo piano, così detto piano nobile, ha un'ampia superficie di circa 220 mq. ed è composto da ingresso, salone doppio di rappresentanza con splendidi affreschi trompe-l'oeil decorativi sul soffitto e due camini, balcone, cucina abitabile con annesso ripostiglio/dispensa e piccola veranda, disimpegno, studio, due camere di cui una con bagno personale, secondo bagno, ampia e ristrutturata cantina al piano interrato. L'immobile è in ottimo stato di manutenzione, ben rifinito, DI RAPPRESENTANZA e dotato di riscaldamento autonomo ed aria condizionata. Gli affacci delle stanze sono interni tranquilli e silenziosi. Possibilità di due posti auto in locazione nelle immediate adiacenze. DATO IL PREGIO DELL'IMMOBILE LA TRATTATIVA E' RISERVATA. POSSIBILITA' DI ACQUISTO ANCHE DELLA NUDA PROPRIETA'. - Per info ed eventuali appuntamenti telefonare al numero 336901701, Claudio Bonfiglioli Servizi Immobiliari
Dati principali
| Riferimento | VA2026 2003 2 |
| Data annuncio | 02/04/2026 |
| Contratto | Vendita |
| Tipologia | Appartamento |
| Superficie | 220 m2 |
| Locali | più di 5 (2 camere da letto, 4 altro), 2 bagni, cucina abitabile |
| Piano | 1 di 3 totali |
| Impianto TV | Centralizzato |
Caratteristiche
Costi
| Prezzo | Trattativa riservata |
Efficienza energetica
| Anno costruzione | 1900 |
| Stato | Ristrutturato |
| Riscaldamento | Autonomo |
| Tipo Impianto Di Riscaldamento | a radiatori |
| Tipo Alimentazione Riscaldamento | Metano |
| Infissi esterni | Doppio vetro / Legno |
| Classe energetica | G |
| Indice di prestazione energetica (IPE) | 175 kWh/m2 anno |
Planimetrie
Indirizzo e mappa
Via Saragozza, Bologna - quartiere Saragozza
Inserzionista

Claudio Bonfiglioli Servizi Immobiliari
Via Toscana 28, Bologna
Mostra Telefono
Mostra Cellulare
Chiama
CONTATTA

