Appartamento Via San Petronio Vecchio, Bologna (zona Santo Stefano)
€ 795.000ZONA SANTO STEFANO AD.ZE VIA SAN PETRONIO VECCHIO/ FONDAZZA
in stabile anni '70 ben tenuto, appartamento luminoso e silenzioso, di circa 185 mq, sito al primo piano con ascensore.
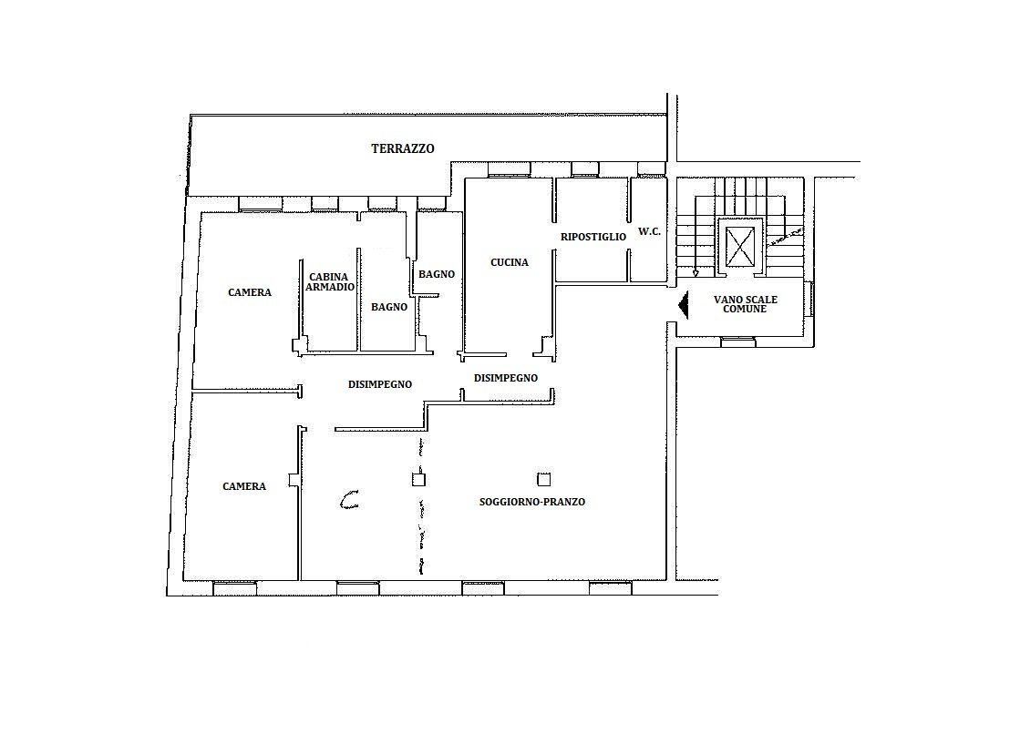
composto da: ampio soggiorno-pranzo, cucina abitabile da cui si accede a un piacevole terrazzo abitabile ideale per cene e relax, tre spaziose camere di cui una con cabina armadi, disimpegno, due bagni di design, ripostiglio/lavanderia con servizio e cantina.
aria condizionata, riscaldamento centralizzato con contacalorie.
€ 795.000 volendo autorimessa tripla €. 290.000
composto da: ampio soggiorno-pranzo, cucina abitabile da cui si accede a un piacevole terrazzo abitabile ideale per cene e relax, tre spaziose camere di cui una con cabina armadi, disimpegno, due bagni di design, ripostiglio/lavanderia con servizio e cantina.
aria condizionata, riscaldamento centralizzato con contacalorie.
€ 795.000 volendo autorimessa tripla €. 290.000
Dati principali
| Riferimento | ID3013666 |
| Data annuncio | 02/04/2026 |
| Contratto | Vendita |
| Tipologia | Appartamento |
| Superficie | 185 m2 |
| Locali | più di 5 (3 camere da letto, 3 altro), 2 bagni, cucina abitabile |
| Piano | 1 di 4 totali |
| Numero box | 2 |
| Impianto TV | Centralizzato |
Caratteristiche
Costi
| Prezzo | 795.000 € |
| Prezzo al m2 | 4.297 €/m2 |
Efficienza energetica
| Anno costruzione | 1970 |
| Riscaldamento | Centralizzato |
| Tipo Impianto Di Riscaldamento | a radiatori |
| Tipo Alimentazione Riscaldamento | Metano |
| Classe energetica | E |
| Indice di prestazione energetica (IPE) | 175 kWh/m2 anno |
Planimetrie
Indirizzo e mappa
Via San Petronio Vecchio, Bologna - quartiere Santo Stefano
Calcolo mutuo
Prezzo di vendita:
Anticipo
20,00
Mutuo
80,00
Tasso: -+
Rata: 2.274 al mese
I risultati sono una stima indicativa basata sui dati inseriti e non costituiscono un’offerta finanziaria.
Inserzionista

Immobiliare Margherita Marini
Via D'Azeglio 46, Bologna
Mostra Telefono
Chiama
CONTATTA

