Quadrilocale Via Armando Quadri, Bologna (zona San Vitale)
€ 690.000ZONA STRADA MAGGIORE - SAN VITALE - PIAZZA ALDROVANDI
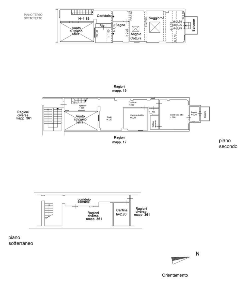
nel cuore del centro storico, all’interno di un tipico stabile bolognese, delizioso appartamento di circa 140 mq, con due balconcini abitabili con splendida vista sui tetti di bologna.
l’immobile, interno e molto silenzioso, gode di affacci riservati sul verde e risulta particolarmente luminoso. è stato ristrutturato nel 2017 con materiali di pregio e soluzioni su misura.
situato al secondo piano senza ascensore, l’appartamento è comunque dotato di una comoda sedia montascale uprise ad uso esclusivo. si sviluppa su due livelli collegati da scala interna.
al primo livello si trova la zona notte, con due camere da letto, di cui una matrimoniale con cabina armadio e bagno en suite, una seconda camera impreziosita dalla presenza di un affresco, studio/ terza camera, ripostiglio e terrazzino con tipica fontanella.
il livello superiore accoglie la zona giorno, una luminosa sala living mansardata dal grande fascino con travi a vista autentici, cucina moderna razionale, e librerie realizzate su misura. anche qui è presente un delizioso terrazzino abitabile con vista sui tetti di bologna, perfetto per momenti di relax. il piano è completato da un bagno con area lavanderia e ripostiglio, rifinito anch’esso con piastrelle di vietri.
pavimenti in rovere artigianale e porte in noce. l’immobile è dotato di aria condizionata, riscaldamento autonomo, impianto di allarme, zanzariere e predisposizioni varie.
completano la proprietà una cantina e un cortile condominiale con posto bici.
€ 690.000
l’immobile, interno e molto silenzioso, gode di affacci riservati sul verde e risulta particolarmente luminoso. è stato ristrutturato nel 2017 con materiali di pregio e soluzioni su misura.
situato al secondo piano senza ascensore, l’appartamento è comunque dotato di una comoda sedia montascale uprise ad uso esclusivo. si sviluppa su due livelli collegati da scala interna.
al primo livello si trova la zona notte, con due camere da letto, di cui una matrimoniale con cabina armadio e bagno en suite, una seconda camera impreziosita dalla presenza di un affresco, studio/ terza camera, ripostiglio e terrazzino con tipica fontanella.
il livello superiore accoglie la zona giorno, una luminosa sala living mansardata dal grande fascino con travi a vista autentici, cucina moderna razionale, e librerie realizzate su misura. anche qui è presente un delizioso terrazzino abitabile con vista sui tetti di bologna, perfetto per momenti di relax. il piano è completato da un bagno con area lavanderia e ripostiglio, rifinito anch’esso con piastrelle di vietri.
pavimenti in rovere artigianale e porte in noce. l’immobile è dotato di aria condizionata, riscaldamento autonomo, impianto di allarme, zanzariere e predisposizioni varie.
completano la proprietà una cantina e un cortile condominiale con posto bici.
€ 690.000
Dati principali
| Riferimento | ID3013613 |
| Data annuncio | 02/04/2026 |
| Contratto | Vendita |
| Tipologia | Appartamento |
| Superficie | 140 m2 |
| Locali | 4 (2 camere da letto, 2 altro), 2 bagni |
| Piano | 2 di 2 totali |
| Impianto TV | Centralizzato |
Caratteristiche
Costi
| Prezzo | 690.000 € |
| Prezzo al m2 | 4.929 €/m2 |
Efficienza energetica
| Anno costruzione | 1800 |
| Stato | Ristrutturato |
| Riscaldamento | Autonomo |
| Tipo Impianto Di Riscaldamento | a radiatori |
| Tipo Alimentazione Riscaldamento | Metano |
| Classe energetica | Immobile esente da certificazione energetica |
Planimetrie
Virtual tour
Indirizzo e mappa
Via Armando Quadri, Bologna - quartiere San Vitale
Calcolo mutuo
Prezzo di vendita:
Anticipo
20,00
Mutuo
80,00
Tasso: -+
Rata: 1.973 al mese
I risultati sono una stima indicativa basata sui dati inseriti e non costituiscono un’offerta finanziaria.
Inserzionista

Immobiliare Margherita Marini
Via D'Azeglio 46, Bologna
Mostra Telefono
Chiama
CONTATTA

