Quadrilocale Viale Alessandro Manzoni 15, Modica
€ 33.000APPARTAMENTO - USATO a MODICA ALTA, Modica
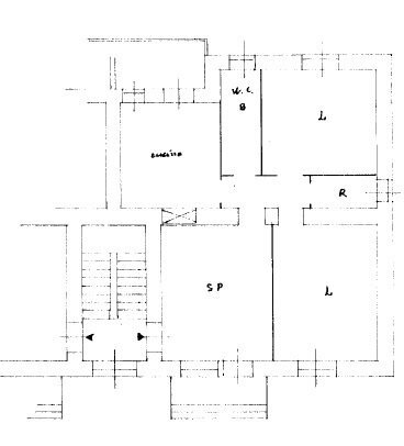
In zona tranquilla e ben servita di Modica Alta, in Viale Manzoni, proponiamo in vendita un appartamento di circa 80 mq posto al secondo piano di un piccolo stabile senza ascensore. L’immobile è composto da ingresso, soggiorno, cucina, due camere da letto, bagno e ripostiglio e si presenta da ristrutturare internamente, offrendo la possibilità di personalizzare gli ambienti secondo le proprie esigenze. Lo stabile si distingue per il recente rifacimento della facciata con cappotto termico, elemento che garantisce un migliore isolamento e un valore aggiunto all’immobile. Prezzo trattabile.
Dati principali
| Riferimento | 11715 |
| Data annuncio | 30/03/2026 |
| Contratto | Vendita |
| Tipologia | Appartamento |
| Superficie | 80 m2 |
| Locali | 4 (2 camere da letto, 2 altro), 1 bagno |
| Piano | 1 totali |
| Numero di balconi | 1 |
Costi
| Prezzo | 33.000 € |
| Prezzo al m2 | 413 €/m2 |
Efficienza energetica
| Anno costruzione | 1961 |
| Classe energetica | In fase di calcolo |
Planimetrie
Indirizzo e mappa
Viale Alessandro Manzoni 15, Modica
Calcolo mutuo
Prezzo di vendita:
Anticipo
20,00
Mutuo
80,00
Tasso: -+
Rata: 94 al mese
I risultati sono una stima indicativa basata sui dati inseriti e non costituiscono un’offerta finanziaria.
Inserzionista

GFA REAL ESTATE S.R.L.S.
PIAZZA LIBERTA', 9, Modica
Mostra Telefono
Mostra Cellulare
Chiama
CONTATTA

