Villa Localita' Caramelli, Rodello
€ 1.370.000Villa singola in vendita
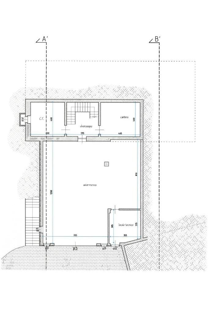
RODELLO - Nel suggestivo contesto collinare delle Langhe, nel comune di Rodello, è in fase di realizzazione una prestigiosa villa indipendente su quattro lati, inserita in un lotto di circa 1.100 mq e caratterizzata da una splendida vista panoramica aperta sul paesaggio circostante. La proprietà, di circa 540 mq complessivi, si sviluppa su tre livelli ed è stata progettata per offrire ambienti ampi, luminosi e perfettamente distribuiti; trattandosi di una costruzione in corso, vi è ancora la possibilità di personalizzare gli spazi interni e adattarli alle proprie esigenze abitative, oltre alla scelta delle finiture. Al piano seminterrato si trova un’ampia autorimessa di 122 mq, collegata internamente all’abitazione tramite scala, oltre al locale caldaia, alla cantina e al locale tecnico dedicato alla piscina. È inoltre già stata realizzata la predisposizione per l’installazione di un ascensore, offrendo così la possibilità, per chi lo desiderasse, di integrarlo anche in un secondo momento. Il piano terra accoglie l’ingresso principale e si apre su un elegante soggiorno di circa 60 mq con cucina a vista, un ambiente conviviale e luminoso che gode di accesso diretto al portico esterno, ideale per momenti di relax e convivialità all’aperto. Sullo stesso livello trovano spazio uno spogliatoio, un disimpegno che conduce a un bagno finestrato, un locale stireria, un secondo bagno anch’esso finestrato, una camera da letto e un pratico ripostiglio. Salendo al primo piano si sviluppa la zona notte, composta da due camere da letto dotate di cabina armadio e bagno en suite, oltre a una terza camera con bagno privato. La camera padronale si distingue per l’accesso diretto a un ampio terrazzo di circa 70 mq, uno spazio riservato e panoramico ideale per godere appieno della vista sulle colline; anche il disimpegno del piano conduce allo stesso terrazzo, creando una piacevole continuità tra interno ed esterno. Tutti i bagni sono finestrati, a garanzia di luce naturale e comfort abitativo. All’esterno, il giardino privato valorizza ulteriormente la proprietà, mentre la piscina a sfioro, dalle dimensioni di 12 x 5 metri e dotata di telo automatico per l’apertura e la chiusura, completa questo progetto esclusivo, pensato per offrire il massimo benessere in un contesto di assoluta tranquillità. Una residenza di grande pregio, ideale per chi desidera vivere immerso nella natura senza rinunciare a spazi generosi, comfort moderni e un’eleganza senza tempo.
Dati principali
| Riferimento | 61197762 |
| Data annuncio | 28/03/2026 |
| Contratto | Vendita |
| Tipologia | Villa |
| Superficie | 540 m2 |
| Locali | 5 (5 altro), 5 bagni |
| Piano | 2 totali |
Costi
| Prezzo | 1.370.000 € |
| Prezzo al m2 | 2.537 €/m2 |
Efficienza energetica
| Riscaldamento | Autonomo |
| Tipo Alimentazione Riscaldamento | Altro |
| Classe energetica | Immobile esente da certificazione energetica |
Planimetrie
Indirizzo e mappa
Localita' Caramelli, Rodello
Calcolo mutuo
Prezzo di vendita:
Anticipo
20,00
Mutuo
80,00
Tasso: -+
Rata: 3.918 al mese
I risultati sono una stima indicativa basata sui dati inseriti e non costituiscono un’offerta finanziaria.
Inserzionista
Agenzia Tecnocasa Studio Langhe Sas
Corso Italia, 8/D, Alba
Mostra Telefono
Chiama
CONTATTA

