Trilocale Strada Torremozza 19, Nardò
€ 180.000
Puglia - Salento - Santa Maria Al Bagno (Nardò) - Strada Torre Mozza angolo via Luca Giordano
Residence esclusivo con piscina VISTA MARE Classe A4 NZEB
ULTIME DUE UNITA' DISPONIBILI SU SEI
Nel cuore del Salento, a pochi minuti dal mare di Santa Maria al Bagno, proponiamo in vendita un elegante appartamento inserito in un esclusivo residence di recente costruzione composto da sole sei unità abitative.
Limmobile si distingue per lelevatissimo standard costruttivo e per la classe energetica A4 NZEB (Nearly Zero Energy Building), una delle certificazioni più avanzate in ambito residenziale, che garantisce consumi energetici quasi pari a zero, massimo comfort abitativo e costi di gestione estremamente ridotti.
Efficienza energetica e tecnologia
Il residence è stato progettato con soluzioni tecnologiche di ultima generazione orientate alla sostenibilità e allautonomia energetica:
Impianto fotovoltaico da 15 kWp
Batterie di accumulo da 25 kWh per lutilizzo dellenergia anche nelle ore serali
Pannelli solari termici per la produzione di acqua calda sanitaria
Riscaldamento e raffrescamento con pompa di calore, gestito anche da remoto
Cucina a induzione di alta qualità
Cappotto termico su tutto ledificio per un isolamento energetico ottimale
Isolamento acustico avanzato con pannelli fonoassorbenti tra le unità abitative e parquet di ottima qualità ovunque
Infissi in PVC ad alte prestazioni e WI-FI in tutto il residence
Un sistema integrato che consente di vivere in una casa moderna, sostenibile e con consumi energetici estremamente ridotti.
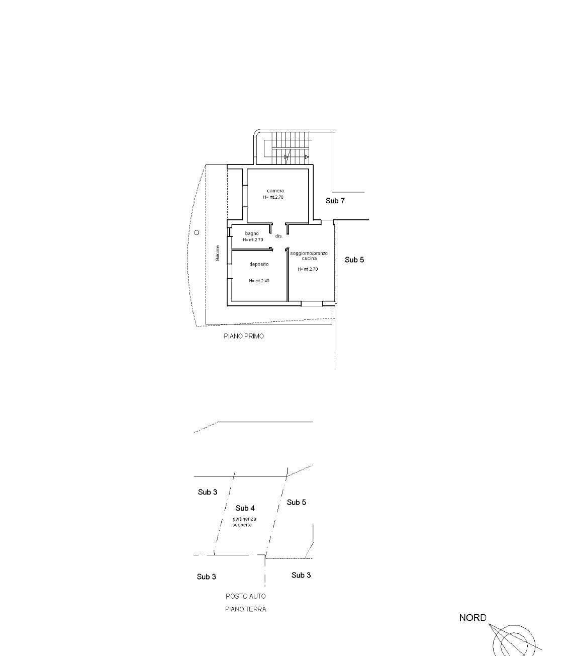
Limmobile si trova al primo piano e gode di unottima luminosità grazie alla sua esposizione angolare.
Lingresso conduce alla zona living con cucina su misura, un ambiente luminoso e accogliente con accesso diretto al balcone angolare a L, vero punto di forza dellabitazione, che offre una doppia vista molto piacevole:
da un lato unampia apertura sul verde, su unarea naturale della zona
dallaltro una suggestiva vista mare anche se parziale
La zona notte comprende:
due camere da letto
un bagno moderno e funzionale
Completa la proprietà un posto auto privato al piano terra
Il residence offre una splendida terrazza panoramica vista mare, pensata come spazio di relax e benessere per i residenti:
Piscina panoramica riscaldata con vista sul Mar Ionio
Solarium attrezzato
Area lounge panoramica coperta da una struttura ombreggiante integrata con impianto fotovoltaico
Un ambiente elegante dove design, comfort e sostenibilità si incontrano.
La proprietà si trova in una posizione strategica, a circa 1 km dal mare, in una delle località più apprezzate della costa ionica salentina.
Grazie alle caratteristiche costruttive di alto livello, alla presenza della piscina e alla crescente domanda turistica della zona, limmobile rappresenta una soluzione ideale sia come residenza privata sia come investimento immobiliare, con ottime prospettive nel mercato delle locazioni turistiche.
Residence esclusivo con piscina VISTA MARE Classe A4 NZEB
ULTIME DUE UNITA' DISPONIBILI SU SEI
Nel cuore del Salento, a pochi minuti dal mare di Santa Maria al Bagno, proponiamo in vendita un elegante appartamento inserito in un esclusivo residence di recente costruzione composto da sole sei unità abitative.
Limmobile si distingue per lelevatissimo standard costruttivo e per la classe energetica A4 NZEB (Nearly Zero Energy Building), una delle certificazioni più avanzate in ambito residenziale, che garantisce consumi energetici quasi pari a zero, massimo comfort abitativo e costi di gestione estremamente ridotti.
Efficienza energetica e tecnologia
Il residence è stato progettato con soluzioni tecnologiche di ultima generazione orientate alla sostenibilità e allautonomia energetica:
Impianto fotovoltaico da 15 kWp
Batterie di accumulo da 25 kWh per lutilizzo dellenergia anche nelle ore serali
Pannelli solari termici per la produzione di acqua calda sanitaria
Riscaldamento e raffrescamento con pompa di calore, gestito anche da remoto
Cucina a induzione di alta qualità
Cappotto termico su tutto ledificio per un isolamento energetico ottimale
Isolamento acustico avanzato con pannelli fonoassorbenti tra le unità abitative e parquet di ottima qualità ovunque
Infissi in PVC ad alte prestazioni e WI-FI in tutto il residence
Un sistema integrato che consente di vivere in una casa moderna, sostenibile e con consumi energetici estremamente ridotti.
Limmobile si trova al primo piano e gode di unottima luminosità grazie alla sua esposizione angolare.
Lingresso conduce alla zona living con cucina su misura, un ambiente luminoso e accogliente con accesso diretto al balcone angolare a L, vero punto di forza dellabitazione, che offre una doppia vista molto piacevole:
da un lato unampia apertura sul verde, su unarea naturale della zona
dallaltro una suggestiva vista mare anche se parziale
La zona notte comprende:
due camere da letto
un bagno moderno e funzionale
Completa la proprietà un posto auto privato al piano terra
Il residence offre una splendida terrazza panoramica vista mare, pensata come spazio di relax e benessere per i residenti:
Piscina panoramica riscaldata con vista sul Mar Ionio
Solarium attrezzato
Area lounge panoramica coperta da una struttura ombreggiante integrata con impianto fotovoltaico
Un ambiente elegante dove design, comfort e sostenibilità si incontrano.
La proprietà si trova in una posizione strategica, a circa 1 km dal mare, in una delle località più apprezzate della costa ionica salentina.
Grazie alle caratteristiche costruttive di alto livello, alla presenza della piscina e alla crescente domanda turistica della zona, limmobile rappresenta una soluzione ideale sia come residenza privata sia come investimento immobiliare, con ottime prospettive nel mercato delle locazioni turistiche.
Dati principali
| Riferimento | CBI159-2976-63830 |
| Data annuncio | 18/03/2026 |
| Contratto | Vendita |
| Tipologia | Appartamento |
| Superficie | 75 m2 |
| Locali | 3 (2 camere da letto, 1 altro), 1 bagno, cucina a vista |
| Piano | 1 di 2 totali |
| Tipo di costruzione | Signorile |
| Occupato | Libero |
| Box auto | Assente |
| Numero posti auto | 1 |
Caratteristiche
Costi
| Prezzo | 180.000 € |
| Prezzo al m2 | 2.400 €/m2 |
Efficienza energetica
| Stato | Ottimo |
| Riscaldamento | Autonomo |
| Tipo Impianto Di Riscaldamento | ad aria |
| Tipo Alimentazione Riscaldamento | Fotovoltaico |
| Classe energetica | A4 |
Planimetrie
Indirizzo e mappa
Strada Torremozza
19, Nardò
Annuncio senza mappa,
prova a chiedere la posizione all'inserzionista
prova a chiedere la posizione all'inserzionista
Calcolo mutuo
Prezzo di vendita:
Anticipo
20,00
Mutuo
80,00
Tasso: -+
Rata: 515 al mese
I risultati sono una stima indicativa basata sui dati inseriti e non costituiscono un’offerta finanziaria.
Inserzionista
Chiama
CONTATTA


