Rustico frazione Castiglione Asti 229 - 230, Asti
€ 230.000
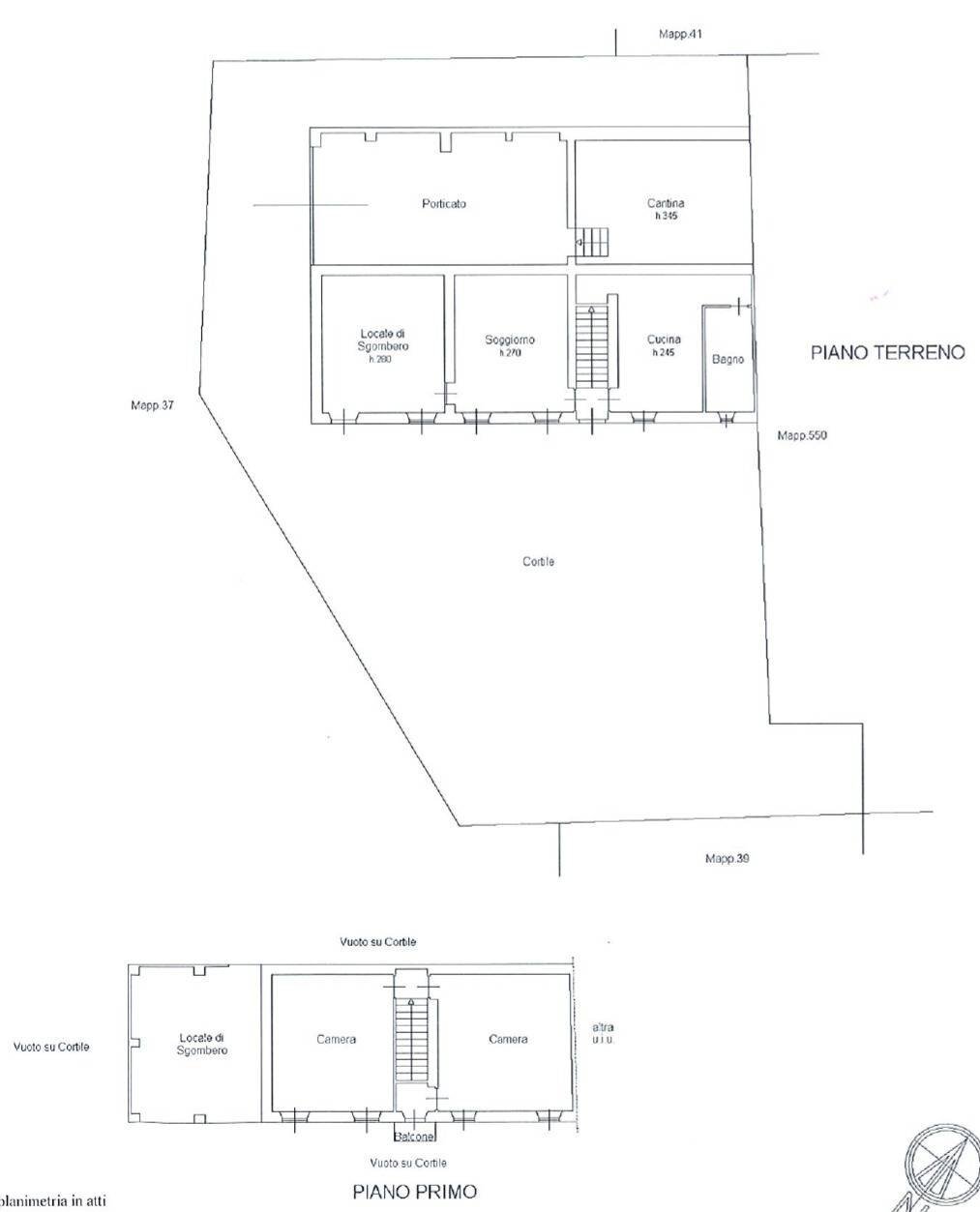
A Castiglione d'Asti , in posizione dominante ed isolata ,cascina su due piani , composta da due unità abitative distinte ,una abitabile ,l'altra da ristrutturare, con terreni accorpati in parte boschivi, in parte ex vigneti ora coltivati a fieno e frutta. Mq. tot. circa 5 ettari Al piano terreno della porzione abitabile, ci sono un soggiorno ,una cucina ,un bagno con finestra , un locale di sgombero , un porticato retrostante ed una cantina al piano terra . Al primo piano si accede da una scala interna e sono presenti due camere da letto ed un locale di sgombero non collegato . Cortile privato tutt'intorno . L'altra porzione di casa adiacente a questa e' anch 'essa su due piani ed è totalmente da ristrutturare . Al piano terra ci sono cucina, soggiorno e due locali di sgombero, porticato retrostante e cantina al piano . Al primo piano ci sono tre camere ed un bagno , piu' un locale di sgombero ( ex fienile ) . Bel cortile in piano tutt'attorno Una strada privata conduce alla proprietà. Riscaldamento a Gpl Fossa Biologica Tetto ripassato Mq. terreni circostanti 47.900 mq. circa
Dati principali
| Riferimento | 14860 |
| Data annuncio | 18/03/2026 |
| Contratto | Vendita |
| Tipologia | Rustico |
| Superficie | 250 m2 |
| Locali | più di 5 (4 camere da letto, 5 altro), 2 bagni |
| Tipo di costruzione | Popolare |
| Occupato | Libero |
Caratteristiche
Costi
| Prezzo | 230.000 € |
| Prezzo al m2 | 920 €/m2 |
Efficienza energetica
| Stato | Da ristrutturare |
| Riscaldamento | Autonomo |
| Tipo Alimentazione Riscaldamento | Gpl |
| Classe energetica | G |
| Indice di prestazione energetica (IPE) | 53 kWh/m2 anno |
Planimetrie
Indirizzo e mappa
frazione Castiglione Asti
229 - 230, Asti
Annuncio senza mappa,
prova a chiedere la posizione all'inserzionista
prova a chiedere la posizione all'inserzionista
Calcolo mutuo
Prezzo di vendita:
Anticipo
20,00
Mutuo
80,00
Tasso: -+
Rata: 658 al mese
I risultati sono una stima indicativa basata sui dati inseriti e non costituiscono un’offerta finanziaria.
Inserzionista

Internau Monferrato - RBVG SRL
Localita' Viatosto, 30, Asti
Mostra Telefono
Mostra Cellulare
Chiama
CONTATTA

