Terratetto - Terracielo Via dei Prati, Calenzano
€ 849.000Semindipendente - Terratetto a Calenzano
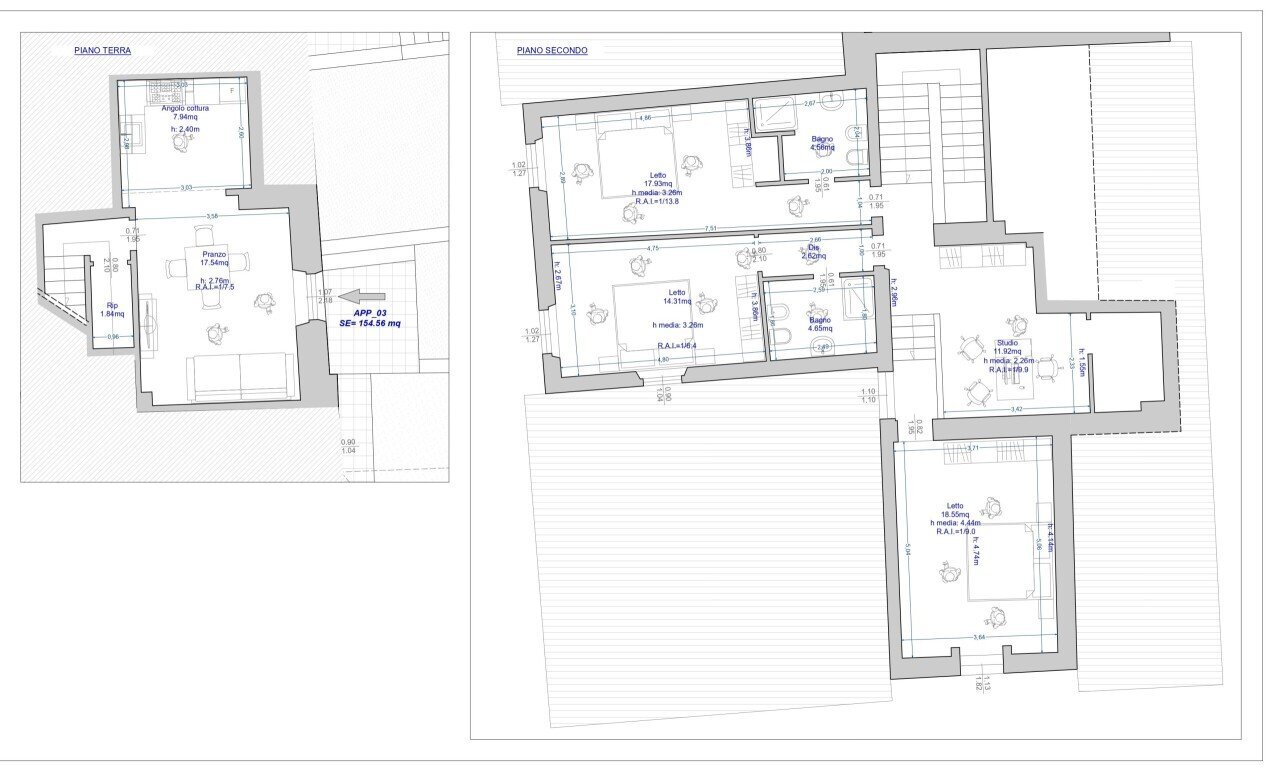
a26085 - FIRENZE/CALENZANO - Località Pratello: In piacevole contesto residenziale, nei pressi di tutti i principali servizi e a pochi minuti dal centro di Calenzano, IMMOBILIARE BELVEDERE, propone in vendita un luminoso e silenzioso appartamento (154mq ca.) situato al piano terra su due livelli; primo livello composto da: ingresso, soggiorno con angolo cottura oltre a pratico ripostiglio. Secondo livello composto da: tre camere da letto matrimoniali con due pratici servizi oltre a un vano studio. L'immobile si presenta in ottime condizioni generali, è stato recentemente ristrutturato, gode di doppia esposizione ed è dotato di doppi infissi, pavimento in gress, piano cottura ad induzione, aria condizionata e ampio giardino oltre a posto auto. Termosingolo. Classe Energetica G
Dati principali
| Riferimento | a26085 |
| Data annuncio | 02/03/2026 |
| Contratto | Vendita |
| Tipologia | Terratetto - Terracielo |
| Superficie | 154 m2 |
| Locali | 5 (3 camere da letto, 2 altro), 2 bagni |
| Piano | 2 totali |
| Numero posti auto | 1 |
Costi
| Prezzo | 849.000 € |
| Prezzo al m2 | 5.513 €/m2 |
Efficienza energetica
| Anno costruzione | 1800 |
| Classe energetica | G |
Planimetrie
Indirizzo e mappa
Via dei Prati, Calenzano
Calcolo mutuo
Prezzo di vendita:
Anticipo
20,00
Mutuo
80,00
Tasso: -+
Rata: 2.428 al mese
I risultati sono una stima indicativa basata sui dati inseriti e non costituiscono un’offerta finanziaria.
Inserzionista
Immobiliare Belvedere
Via Il Prato 61r, Firenze
Mostra Telefono
Chiama
CONTATTA

