Quadrilocale via San Genesio, 8, Perosa Argentina
€ 50.000Appartamento in casa bifamiliare con giardino
In una delle zone più richieste di Perosa Argentina, tranquilla ma comoda al centro e a tutti i servizi, la CHISONE IMMOBILIARE, propone in vendita ALLOGGIO IN BIFAMILIARE CON GIARDINO, doppia autorimessa e locale laboratorio a pochi metri dall’abitazione.
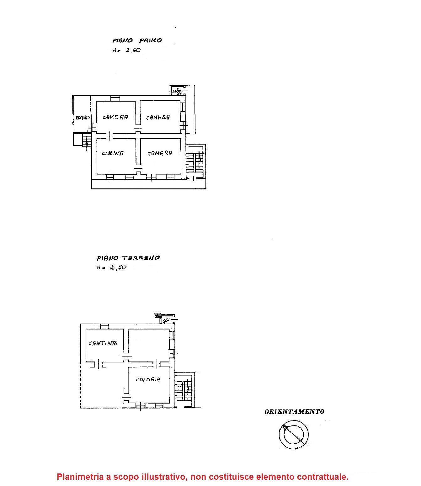
L’appartamento si suddivide su due piani: al piano terra troviamo il locale caldaia comune, una cantina, un piccolo bagno di servizio ed un altro locale da adibire a piacimento.
Tramite scala esterna, ma coperta, accediamo alla lunga balconata che serve il primo piano, dove troviamo l’ingresso nella cucina abitabile, un grazioso soggiorno, due camere da letto matrimoniali di cui una servita da balcone privato ed il bagno finestrato con sfogo esterno.
A pochi passi dalla casa, percorrendo un piccolo vialetto collegato con il giardino, viene venduta un'autotimessa di 84mq al piano terreno e un lungo ripostiglio.
L’appartamento si suddivide su due piani: al piano terra troviamo il locale caldaia comune, una cantina, un piccolo bagno di servizio ed un altro locale da adibire a piacimento.
Tramite scala esterna, ma coperta, accediamo alla lunga balconata che serve il primo piano, dove troviamo l’ingresso nella cucina abitabile, un grazioso soggiorno, due camere da letto matrimoniali di cui una servita da balcone privato ed il bagno finestrato con sfogo esterno.
A pochi passi dalla casa, percorrendo un piccolo vialetto collegato con il giardino, viene venduta un'autotimessa di 84mq al piano terreno e un lungo ripostiglio.
Dati principali
| Riferimento | pa-56 |
| Data annuncio | 21/02/2026 |
| Contratto | Vendita |
| Tipologia | Appartamento |
| Superficie | 96 m2 |
| Locali | 4 (2 camere da letto, 2 altro), 1 bagno, cucina abitabile |
| Piano | 1 (Ammezzato) di 3 totali |
| Tipo di costruzione | Media |
| Occupato | Libero |
| Numero di balconi | 3 |
| Box auto | Doppio |
| Lati liberi | Quattro |
| Impianto TV | Singolo |
Caratteristiche
Costi
| Prezzo | 50.000 € |
| Prezzo al m2 | 521 €/m2 |
Efficienza energetica
| Anno costruzione | 1975 |
| Stato | Discreto |
| Aria Condizionata | Assente |
| Riscaldamento | Autonomo |
| Tipo Impianto Di Riscaldamento | a radiatori |
| Tipo Alimentazione Riscaldamento | Gasolio |
| Infissi esterni | Vetro / Legno |
| Classe energetica | F |
| Indice di prestazione energetica (EP GL, REN) | 12.84 kWh/m2 anno |
| Indice di prestazione energetica (EP GL, NREN) | 208.38 kWh/m2 anno |
| Prestazione energetica fabbricato invernale | ![]() |
| Prestazione energetica fabbricato estiva | ![]() |
Planimetrie
Indirizzo e mappa
via San Genesio, 8, Perosa Argentina
Calcolo mutuo
Prezzo di vendita:
Anticipo
20,00
Mutuo
80,00
Tasso: -+
Rata: 143 al mese
I risultati sono una stima indicativa basata sui dati inseriti e non costituiscono un’offerta finanziaria.
Inserzionista

Chisone Perosa Argentina
via Roma 14, Perosa Argentina
Mostra Telefono
Chiama
CONTATTA



