Quadrilocale via Francesco Baracca, Bologna (zona Saffi)
€ 385.000OSPEDALE MAGGIORE AD.ZE - ASCENSORE - DOPPIA ESPOSIZIONE
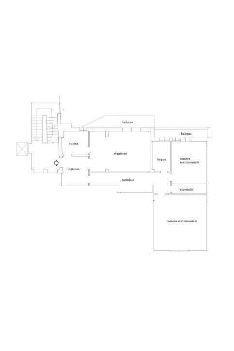
VIA BARACCA - OSPEDALE MAGGIORE Report Immobiliare propone in vendita elegante appartamento di ampia metratura, situato al piano alto di signorile condominio servito da ascensore. La doppia esposizione e gli affacci aperti garantiscono luce naturale, tranquillità ed una piacevole vista panoramica durante tutto l'arco della giornata. L'immobile si contraddistingue per ambienti ariosi e ben distribuiti, ed è così composto: ingresso accogliente, ampio soggiorno, cucina, disimpegno arredabile, 2 camere da letto, di cui una di superficie generosa (circa mq 30) frazionabile in 2 camere, bagno finestrato con zona lavanderia, 2 spaziosi balconi con vista gradevole, grande ripostiglio. A completare la proprietà, una comoda cantina collegata direttamente da ascensore. PLUS DELL'IMMOBILE - possibilità di realizzare secondo bagno e terza camera - aria condizionata - spazi ampi e versatile distribuzione. Soluzione ideale per chi cerca comfort, luminosità e servizi a portata di mano. Per ulteriori informazioni e richieste di appuntamenti, contattare 051.9925684 oppure 328.1398180. Valore della proposta € 385.000,00. Report Immobiliare Via D'Azeglio 78, Bologna [email protected] reportimmobiliare.it Incarico in esclusiva.
Dati principali
| Riferimento | REPORT_F.Baracca |
| Data annuncio | 16/02/2026 |
| Contratto | Vendita |
| Tipologia | Appartamento |
| Superficie | 135 m2 |
| Locali | 4 (2 camere da letto, 2 altro), 1 bagno, cucina abitabile |
| Piano | 6 di 7 totali |
| Tipo di costruzione | Signorile |
| Numero di terrazzi | 1 |
| Numero di balconi | 1 |
| Box auto | Assente |
Caratteristiche
Costi
| Prezzo | 385.000 € |
| Prezzo al m2 | 2.852 €/m2 |
| Spese condominiali | € 1,00/mese |
Efficienza energetica
| Anno costruzione | 1965 |
| Stato | Buono |
| Riscaldamento | Centralizzato |
| Classe energetica | G |
| Indice di prestazione energetica (IPE) | 175 kWh/m2 anno |
Planimetrie
Indirizzo e mappa
via Francesco Baracca, Bologna - quartiere Saffi
Calcolo mutuo
Prezzo di vendita:
Anticipo
20,00
Mutuo
80,00
Tasso: -+
Rata: 1.101 al mese
I risultati sono una stima indicativa basata sui dati inseriti e non costituiscono un’offerta finanziaria.
Inserzionista

Report Immobiliare
Via D'Azeglio 78, Bologna
Mostra Telefono
Chiama
CONTATTA

