Capannone Via Pietro Ferrero, Grugliasco
€ 490.000
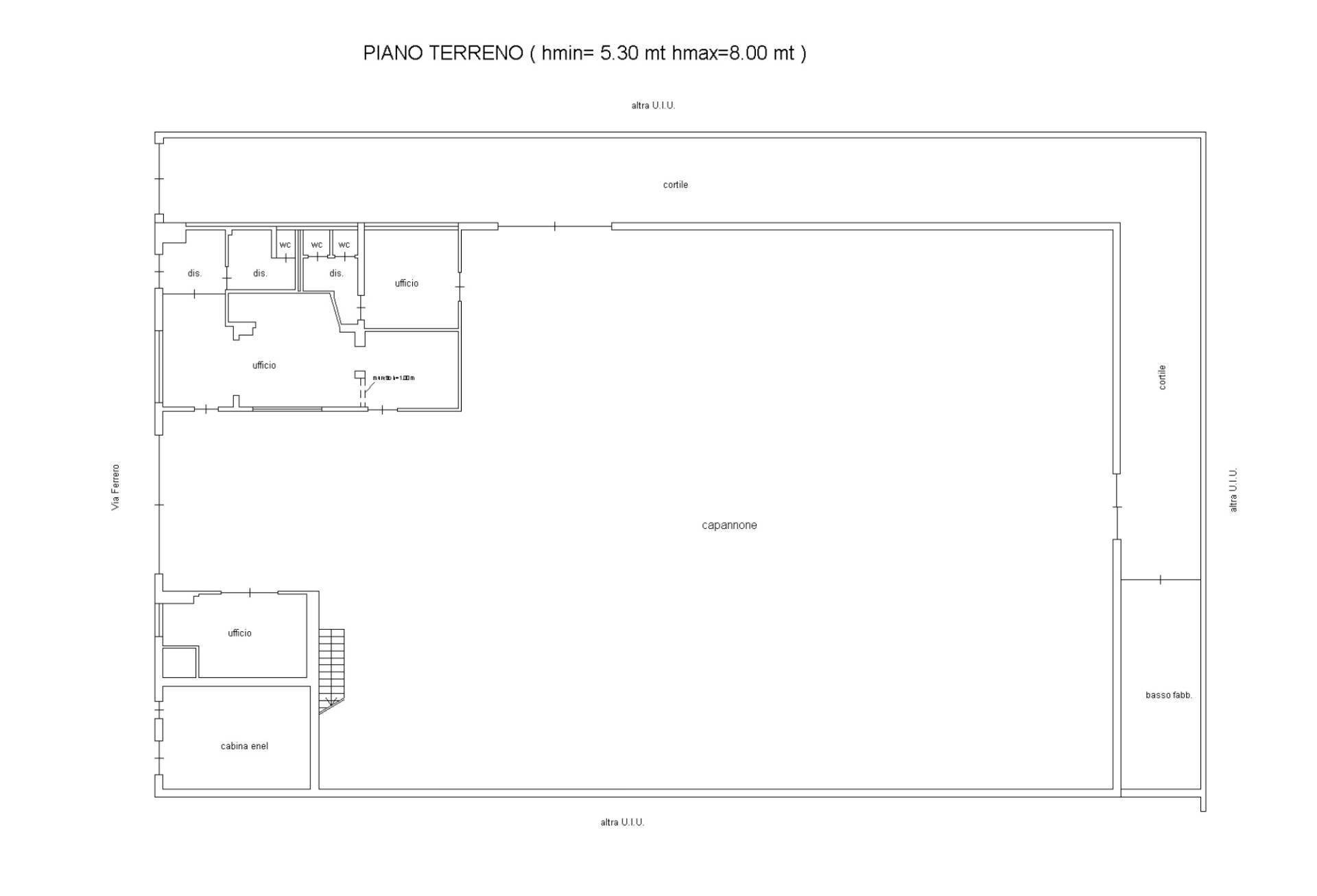
Si propone in vendita a Grugliasco un ampio capannone libero al rogito, con una superficie totale di 844 metri quadrati e una superficie calpestabile di 698 metri quadrati e 146 metri quadrati di area scoperta.
Lo stato di conservazione è buono, con un'altezza sotto trave massima di 8 metri.
L'immobile si sviluppa su un unico piano, con un unico ingresso su strada.
Inoltre, il capannone dispone di 97 metri quadrati di uffici, oltre a due spogliatoi e tre bagni. Presenti anche due soppalchi sopra la zona uffici, uno collegato con scala interna, l'altro accessibile solo con scala amovibile. Completa la proprietà un box auto di 11mq.
Pavimentazione prevalente in battuto, copertura a shed. Recinzione esterna in ferro alta 210cm.
La sua ampia metratura e la sua posizione strategica lo rendono ideale per attività commerciali o industriali che necessitano di un'ampia area coperta e di uffici funzionali.
La sua ubicazione in una zona ben servita e di facile accesso lo rende inoltre un investimento interessante per chi desidera avviare o ampliare la propria attività.
Lo stato di conservazione è buono, con un'altezza sotto trave massima di 8 metri.
L'immobile si sviluppa su un unico piano, con un unico ingresso su strada.
Inoltre, il capannone dispone di 97 metri quadrati di uffici, oltre a due spogliatoi e tre bagni. Presenti anche due soppalchi sopra la zona uffici, uno collegato con scala interna, l'altro accessibile solo con scala amovibile. Completa la proprietà un box auto di 11mq.
Pavimentazione prevalente in battuto, copertura a shed. Recinzione esterna in ferro alta 210cm.
La sua ampia metratura e la sua posizione strategica lo rendono ideale per attività commerciali o industriali che necessitano di un'ampia area coperta e di uffici funzionali.
La sua ubicazione in una zona ben servita e di facile accesso lo rende inoltre un investimento interessante per chi desidera avviare o ampliare la propria attività.
Dati principali
| Riferimento | 13905 |
| Data annuncio | 19/02/2026 |
| Contratto | Vendita |
| Tipologia | Capannone |
| Superficie | 844 m2 |
Costi
| Prezzo | 490.000 € |
| Prezzo al m2 | 581 €/m2 |
Efficienza energetica
| Classe energetica | E |
| Indice di prestazione energetica (IPE) | 115 kWh/m2 anno |
Planimetrie
Indirizzo e mappa
Via Pietro Ferrero, Grugliasco
Annuncio senza mappa,
prova a chiedere la posizione all'inserzionista
prova a chiedere la posizione all'inserzionista
Calcolo mutuo
Prezzo di vendita:
Anticipo
20,00
Mutuo
80,00
Tasso: -+
Rata: 1.401 al mese
I risultati sono una stima indicativa basata sui dati inseriti e non costituiscono un’offerta finanziaria.
Inserzionista
Chiama
CONTATTA


