Trilocale Via Sacro Cuore 1611, Modica
€ 235.000APPARTAMENTO - NUOVA COSTRUZIONE a SORDA QUARTIERE, Modica
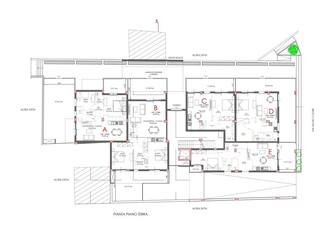
In zona centrale e servita di Modica Sorda, proponiamo in vendita appartamenti di nuova costruzione in uno stabile residenziale che unisce design contemporaneo, tecnologie di ultima generazione ed elevata efficienza energetica. L’appartamento proposto è situato al piano terra e gode di ingresso indipendente; è composto da un comodo e luminoso living con soggiorno/cucina, due camere da letto, bagno e doppio servizio/lavanderia. Completano la proprietà due comode verande rispettivamente di 32 mq e 12 mq circa. L’edificio, realizzato in classe energetica A++++, ospita appartamenti di diverse metrature tutti dotati di ampie verande o balconi, ideali per vivere gli spazi esterni in totale privacy. Inoltre, grazie alle nuove tecnologie garantisce massimo comfort e consumi ridotti grazie a: - Riscaldamento a pavimento radiante con pompe di calore aria-acqua; - Produzione di acqua calda sanitaria con pompe di calore e boiler in acciaio inox da 200 litri; - Impianto fotovoltaico indipendente da 3 kW per ogni appartamento; - Isolamento termo-acustico di ultima generazione con sistema a secco (cartongesso e lana minerale); - Infissi in PVC ad alte prestazioni con chiusure oscuranti in PVC dotati di motorizzazione elettrico; - Predisposizione domotica; - Predisposizione climatizzazione estiva. Disponibili appartamenti di diverse metrature, tutti dotati di ampie verande o balconi e box auto riservato di circa 15 mq, con possibilità di avere metrature più grandi pagando la differenza. Una soluzione moderna, sostenibile e destinata a mantenere nel tempo il proprio valore, in una zona centrale e perfettamente servita. Consegna prevista fine 2027. L’immobile può beneficiare di detrazione fiscale fino a € 48.000 in 10 anni, secondo le condizioni e i requisiti previsti dalla normativa vigente.
Dati principali
| Riferimento | 11693-T-B |
| Data annuncio | 13/02/2026 |
| Contratto | Vendita |
| Tipologia | Appartamento |
| Superficie | 93 m2 |
| Locali | 3 (2 camere da letto, 1 altro), 2 bagni |
| Piano | 1 totali |
Costi
| Prezzo | 235.000 € |
| Prezzo al m2 | 2.527 €/m2 |
Efficienza energetica
| Anno costruzione | 2027 |
| Classe energetica | A+ |
| Indice di prestazione energetica (IPE) | - |
Planimetrie
Indirizzo e mappa
Via Sacro Cuore 1611, Modica
Calcolo mutuo
Prezzo di vendita:
Anticipo
20,00
Mutuo
80,00
Tasso: -+
Rata: 672 al mese
I risultati sono una stima indicativa basata sui dati inseriti e non costituiscono un’offerta finanziaria.
Inserzionista

GFA REAL ESTATE S.R.L.S.
PIAZZA LIBERTA', 9, Modica
Mostra Telefono
Mostra Cellulare
Chiama
CONTATTA

