Casa indipendente Via degli stradelli Guelfi, Bologna
€ 645.000Casa indipendente in vendita
Casa indipendente immersa nel verde – Privacy assoluta a pochi minuti dalla città
In posizione strategica, immersa nella quiete della campagna e circondata dal verde, proponiamo importante proprietà indipendente ideale per chi desidera vivere lontano da smog, rumori e vicini, senza rinunciare alla comodità dei servizi: il primo centro urbano dista infatti solo 2,5 km.
La proprietà si distingue per ampiezza, privacy e straordinaria versatilità, risultando perfetta sia come residenza privata, sia come investimento o progetto di frazionamento in più unità abitative indipendenti.
Composizione dell’immobile
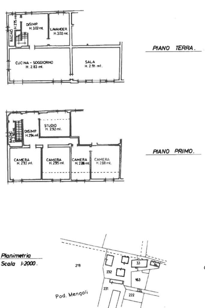
L’unità principale, quella più grande, si sviluppa su 231 mq e offre ambienti generosi e luminosi: Sala di rappresentanza di grandi dimensioni cucina abitabile con soggiorno / doppia zona living,5 camere da letto
Lavanderia di circa 15 mq, facilmente trasformabile in ulteriore stanza o studio
Adiacente troviamo un secondo appartamento indipendente di circa 68 mq, composto da:Cucina con soggiorno e 2 camere da letto
Completano la proprietà due piccoli fabbricati adiacenti all'unità immobiliare: Rimessa di circa 100 mq
Magazzino su due livelli, per un totale di 145 mq per piano.
Giardino circostante di proprietà di circa 2.400 mq, completamente sfruttabile, ideale per relax, piscina, orto o spazi verdi dedicati a ciascuna unità
Potenzialità e progetto:
Grazie alla metratura complessiva e alla disposizione degli edifici, l’immobile si presta perfettamente a un progetto di frazionamento, con la possibilità di realizzare più unità abitative autonome, ciascuna con ingressi indipendenti, giardino e pertinenze, rendendolo ideale per:
Più nuclei familiari
Soluzioni genitori/figli
Attività ricettive o residenze di pregio
Investitori
Perché sceglierla:
Contesto silenzioso e riservato
Nessun smog, immersa nella natura
Ottimo collegamento con la città
Ampie metrature interne ed esterne
Massima flessibilità d’uso
Una soluzione unica nel suo genere, dove spazio, natura e potenziale si incontrano.
PER INFORMAZIONI O PER FISSARE UNA VISITA CHIAMARE IL NUMERO: 051/4071883
In posizione strategica, immersa nella quiete della campagna e circondata dal verde, proponiamo importante proprietà indipendente ideale per chi desidera vivere lontano da smog, rumori e vicini, senza rinunciare alla comodità dei servizi: il primo centro urbano dista infatti solo 2,5 km.
La proprietà si distingue per ampiezza, privacy e straordinaria versatilità, risultando perfetta sia come residenza privata, sia come investimento o progetto di frazionamento in più unità abitative indipendenti.
Composizione dell’immobile
L’unità principale, quella più grande, si sviluppa su 231 mq e offre ambienti generosi e luminosi: Sala di rappresentanza di grandi dimensioni cucina abitabile con soggiorno / doppia zona living,5 camere da letto
Lavanderia di circa 15 mq, facilmente trasformabile in ulteriore stanza o studio
Adiacente troviamo un secondo appartamento indipendente di circa 68 mq, composto da:Cucina con soggiorno e 2 camere da letto
Completano la proprietà due piccoli fabbricati adiacenti all'unità immobiliare: Rimessa di circa 100 mq
Magazzino su due livelli, per un totale di 145 mq per piano.
Giardino circostante di proprietà di circa 2.400 mq, completamente sfruttabile, ideale per relax, piscina, orto o spazi verdi dedicati a ciascuna unità
Potenzialità e progetto:
Grazie alla metratura complessiva e alla disposizione degli edifici, l’immobile si presta perfettamente a un progetto di frazionamento, con la possibilità di realizzare più unità abitative autonome, ciascuna con ingressi indipendenti, giardino e pertinenze, rendendolo ideale per:
Più nuclei familiari
Soluzioni genitori/figli
Attività ricettive o residenze di pregio
Investitori
Perché sceglierla:
Contesto silenzioso e riservato
Nessun smog, immersa nella natura
Ottimo collegamento con la città
Ampie metrature interne ed esterne
Massima flessibilità d’uso
Una soluzione unica nel suo genere, dove spazio, natura e potenziale si incontrano.
PER INFORMAZIONI O PER FISSARE UNA VISITA CHIAMARE IL NUMERO: 051/4071883
Dati principali
| Riferimento | 61146281 |
| Data annuncio | 30/01/2026 |
| Contratto | Vendita |
| Tipologia | Casa indipendente |
| Superficie | 300 m2 |
| Locali | più di 5 (12 altro), 3 bagni |
| Piano | 1 totali |
Costi
| Prezzo | 645.000 € |
| Prezzo al m2 | 2.150 €/m2 |
Efficienza energetica
| Anno costruzione | 1940 |
| Riscaldamento | Autonomo |
| Tipo Alimentazione Riscaldamento | Metano |
| Classe energetica | G |
| Indice di prestazione energetica (EP GL, REN) | 301.03 kWh/m3 anno |
| Indice di prestazione energetica (EP GL, NREN) | 301.03 kWh/m3 anno |
Planimetrie
Indirizzo e mappa
Via degli stradelli Guelfi, Bologna
Calcolo mutuo
Prezzo di vendita:
Anticipo
20,00
Mutuo
80,00
Tasso: -+
Rata: 1.845 al mese
I risultati sono una stima indicativa basata sui dati inseriti e non costituiscono un’offerta finanziaria.
Inserzionista
Chiama
CONTATTA

