Villa REGIONE MILLEFIORI, Villafranca d'Asti
€ 349.000VILLAFRANCA D'ASTI a 3 km dal centro paese , VILLA INDIPENDENTE
DIRETTRICE VILLAFRANCA D'ASTI a 3 km dal centro paese , VILLA INDIPENDENTE posizionata in vetta alla collina con vista a 360 gradi
Ottima posizione panoramica . Proprietà interamente recintata con cancello di ingresso carraio con apertura automatica .
Situata in sommità al promontorio dal terrazzo possiamo ammirare il paese di Villafranca d'Asti sulla destra e di fronte la catena delle Alpi innevate.
Nel giardino-parco troviamo , strada asfaltata di accesso , un piccolo laghetto , un ex campo da bocce , un basso fabbricato ad uso sgombero.
Completano la proprietà il giardino e il parco varie specie di cespugli e alberi a degradare verso il cancello di ingresso in fregio ad una piccola
chiesetta ancora in funzione .
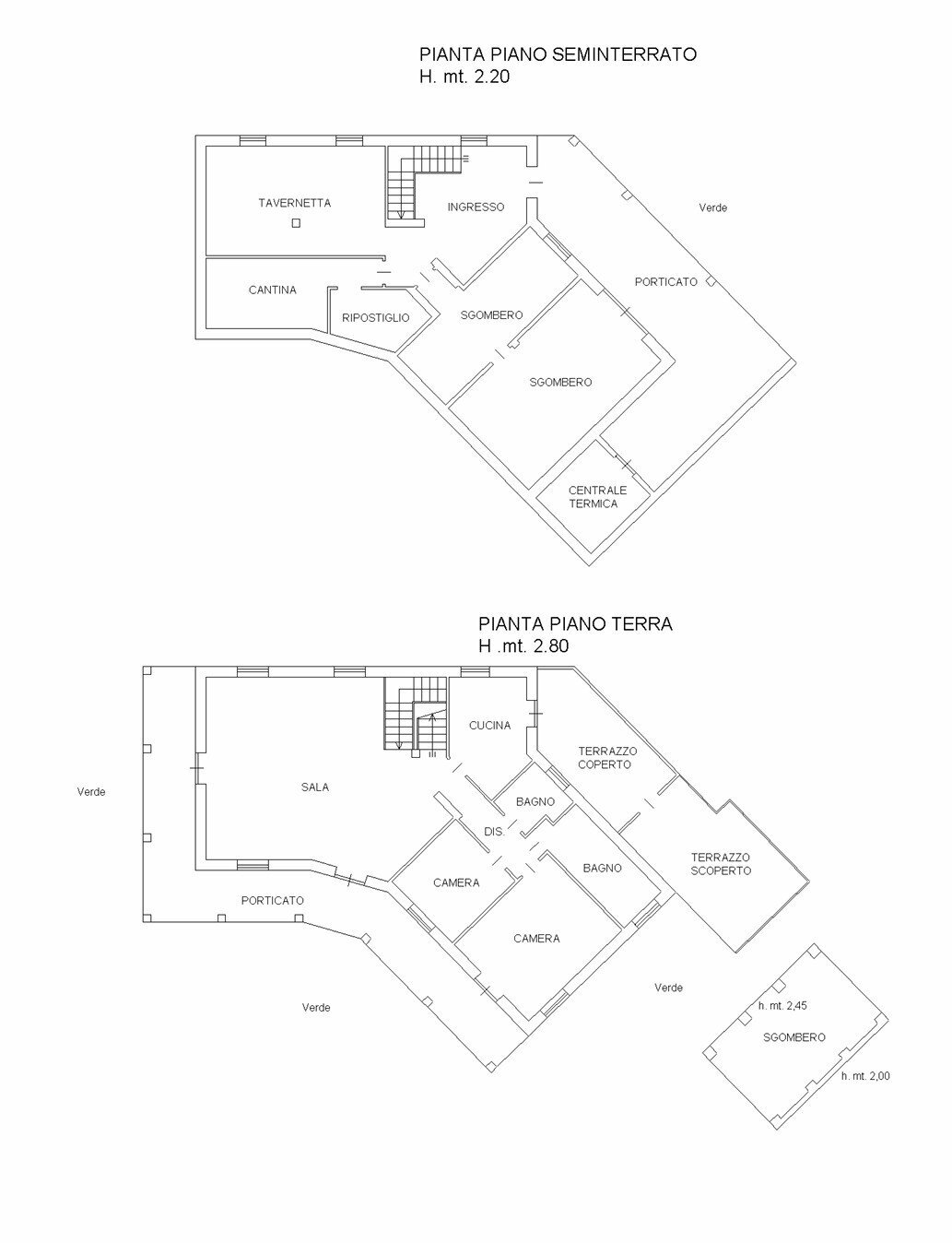
Al piano terreno l'immobile presenta : soggiorno - salotto doppio con caminetto a legna , cucina abitabile comunicante con il terrazzo coperto , 2 bagni ,
2 camere matrimoniali, porticato su due lati , un terrazzo scoperto e un terrazzo coperto adiacente alla cucina .
Al piano primo - mansardato al quale si accede tramite catteristica scala in legno a due rampe troviamo un'ampia camera, bagno , ripostiglio e un ampio sgombero .
Al piano seminterrato . ingresso con atrio , tavernetta con caminetto a legna, cantina , ripostiglio, sgombero , sgombero - garage , centrale termica e
porticato su due lati .
Superficie catastale immobile 372 mq
Terreno su cui insiste l'immobile mq 4641
VALIDI MOTIVI PER ACQUISTARE L'IMMOBILE
- Posizione insuperabile vista a 360 °
- Immersa nalla natura
- Tranquillità e privacy
- Comoda ai servizi : VILLAFRANCA a 3 km
- PREZZO TRATTABILE
Ottima posizione panoramica . Proprietà interamente recintata con cancello di ingresso carraio con apertura automatica .
Situata in sommità al promontorio dal terrazzo possiamo ammirare il paese di Villafranca d'Asti sulla destra e di fronte la catena delle Alpi innevate.
Nel giardino-parco troviamo , strada asfaltata di accesso , un piccolo laghetto , un ex campo da bocce , un basso fabbricato ad uso sgombero.
Completano la proprietà il giardino e il parco varie specie di cespugli e alberi a degradare verso il cancello di ingresso in fregio ad una piccola
chiesetta ancora in funzione .
Al piano terreno l'immobile presenta : soggiorno - salotto doppio con caminetto a legna , cucina abitabile comunicante con il terrazzo coperto , 2 bagni ,
2 camere matrimoniali, porticato su due lati , un terrazzo scoperto e un terrazzo coperto adiacente alla cucina .
Al piano primo - mansardato al quale si accede tramite catteristica scala in legno a due rampe troviamo un'ampia camera, bagno , ripostiglio e un ampio sgombero .
Al piano seminterrato . ingresso con atrio , tavernetta con caminetto a legna, cantina , ripostiglio, sgombero , sgombero - garage , centrale termica e
porticato su due lati .
Superficie catastale immobile 372 mq
Terreno su cui insiste l'immobile mq 4641
VALIDI MOTIVI PER ACQUISTARE L'IMMOBILE
- Posizione insuperabile vista a 360 °
- Immersa nalla natura
- Tranquillità e privacy
- Comoda ai servizi : VILLAFRANCA a 3 km
- PREZZO TRATTABILE
Dati principali
| Riferimento | ID2926997 |
| Data annuncio | 05/12/2025 |
| Contratto | Vendita |
| Tipologia | Villa |
| Superficie | 372 m2 |
| Locali | più di 5 (4 camere da letto, 2 altro), 3 bagni, cucina abitabile |
| Piano | 1 (Terra) di 2 totali |
| Tipo di costruzione | Signorile |
| Occupato | Libero |
| Numero di terrazzi | 1 |
| Numero di balconi | 1 |
| Numero box | 1 |
| Box auto | Doppio |
| Numero posti auto | 2 |
| Arredamento | Assente |
| Lati liberi | Quattro |
| Impianto TV | Singolo |
Caratteristiche
Costi
| Prezzo | 349.000 € |
| Prezzo al m2 | 938 €/m2 |
Efficienza energetica
| Stato | Buono |
| Aria Condizionata | Predisposizione impianto |
| Riscaldamento | Autonomo |
| Tipo Impianto Di Riscaldamento | a radiatori |
| Tipo Alimentazione Riscaldamento | Metano |
| Infissi esterni | Doppio vetro / Legno |
| Classe energetica | In fase di calcolo |
Planimetrie
Video
Indirizzo e mappa
REGIONE MILLEFIORI, Villafranca d'Asti
Calcolo mutuo
Prezzo di vendita:
Anticipo
20,00
Mutuo
80,00
Tasso: -+
Rata: 998 al mese
I risultati sono una stima indicativa basata sui dati inseriti e non costituiscono un’offerta finanziaria.
Inserzionista

Garello Immobiliare
Via Gerbi 23/B, Asti
Mostra Cellulare
Chiama
CONTATTA

