Villa Trifamiliare Via Filonarda, Anagni
Trattativa riservataEdificio - Palazzina a Anagni
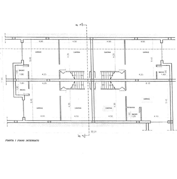
PRODOTTO IMMOBILIARE DESTINATO ad INVESTITORI e/o IMPRENDITORI EDILI POSIZIONE Anagni, a 2 km da località Osteria della Fontana e dai suoi servizi. A 3 km dal centro del paese, raggiungibile sia da Via Casilina, che da Via Rotabile San Francesco (a soli 500 mt c.a.). In zona residenziale tranquilla, costituita principalmente da soluzioni indipendenti e ville. DESCRIZIONE Compendio residenziale costituito da 4 soluzioni in villa, tutte e quattro oggetto di vendita (dismissione collettiva). Allo stato attuale le unità abitative risultano in corso di costruzione; nella realtà dei fatti necessitano di tutte le ultimazioni interne. Il complesso è costituito da unità identiche sotto l'aspetto delle metrature interne; differiscono solo per le aree esterne. Tutte godono di corte/giardino esclusivo, con ingresso autonomo. Ciascuna unità si sviluppa su due livelli abitativi (piano primo e piano secondo), oltre soffitta a servizio e piano seminterrato con locali accessori, quali garage e cantina. Le soluzioni progettualmente sono composte come segue: - Piano seminterrato di c.a. 65 mq costituito da garage, bagno di servizio e deposito, con scala interna, che lo collega al piano terra; - P.T. di c.a. 65 mq con ingresso principale, ampio soggiorno, cucina e bagno; - P.1 di ulteriori 65 mq c.a. con camera matrimoniale, due camerette, disimpegni e bagno, oltre due balconi a livello; - Piano soffitta di c.a. 40 mq; - Balconi di c.a. 24 mq c.a. a servizio della zona notte. Di fatto, il prezzo di vendita incide di € 90.000,00 per ciascuna unità abitativa. STATO E FINITURE Caratteristiche di base: cemento armato antisismico, muratura perimetrale con blocchi poroton 30 cm, isolamento termico a cappotto in polistirene estruso, tramezzature interne con forati da 8 cm, tetto in cemento armato, con isolamento termico e tegole, tipo portoghesi. Predisposta per l'impianto di riscaldamento a pavimento. Le soluzioni si presentano al grezzo interno, tramezzate, come da progetto, con ambientazioni già definite. Struttura generale ultimata esternamente. Il complesso è servito da metano ed acqua di rete. Da adeguare fogna imhoff, secondo le nuove normative. SPAZI ESTERNI Ciascuna soluzione gode di uno spazio esterno esclusivo di facile gestione. UTILIZZO E POTENZIALITA' Presso il nostro studio potrete trovare indicazioni sulla possibilità oggettiva di vendita - prodotto chiavi in mano - considerata la grande richiesta di soluzioni in villa, in un territorio che da anni non soddisfa più tale necessità. * Le presenti informazioni non costituiscono elemento contrattuale, dovranno essere verificate in ogni caso. Per tutte le soluzioni in vendita, potete visitare il nostro sito www.gruppoempireimmobiliare.it
Dati principali
| Riferimento | 201-447 |
| Data annuncio | 26/11/2025 |
| Contratto | Vendita |
| Tipologia | Villa Trifamiliare |
| Superficie | 940 m2 |
| Locali | più di 5 (12 camere da letto), 12 bagni |
| Piano | 2 totali |
| Numero di balconi | 1 |
Caratteristiche
Costi
| Prezzo | Trattativa riservata |
Efficienza energetica
| Classe energetica | Immobile esente da certificazione energetica |
Planimetrie
Indirizzo e mappa
Via Filonarda, Anagni
Inserzionista

Gruppo Empire Italia srl
Via Giovanni Giminiani 17/O, Anagni
Mostra Telefono
Chiama
CONTATTA

