Quadrilocale via Goito, Bologna (zona Centro Storico)
€ 1.900 al meseCentro Storico, splendido appartamento in contesto di pregio
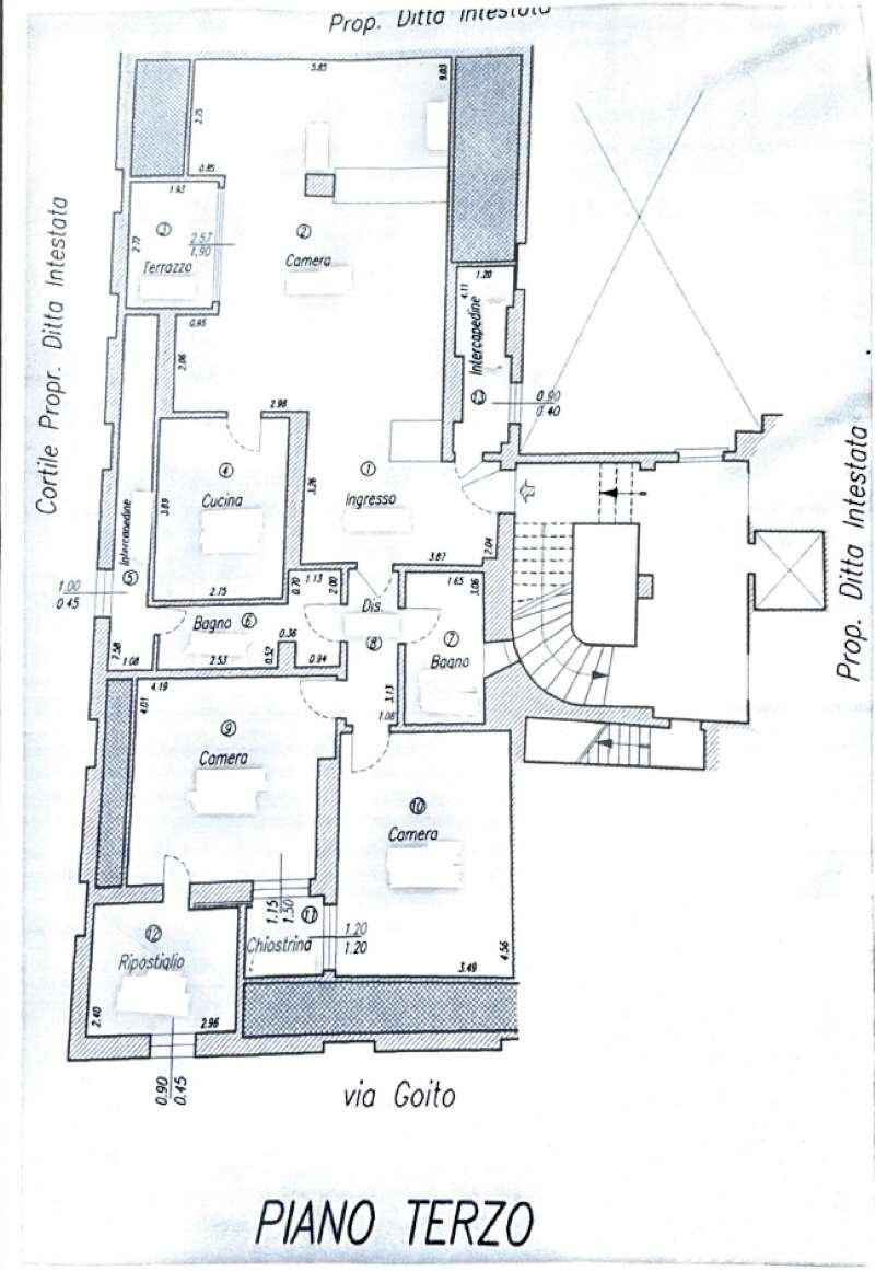
CODICE DI RIFERIMENTO IMMOBILE: 3312 Via Goito / ad.ze Via Indipendenza / Oberdan, Immobiliare Guido Reni propone in locazione DA SUBITO, in splendido contesto di palazzo storico, appartamento al piano attico (soluzione rara in zona), posto al terzo ed ultimo piano servito da ascensore, parzialmente arredato (bagni e cucina). L’immobile è composto da: ingresso, ampio soggiorno con accesso diretto al terrazzo abitabile in falda di circa 6 mq dotato di pergola in legno e con caratteristico affaccio sui tetti, cucina abitabile completa di lavastoviglie che verrà fornita dalla proprietà, disimpegno giorno/notte, due ampie camere da letto matrimoniali entrambe con accesso a un ulteriore piccolo terrazzino, di cui una con cabina armadio finestrata, due bagni finestrati, uno con vasca e l’altro con vasca/doccia. Sono inoltre presenti due comodi ripostigli, uno con accesso da uno dei bagni e uno con accesso dal soggiorno. L’appartamento, mansardato ma con altezze completamente abitabili, presenta pavimenti in marmo Rosso Verona, bagni e cucina rifiniti con ceramiche e antiche travi in legno a vista che impreziosiscono e scaldano tutti gli ambienti. Sono inoltre presenti altri arredi che, ove di interesse, la proprietà è disponibile a lasciare. L’immobile si caratterizza per la razionalità degli spazi, il contesto esclusivo, i gradevoli affacci sui tetti del centro storico e la rarità di una soluzione al piano attico con terrazzi in pieno centro. Il canone mensile richiesto è pari a Euro 1.900,00, oltre Euro 270,00 mensili di spese condominiali, che includono: riscaldamento centralizzato, pulizia e luce scale, ascensore. No studenti. Per informazioni ed appuntamenti, contattare Immobiliare Guido Reni S.R.L. 051 9911977 – 335 8082508 [email protected] Visita il nostro sito: www.immobiliareguidoreni.it
Dati principali
| Riferimento | 3312 |
| Data annuncio | 19/11/2025 |
| Contratto | Affitto |
| Tipologia | Appartamento |
| Superficie | 150 m2 |
| Locali | 4 (2 camere da letto, 2 altro), 2 bagni, cucina abitabile |
| Piano | 3 di 3 totali |
| Tipo di costruzione | Signorile |
| Numero di terrazzi | 2 |
| Box auto | Assente |
| Arredamento | Parziale |
Caratteristiche
Costi
| Prezzo | 1.900 € al mese |
| Spese condominiali | € 270,00/mese |
Efficienza energetica
| Anno costruzione | 1800 |
| Stato | Ottimo |
| Riscaldamento | Centralizzato |
| Tipo Alimentazione Riscaldamento | Metano |
| Classe energetica | G |
| Indice di prestazione energetica (IPE) | - |
Planimetrie
Indirizzo e mappa
via Goito, Bologna - quartiere Centro Storico
Inserzionista

Immobiliare Guido Reni
Via Guido Reni 4, Bologna
Mostra Telefono
Chiama
CONTATTA

