Rustico Frazione Mentoulles, 25, Fenestrelle
€ 15.000Rustico semi-indipendente da ristrutturare
In frazione Mentoulles, in zona comoda, proponiamo in vendita ampio rustico semi-indipendente da ristrutturare.
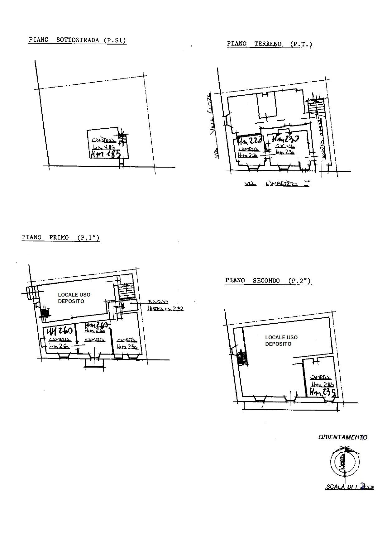
La soluzione si sviluppa su tre livelli oltre al semi-interrato e così si compone: al piano terra da ingresso una cucina, tre stanze e un locale ripostiglio; al primo piano troviamo tre camere, un bagno e un locale ad uso deposito con doppio accesso laterale indipendente; al secondo ed ultimo piano da una camera ed un secondo locale deposito.
L'immobile si presenta da ristrutturare completamente e privo di impianti.
Completano la proprietà una cantina al piano semi-interrato e due balconi.
La soluzione si sviluppa su tre livelli oltre al semi-interrato e così si compone: al piano terra da ingresso una cucina, tre stanze e un locale ripostiglio; al primo piano troviamo tre camere, un bagno e un locale ad uso deposito con doppio accesso laterale indipendente; al secondo ed ultimo piano da una camera ed un secondo locale deposito.
L'immobile si presenta da ristrutturare completamente e privo di impianti.
Completano la proprietà una cantina al piano semi-interrato e due balconi.
Dati principali
| Riferimento | pa-49 |
| Data annuncio | 08/11/2025 |
| Contratto | Vendita |
| Tipologia | Rustico |
| Superficie | 113 m2 |
| Locali | più di 5 (5 camere da letto, 1 altro), 1 bagno |
| Piano | Su più livelli, 4 totali |
| Tipo di costruzione | Epoca |
| Occupato | Libero |
| Numero di balconi | 2 |
| Box auto | Assente |
| Lati liberi | Tre |
Caratteristiche
Costi
| Prezzo | 15.000 € |
| Prezzo al m2 | 133 €/m2 |
Efficienza energetica
| Stato | Da ristrutturare |
| Aria Condizionata | Assente |
| Riscaldamento | Assente |
| Infissi esterni | Vetro / Legno |
| Classe energetica | G |
| Indice di prestazione energetica (EP GL, REN) | 1629.15 kWh/m2 anno |
| Indice di prestazione energetica (EP GL, NREN) | 433.2 kWh/m2 anno |
| Prestazione energetica fabbricato invernale | ![]() |
| Prestazione energetica fabbricato estiva | ![]() |
Planimetrie
Indirizzo e mappa
Frazione Mentoulles, 25, Fenestrelle
Calcolo mutuo
Prezzo di vendita:
Anticipo
20,00
Mutuo
80,00
Tasso: -+
Rata: 43 al mese
I risultati sono una stima indicativa basata sui dati inseriti e non costituiscono un’offerta finanziaria.
Inserzionista

Chisone Perosa Argentina
via Roma 14, Perosa Argentina
Mostra Telefono
Chiama
CONTATTA



