Attico Via Dei Peligni 30, Chieti
€ 59.000
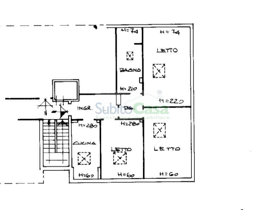
Appartamento mansardato in vendita a Chieti Via Dei Peligni, zona Tricalle In una delle zone più comode e servite di Chieti, proponiamo in vendita un ampio appartamento mansardato situato in Via Dei Peligni, in posizione strategica e ben collegata con il centro città, lo scorrimento veloce e tutti i principali servizi di prima necessità. Limmobile si trova al 5° piano di un condominio servito da ascensore (fino al 4° piano) e sviluppa una superficie complessiva di circa 117 mq. Attualmente si compone di: ampio ingresso, cucina abitabile, soggiorno ampio (eventualmente utilizzabile come terza camera), due camere matrimoniali, bagno finestrato di generose dimensioni, ripostigli e armadi a muro perfettamente integrati negli spazi. Dotato di riscaldamento autonomo, climatizzatori e infissi in legno con doppio vetro, lappartamento si presenta in buone condizioni generali e offre ambienti accoglienti e ben distribuiti. Nellarea condominiale è inoltre disponibile ampio spazio per il parcheggio. Grazie alla sua metratura e alla disposizione interna, limmobile si presta facilmente ad una diversa organizzazione degli ambienti, ad esempio realizzando una luminosa zona living open space con cucina a vista, mantenendo comunque due ampie camere matrimoniali e un bagno. Unopportunità ideale per chi cerca ampie metrature in una zona tranquilla, residenziale e ben servita di Chieti. Per maggiori informazioni o per fissare una visita, contattaci senza impegno.
Dati principali
| Riferimento | E 429 |
| Data annuncio | 05/11/2025 |
| Contratto | Vendita |
| Tipologia | Attico |
| Superficie | 117 m2 |
| Locali | 4 (3 camere da letto, 1 altro), 1 bagno, cucina abitabile |
| Piano | 5 di 5 totali |
| Tipo di costruzione | Media |
| Occupato | Libero |
| Arredamento | Completo |
Caratteristiche
Costi
| Prezzo | 59.000 € |
| Prezzo al m2 | 504 €/m2 |
Efficienza energetica
| Stato | Buono |
| Riscaldamento | Autonomo |
| Classe energetica | F |
| Indice di prestazione energetica (IPE) | - |
Planimetrie
Indirizzo e mappa
Via Dei Peligni
30, Chieti
Annuncio senza mappa,
prova a chiedere la posizione all'inserzionista
prova a chiedere la posizione all'inserzionista
Calcolo mutuo
Prezzo di vendita:
Anticipo
20,00
Mutuo
80,00
Tasso: -+
Rata: 169 al mese
I risultati sono una stima indicativa basata sui dati inseriti e non costituiscono un’offerta finanziaria.
Inserzionista

Subito Casa Immobiliare
Via T. Scaraviglia n° 118, Chieti
Mostra Telefono
Mostra Cellulare
Nonno Andrea
Mostra Telefono
Chiama
CONTATTA

