Villa strada del Corno, 28, Cherasco
€ 680.000CHERASCO
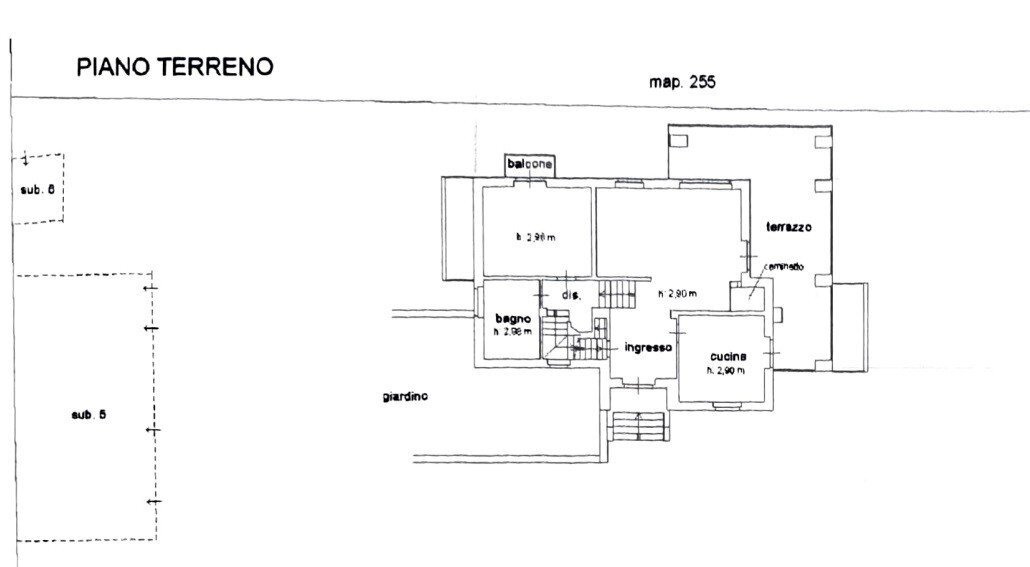
La proprietà in vendita dista circa 2 km dal centro storico del paese di Cherasco, nelle Langhe. Siamo a circa 15 minuti da Alba e 40 da Torino La villa è stata curata in ogni dettaglio. I proprietari hanno dedicato molta attenzione sia all’abitazione che all’esterno. Le piante hanno una disposizione a seconda dell’esposizione solare e alle diverse fioriture. Sono stati creasti diversi livelli pianeggianti a seconda dei vari accessi esterni della casa. Esso è ideato per avere movimenti naturali e per evitare di avere numerose scale di collegamento, come ad esempio, dalla taverna si può accedere al cortile panoramico. La facciata della villa è stata realizzata utilizzando materiali rustici della zona quali mattoni antichi e legno. La struttura della casa è costruita con travi in ferro rivestiti per sostenere la copertura e permettere al terrazzo di avere l’ampio sbalzo e concedere alla zona giorno la luce naturale grazie all’ottima esposizione al sole. Nella parte interna sono stati utilizzati materiali di pregio cercando di dare uno stile shabby chic all’abitazione e un’armonia provenzale. Ad accoglierci troviamo un disimpegno con una scala in legno, un grosso salone con camino a legna, una cucina e un terrazzo con vista mozzafiato. La zona notte è composta da 4 camere letto e due servizi. Al piano interrato è presente una taverna con accesso al cortile, un forno a legna per il pane e la pizza e camino/barbeque. Per finire una cantina, un locale nel quale è possibile realizzare una come palestra o area relax, una vano tecnico e un pozzo. A completare la proprietà 3 garage, tutto il terreno circostante (ca 4.500 mq) e il giardino recintato nel quale si presta perfettamente per una piscina. Per ulteriori informazioni o per visionare senza impegno questa villa in vendita in Cherasco contattateci ai nostri numeri: Tel. +39.0173. 287373 oppure scriveteci tramite WhatsApp al numero 392.2138981 Potete Visionare altre nostre proposte ed occasioni immobiliari sui nostri siti: www.housesinpiedmpont.com www.chicasa.it
Dati principali
| Riferimento | CHE680 |
| Data annuncio | 18/07/2025 |
| Contratto | Vendita |
| Tipologia | Villa |
| Superficie | 310 m2 |
| Locali | più di 5 (4 camere da letto, 7 altro), 3 bagni, cucina abitabile |
| Piano | 4 totali |
| Tipo di costruzione | Signorile |
| Numero di terrazzi | 1 |
| Numero di balconi | 1 |
| Box auto | Doppio |
| Numero posti auto | 4 |
| Arredamento | Assente |
Caratteristiche
Costi
| Prezzo | 680.000 € |
| Prezzo al m2 | 2.194 €/m2 |
Efficienza energetica
| Stato | Ottimo |
| Riscaldamento | Autonomo |
| Classe energetica | D |
| Indice di prestazione energetica (IPE) | 150.07 kWh/m2 anno |
Planimetrie
Indirizzo e mappa
strada del Corno, 28, Cherasco
Annuncio senza mappa,
prova a chiedere la posizione all'inserzionista
prova a chiedere la posizione all'inserzionista
Calcolo mutuo
Prezzo di vendita:
Anticipo
20,00
Mutuo
80,00
Tasso: -+
Rata: 1.945 al mese
I risultati sono una stima indicativa basata sui dati inseriti e non costituiscono un’offerta finanziaria.
Inserzionista

Houses in Piedmont Real Estate
Via Guglielmo Marconi 5, Dogliani
Mostra Telefono
Chiama
CONTATTA

