Rustico Via Collina Forni, Montaldo Scarampi
€ 133.000Rustico in vendita
MONTALDO SCARAMPI - Cascinale indipendente su tre lati ma completamente disimpegnato e senza servitù, in posizione collinare, parzialmente abitabile ma riadattabile per diversi utilizzi: abitazione principale con più camere da letto, bed & breakfast o la combinazione delle due ma anche bifamigliare o casa vacanze con più unità abitative.
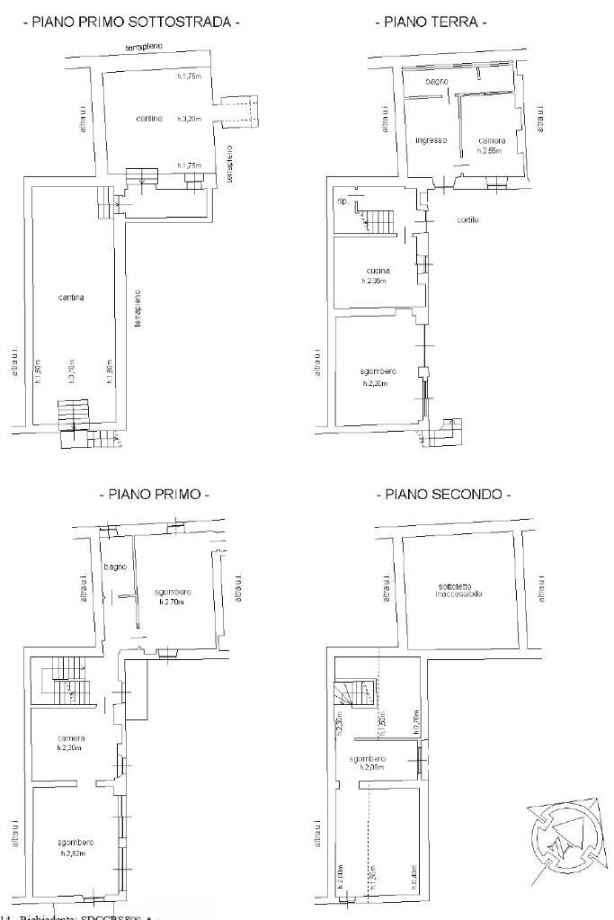
E' un immobile versatile ma che conserva il carattere e le particolarità della tipica cascina locale, mentre il fienile è stato ripreso creando un ambiente abitativo con vetrate sul giardino. Nell'interrato sono presenti due belle cantina di cui una scavata nel tufo, molto caratteristica.
L'abitativo si sviluppa su due livelli, con due cucine, tre bagni, terrazzo e numerose camere di varie metrature. Al piano terra troviamo un bilocale con accesso indipendente e tre ampi locali di sgombero ad uso garage/magazzino.
Nella parte esterna il giardino, privato e cintato è completato da un soleggiato terreno terrazzabile di oltre più di 4.000 mq. a corpo.
Per maggiori informazioni contattaci al 0141 961723 (anche WhatsApp) oppure passa nel nostro ufficio in Via Roma 63, Costigliole d'Asti.
La nostra agenzia ha solide radici sul territorio, grazie alla consolidata esperienza ed a contatti maturati nel tempo possiamo accompagnarvi in tutti i passaggi della compravendita e della locazione con l'affidabilità e la trasparenza che ci contraddistinguono dal 1998, in collaborazione con tutte le agenzie del gruppo; sono oltre 4000 le agenzie Tecnocasa nel mondo, professionisti nell'intermediazione immobiliare e creditizia.
E' un immobile versatile ma che conserva il carattere e le particolarità della tipica cascina locale, mentre il fienile è stato ripreso creando un ambiente abitativo con vetrate sul giardino. Nell'interrato sono presenti due belle cantina di cui una scavata nel tufo, molto caratteristica.
L'abitativo si sviluppa su due livelli, con due cucine, tre bagni, terrazzo e numerose camere di varie metrature. Al piano terra troviamo un bilocale con accesso indipendente e tre ampi locali di sgombero ad uso garage/magazzino.
Nella parte esterna il giardino, privato e cintato è completato da un soleggiato terreno terrazzabile di oltre più di 4.000 mq. a corpo.
Per maggiori informazioni contattaci al 0141 961723 (anche WhatsApp) oppure passa nel nostro ufficio in Via Roma 63, Costigliole d'Asti.
La nostra agenzia ha solide radici sul territorio, grazie alla consolidata esperienza ed a contatti maturati nel tempo possiamo accompagnarvi in tutti i passaggi della compravendita e della locazione con l'affidabilità e la trasparenza che ci contraddistinguono dal 1998, in collaborazione con tutte le agenzie del gruppo; sono oltre 4000 le agenzie Tecnocasa nel mondo, professionisti nell'intermediazione immobiliare e creditizia.
Dati principali
| Riferimento | 61128294 |
| Data annuncio | 18/10/2025 |
| Contratto | Vendita |
| Tipologia | Rustico |
| Superficie | 350 m2 |
| Locali | più di 5 (3 camere da letto, 8 altro), 3 bagni |
| Piano | 3 totali |
Costi
| Prezzo | 133.000 € |
| Prezzo al m2 | 380 €/m2 |
Efficienza energetica
| Anno costruzione | 1900 |
| Riscaldamento | Autonomo |
| Tipo Alimentazione Riscaldamento | Metano |
| Classe energetica | F |
| Indice di prestazione energetica (IPE) | - |
Planimetrie
Video
Indirizzo e mappa
Via Collina Forni, Montaldo Scarampi
Calcolo mutuo
Prezzo di vendita:
Anticipo
20,00
Mutuo
80,00
Tasso: -+
Rata: 380 al mese
I risultati sono una stima indicativa basata sui dati inseriti e non costituiscono un’offerta finanziaria.
Inserzionista
Chiama
CONTATTA


