Villa VIA FIORDALISO, Orbetello
€ 990.000Indipendente - Villa a Ansedonia, Orbetello
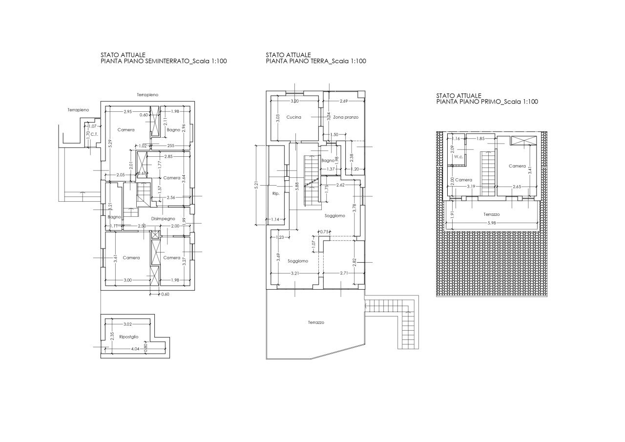
In vendita villa unifamiliare degli anni '70, costruita con cemento armato e pietra locale, situata nell'esclusiva collina di Ansedonia. Questa affascinante proprietà è immersa nel verde di un parco privato di circa 1000 mq, offre un'affascinante vista sulla Laguna di Levante, la spiaggia della Feniglia e la campagna toscana circostante. Godendo anche della vista su Orbetello e il promontorio di Porto Santo Stefano, la villa è un'opportunità unica per chi cerca tranquillità e bellezza paesaggistica. Questa affascinante villa si distingue per il suo stile classico e la sua distribuzione intelligente degli spazi. Il piano terra accoglie la zona notte, composta da 4 camere da letto e 2 bagni, garantendo comfort e privacy. Il primo piano ospita un ampio soggiorno con accesso a una generosa terrazza, una cucina completa di sala da pranzo e un ulteriore bagno, il tutto arricchito da una vista panoramica mozzafiato sulle colline circostanti. Il piano mansardato, oltre a uno studio funzionale, offre una camera da letto con bagno privato e una terrazza panoramica che si affaccia su Orbetello e l'Argentario, creando uno spazio esclusivo per momenti di relax. Situata in un contesto appartato, la villa offre un rifugio perfetto per coloro che desiderano vivere lontano dal caos della città. Allo stesso tempo, la posizione permette un facile accesso ai servizi, alle comodità e alle splendide spiagge della zona. Per maggiori dettagli o per organizzare una visita, non esitate a contattarci. Questa è un'opportunità unica per possedere una villa nel prestigioso contesto di Ansedonia.
Dati principali
| Riferimento | CG014 |
| Data annuncio | 05/02/2024 |
| Contratto | Vendita |
| Tipologia | Villa |
| Superficie | 200 m2 |
| Locali | più di 5 (5 camere da letto, 6 altro), 4 bagni |
| Piano | 3 totali |
| Numero posti auto | 1 |
Costi
| Prezzo | 990.000 € |
| Prezzo al m2 | 4.950 €/m2 |
Efficienza energetica
| Anno costruzione | 1970 |
| Classe energetica | G |
Planimetrie
Indirizzo e mappa
VIA FIORDALISO, Orbetello
Calcolo mutuo
Prezzo di vendita:
Anticipo
20,00
Mutuo
80,00
Tasso: -+
Rata: 2.831 al mese
I risultati sono una stima indicativa basata sui dati inseriti e non costituiscono un’offerta finanziaria.
Inserzionista
Chiama
CONTATTA

