Trilocale via Riccardo Stracciari, Bologna (zona Santo Stefano)
€ 280.000BENEDETTO MARCELLO LATERALE TRILOCALE NUOVO
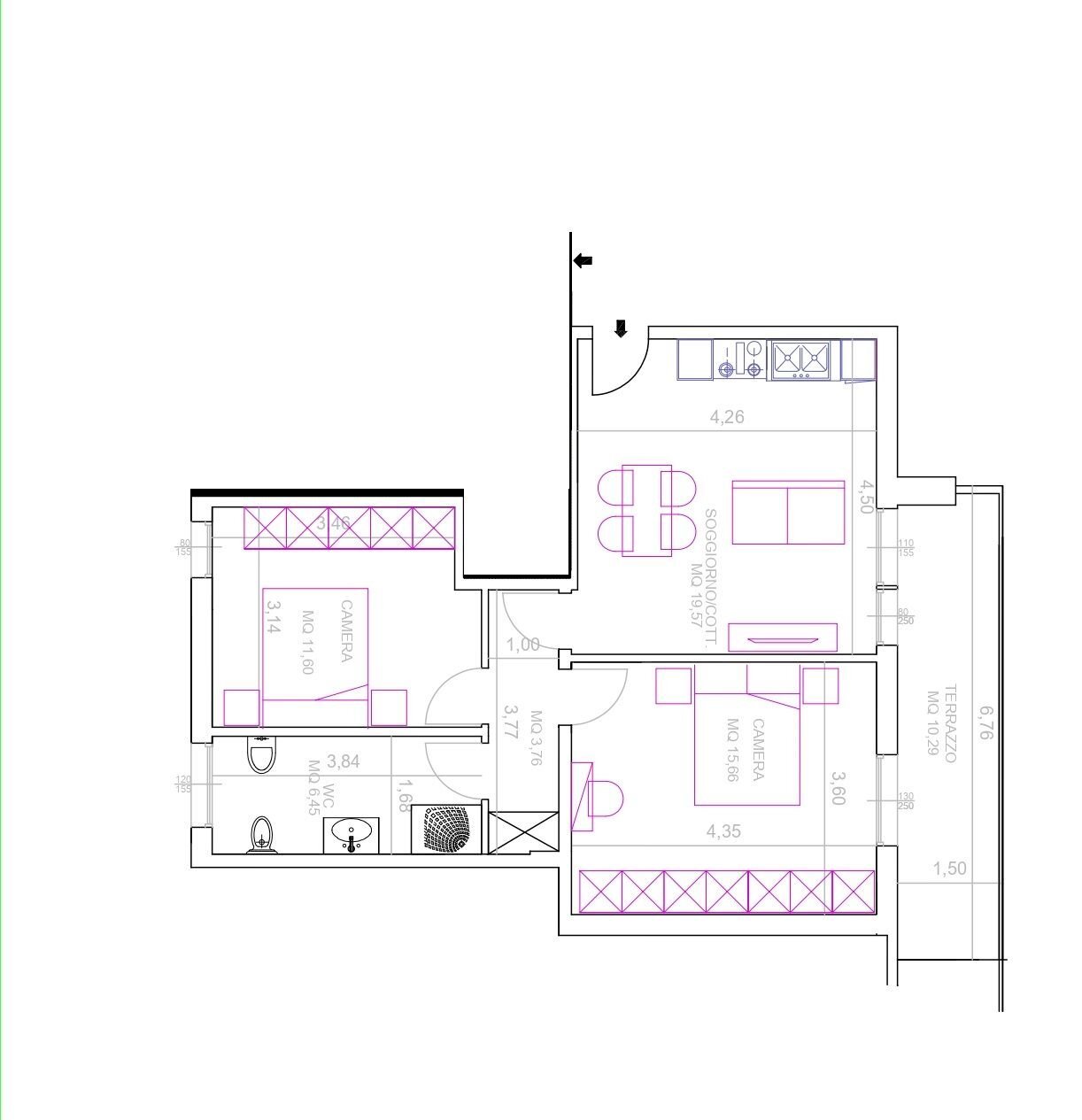
BENEDETTO MARCELLO LATERALE (STRACCIARI) in corso di lavori con consegna fine anno - piccolo ed ottimo contesto nel verde (solo sei unità distribuite su due piani) – posizione residenziale riservata ma servitissima e ben collegata – appartamento trilocale con soggiorno con angolo cottura a vista e terrazzo di 10 mq. – ampia camera matrimoniale (16 MQ. ) – ampia camera singola (12 MQ. ) – ampio bagno finestrato (6,5 MQ. ) - nuovo da impresa - ottimo capitolato con ampia possibilità di personalizzazione - luminoso - tranquillo - silenzioso - volendo ampio garage e/o cantina - spese condominiali (incluso riscaldam e acqua calda ) € 1.800, 00/anno Classe energetica in corso Rif. 210 € 280.000, 00.
Dati principali
| Riferimento | 210 |
| Data annuncio | 29/08/2025 |
| Contratto | Vendita |
| Tipologia | Appartamento |
| Superficie | 70 m2 |
| Locali | 3 (2 camere da letto, 1 altro), 1 bagno, cucina a vista |
| Piano | 2 di 2 totali |
| Tipo di costruzione | Media |
| Numero di terrazzi | 1 |
| Box auto | Assente |
| Arredamento | Assente |
Costi
| Prezzo | 280.000 € |
| Prezzo al m2 | 4.000 €/m2 |
| Spese condominiali | € 150,00/mese |
Efficienza energetica
| Anno costruzione | 1967 |
| Stato | Ottimo |
| Riscaldamento | Centralizzato |
| Classe energetica | In fase di calcolo |
Planimetrie
Indirizzo e mappa
via Riccardo Stracciari, Bologna - quartiere Santo Stefano
Calcolo mutuo
Prezzo di vendita:
Anticipo
20,00
Mutuo
80,00
Tasso: -+
Rata: 801 al mese
I risultati sono una stima indicativa basata sui dati inseriti e non costituiscono un’offerta finanziaria.
Inserzionista

Immobiliare Bologna Centro
Galleria del Toro 3, Bologna
Mostra Telefono
Chiama
CONTATTA

