Monolocale via Giuseppe Mazzini, Bologna (zona Massarenti)
€ 190.000
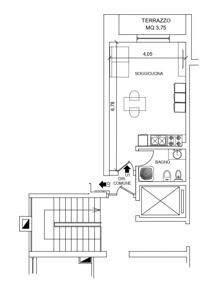
VIA MAZZINI - OSPEDALE MALPIGHI in corso di ristrutturazione con consegna a 3/4 mesi - complesso residenziale elegante e curato - zona semicentrale - ottimamente servita e collegata – monolocale (zona giorno / zona notte ) - angolo cottura a vista – balcone e bagno - nuovo da impresa - interno rispetto la via Mazzini tranquillo - silenzioso - luminoso - ottimo capitolato con possibilità di personalizzazione - spese condominiali (incluso riscald e acqua calda) € 1.000, 00 ca. /anno - Classe energetica da definire Rif. 200 € 190.000, 00.
Dati principali
| Riferimento | 200 |
| Data annuncio | 28/08/2025 |
| Contratto | Vendita |
| Tipologia | Appartamento |
| Superficie | 35 m2 |
| Locali | 1 (1 altro), 1 bagno, cucina a vista |
| Piano | 2 di 6 totali |
| Tipo di costruzione | Media |
| Numero di balconi | 1 |
| Box auto | Assente |
| Arredamento | Assente |
Costi
| Prezzo | 190.000 € |
| Prezzo al m2 | 5.429 €/m2 |
| Spese condominiali | € 85,00/mese |
Efficienza energetica
| Anno costruzione | 1960 |
| Stato | Ottimo |
| Riscaldamento | Centralizzato |
| Classe energetica | Immobile esente da certificazione energetica |
Planimetrie
Indirizzo e mappa
via Giuseppe Mazzini, Bologna - quartiere Massarenti
Calcolo mutuo
Prezzo di vendita:
Anticipo
20,00
Mutuo
80,00
Tasso: -+
Rata: 543 al mese
I risultati sono una stima indicativa basata sui dati inseriti e non costituiscono un’offerta finanziaria.
Inserzionista

Immobiliare Bologna Centro
Galleria del Toro 3, Bologna
Mostra Telefono
Chiama
CONTATTA

