Casa semi indipendente Via Rivarolo, Castelnovo di Sotto
€ 240.000Casa semindipendente in vendita
CASTELNOVO SOTTO- PORZIONE DI BIFAMILIARE CON AMPIO GIARDINO SU TRE LATI IN VIA RIVAROLO.
Siamo vicinissimi al paese, in una posizione strategica circondata da aree verdi, tra via Claudia e il campo sportivo.
Proponiamo una casa semindipendente, la classica porzione di bifamigliare o villetta abbinata composta da un'abitazione unica in cui sono già state ricavate due unità abitative, una mini al piano terreno e un abitazione con tre camere da letto al 1° piano.
LA CASA E' STATA DIVISA IN QUESTO MODO, MA PUO' ESSERE PROPOSTA ANCHE CON ZONA GIORNO AL PIANO TERRENO E AMPIA ZONA NOTTE AL PRIMO PIANO CON QUATTRO CAMERE DA LETTO.
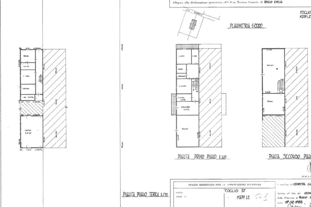
Al piano terra abbiamo l'ingresso nel corridoio che collega con tutte le stanze: cucina, soggiorno, camera da letto, cantina e bagno.
Questo è il primo appartamento ideale per chi deve ospitare degli anziani o per chi vuole una taverna o spazi in più da godersi in famiglia o con gli amici.
Salendo le scale abbiamo l'altro appartamento composto da un comodo soggiorno che da su una loggia, la cucina separata, tre camere da letto (due matrimoniali e una 3/4), una seconda loggia, un bagno ed un ripostiglio.
Al secondo piano troviamo un ampio sottotetto ampiamente sfruttabile.
Al piano terra abbiamo poi un garage e collegato troviamo un ampio deposito anch'esso con un sottotetto di pertinenza che può essere sfruttato per ampliare l'appartamento del secondo piano.
IL VERDE CIRCONDA COMPLETAMENTE L'ABITAZIONE GARANTENDO MASSIMA PRIVACY E INDIPENDENZA.
PER MAGGIORI INFORMAZIONI O FISSARE UN APPUNTAMENTO CHIAMACI AL 0522.1963669
Siamo vicinissimi al paese, in una posizione strategica circondata da aree verdi, tra via Claudia e il campo sportivo.
Proponiamo una casa semindipendente, la classica porzione di bifamigliare o villetta abbinata composta da un'abitazione unica in cui sono già state ricavate due unità abitative, una mini al piano terreno e un abitazione con tre camere da letto al 1° piano.
LA CASA E' STATA DIVISA IN QUESTO MODO, MA PUO' ESSERE PROPOSTA ANCHE CON ZONA GIORNO AL PIANO TERRENO E AMPIA ZONA NOTTE AL PRIMO PIANO CON QUATTRO CAMERE DA LETTO.
Al piano terra abbiamo l'ingresso nel corridoio che collega con tutte le stanze: cucina, soggiorno, camera da letto, cantina e bagno.
Questo è il primo appartamento ideale per chi deve ospitare degli anziani o per chi vuole una taverna o spazi in più da godersi in famiglia o con gli amici.
Salendo le scale abbiamo l'altro appartamento composto da un comodo soggiorno che da su una loggia, la cucina separata, tre camere da letto (due matrimoniali e una 3/4), una seconda loggia, un bagno ed un ripostiglio.
Al secondo piano troviamo un ampio sottotetto ampiamente sfruttabile.
Al piano terra abbiamo poi un garage e collegato troviamo un ampio deposito anch'esso con un sottotetto di pertinenza che può essere sfruttato per ampliare l'appartamento del secondo piano.
IL VERDE CIRCONDA COMPLETAMENTE L'ABITAZIONE GARANTENDO MASSIMA PRIVACY E INDIPENDENZA.
PER MAGGIORI INFORMAZIONI O FISSARE UN APPUNTAMENTO CHIAMACI AL 0522.1963669
Dati principali
| Riferimento | 61095801 |
| Data annuncio | 13/08/2025 |
| Contratto | Vendita |
| Tipologia | Casa semi indipendente |
| Superficie | 306 m2 |
| Locali | più di 5 (8 altro), 3 bagni |
| Piano | 2 di 2 totali |
| Numero posti auto | 2 |
Costi
| Prezzo | 240.000 € |
| Prezzo al m2 | 784 €/m2 |
Efficienza energetica
| Anno costruzione | 1970 |
| Riscaldamento | Autonomo |
| Tipo Alimentazione Riscaldamento | Metano |
| Classe energetica | F |
| Indice di prestazione energetica (EP GL, REN) | 200 kWh/m3 anno |
| Indice di prestazione energetica (EP GL, NREN) | 200 kWh/m3 anno |
Planimetrie
Indirizzo e mappa
Via Rivarolo, Castelnovo di Sotto
Calcolo mutuo
Prezzo di vendita:
Anticipo
20,00
Mutuo
80,00
Tasso: -+
Rata: 686 al mese
I risultati sono una stima indicativa basata sui dati inseriti e non costituiscono un’offerta finanziaria.
Inserzionista
Chiama
CONTATTA

