Trilocale Via Padula snc, Brusciano
€ 290.000
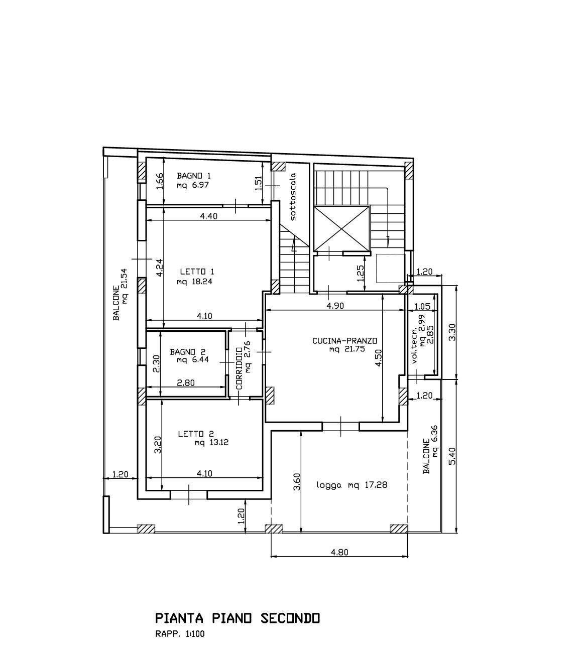
Trilogy Garden Eleganza, Comfort e Spazi Verdi nel Cuore di Brusciano Nel tranquillo contesto residenziale di Brusciano, nasce Trilogy Garden, un esclusivo complesso composto da tre appartamenti indipendenti, concepiti per offrire privacy, funzionalità e qualità della vita. Disponibile unità al 2° piano, lappartamento si sviluppa in tre vani + due accessori, con ambienti ben distribuiti e luminosi: Soggiorno accogliente, Cucina abitabile, 2 camere da letto, 2 bagni moderni e funzionali con loggia a livello. La soluzione dispone di scala interna per raggiungere l'attico di 106 mq compreso di gazebo, perfetto per momenti di relax allaperto. Inoltre annesso all'appartamento ci sono 2 posti auto di esclusiva proprietà con giardino di mq 40 c.a. Ogni unità è progettata con materiali di qualità e finiture eleganti, pensata per chi cerca indipendenza, comodità e spazi esterni vivibili in una zona ben collegata e servita. In zona strategica a pochi minuti dai principali collegamenti stradali. Contattaci allo 0818862808 oppure su Whatsapp 3514259729 per maggiori informazioni e per fissare un appuntamento in sede per il progetto completo.
Dati principali
| Riferimento | 714 |
| Data annuncio | 24/07/2025 |
| Contratto | Vendita |
| Tipologia | Appartamento |
| Superficie | 90 m2 |
| Locali | 3 (2 camere da letto, 1 altro), 2 bagni, cucina abitabile |
| Tipo di costruzione | Media |
| Numero posti auto | 2 |
| Arredamento | Assente |
Caratteristiche
Costi
| Prezzo | 290.000 € |
| Prezzo al m2 | 3.222 €/m2 |
Efficienza energetica
| Riscaldamento | Autonomo |
| Tipo Impianto Di Riscaldamento | ad aria |
| Classe energetica | A1 |
Planimetrie
Indirizzo e mappa
Via Padula
snc, Brusciano
Annuncio senza mappa,
prova a chiedere la posizione all'inserzionista
prova a chiedere la posizione all'inserzionista
Calcolo mutuo
Prezzo di vendita:
Anticipo
20,00
Mutuo
80,00
Tasso: -+
Rata: 829 al mese
I risultati sono una stima indicativa basata sui dati inseriti e non costituiscono un’offerta finanziaria.
Inserzionista

Mimacasa di Coppola Mirko
Via C.Cucca,164, Brusciano
Mostra Telefono
Mostra Cellulare
Chiama
CONTATTA

