

Negozio Vicolo Uniera, 7, Feltre
Trattativa riservataNegozio a reddito
Feltre (BL).
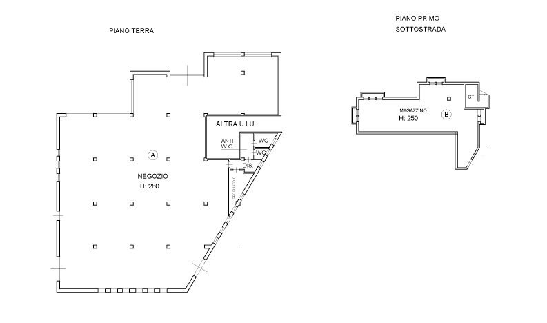
In posizione centrale e visibile, vendesi due negozi siti a piano terra, intestati a società, per un totale di mq. 1200 circa, entrambi locati allo stesso primario conduttore, contratto 9 + 6, prima scadenza a giugno 2027, preavviso disdetta 6 mesi, redditività 8,5 %.
Per info richieste e documentazione è possibile contattare l’ufficio. Ottimo investimento.
Trattativa riservata.
In posizione centrale e visibile, vendesi due negozi siti a piano terra, intestati a società, per un totale di mq. 1200 circa, entrambi locati allo stesso primario conduttore, contratto 9 + 6, prima scadenza a giugno 2027, preavviso disdetta 6 mesi, redditività 8,5 %.
Per info richieste e documentazione è possibile contattare l’ufficio. Ottimo investimento.
Trattativa riservata.
Dati principali
| Riferimento | ID2752770 |
| Data annuncio | 26/06/2025 |
| Contratto | Vendita |
| Tipologia | Negozio |
| Superficie | 1200 m2 |
| Locali | 2 bagni |
| Piano | Terra, 1 totali |
| Uso immobile | Commerciale |
| Numero locali | 3 |
Costi
| Prezzo | Trattativa riservata |
Efficienza energetica
| Stato | Buono |
| Riscaldamento | Autonomo |
| Tipo Impianto Di Riscaldamento | a radiatori |
| Tipo Alimentazione Riscaldamento | Metano |
| Classe energetica | D |
| Indice di prestazione energetica (IPE) | - |
Planimetrie
Indirizzo e mappa
Vicolo Uniera, 7, Feltre
Inserzionista

EB Gestioni Immobiliari S.R.L.
Via S. Pier Tommaso 18/3, Bologna
Mostra Telefono
Mostra Cellulare
Chiama
CONTATTA